新潟県長岡市希望ヶ丘4丁目5-8 投資物件・その他 13,200,000円の物件情報

左岸バイパスへのアクセス良好  満室時想定表面利回り16.54%

物件名/所在地 詳細 価格
表面利回り
売アパート
新潟県長岡市希望ヶ丘4丁目5-8
  • 土地面積
    :218.37㎡ /66.05坪
  • 建ぺい率
    :50%
  • 容積率
    :80%
13,200,000
16.54%
(満室想定時)
  • 売アパート
    有限会社 高治企画 
  • この物件を問い合わせる/無料
  • TEL: 0258-27-6599 0258-27-6599

物件画像

外観
間取り
物件画像
※画像クリックで拡大表示
外観
物件画像
※画像クリックで拡大表示
間取り
詳細画像
物件画像
資料
物件画像
資料
物件画像
資料
物件画像
写真
物件画像
写真
物件画像
地図画像


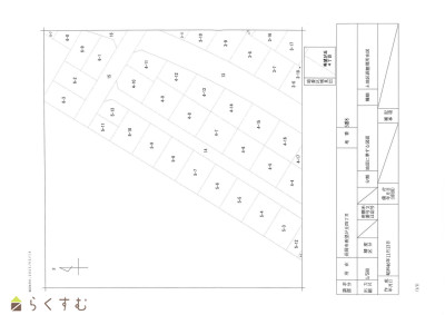
物件概要

物件コード 00051-200051
物件名 売アパート
交通 駅:上越新幹線 長岡駅から徒歩52分、バス:三ツ郷屋から徒歩3分
物件所在地 新潟県長岡市希望ヶ丘4丁目5-8
物件種別 投資物件・その他
物件区分 1棟売りマンション・アパート
構造 木造 階建 地上2階建
建ぺい率/容積率 50%/80%
建物面積 1階 76.18㎡/ 2階 76.18㎡/ 計 152.36㎡ /46.08坪
土地面積 218.37㎡ /66.05坪
築年月 1988年3月(築37年)
入居(引き渡し)時期 随時入居(引き渡し)可
用途地域 第1種低層住居専用地域 地目 宅地  (現状:宅地)
都市計画 市街化区域 学校区 大島小学校(775m)・大島中学校(462m)
形状 間口 12.50m × 奥行 17.52m 道路 長岡市道
私道 - その他の制限 -
  • 売アパート
    有限会社 高治企画 
  • この物件を問い合わせる/無料
  • TEL: 0258-27-6599 0258-27-6599

物件詳細情報

所在階/階数 - 号室 -
販売価格 13,200,000円 方位 -
表面利回り(満室想定時) 16.54% 満室想定年収 2,184,000円 (想定月収: 182,000円 )
現行利回り 13.81% 現行年間年収 1,824,000円
住戸数 5
間取り -
専有面積 23.2㎡ /7.01坪 ~ 65㎡ /19.66坪 バルコニー面積 -
その他面積 - 駐車場 -
管理費 - 修繕積立金 -
現況 賃貸中
仲介手数料 501,600円
利用制限 ペット:不可、楽器:不可
設備 駐車場(近隣含む)、都市ガス
取引態様 一般
備考 -
取り扱い会社

有限会社 高治企画 

新潟県長岡市荻野1丁目6番7号

情報登録日 2025/06/06 次回更新予定日 2025/11/17
取引条件有効期限 2025/08/16
  • 売アパート
    有限会社 高治企画 
  • この物件を問い合わせる/無料
  • TEL: 0258-27-6599 0258-27-6599

この物件の地図・周辺情報・行政情報

この物件の周辺情報・行政情報を詳しく見る
【周辺情報】
物件の近くにあるコンビニや銀行・学校など、アイコン付のマップで詳しく表示できます!
【行政情報】
水道料や下水道料・ガス料金など、暮らしに関係のある情報を表示しています。
セブン-イレブン 長岡喜多町店(コンビニ)まで360m
ローソン 長岡喜多町店(コンビニ)まで350m
良食生活館 きたまち店(スーパー)まで600m
ウエルシア長岡西津町店 (調剤薬局)(ドラッグストア)まで400m
喜多町むらやまクリニック(病院)まで330m
長岡西病院(病院)まで420m
第四北越銀行 長岡西支店(銀行)まで700m

※カメラのアイコンがある場合は、マウスをポイントするとその施設の画像がご覧いただけます。


担当取扱い店舗情報

取扱い店舗画像
有限会社 高治企画 
TEL: 0258-27-6599
所在地: 新潟県長岡市荻野1丁目6番7号
交通: JR長岡駅、バス(越後交通)
営業時間: 9:00~17:00/定休日:土曜・日曜・祭日(3月は無休)
免許番号: 新潟県知事(6)第4078号
所属団体名: 新潟県宅地建物取引協会 長岡支部
取引態様: 一般
ホームページ: http://www.takaharu-k.co.jp