新潟県柏崎市大字上方342番、348番2、他 中古一戸建て 6LDK 22,000,000円の物件情報

2017年築、敷地80坪の5LDK中古住宅。子供たちが遊んだり、家庭菜園ができるゆったりとした庭があります。

物件名/所在地 詳細 価格
上方
新潟県柏崎市大字上方342番、348番2、他
  • 土地面積
    :265.5㎡ /80.31坪
  • 建物面積
    :134.56㎡ /40.7坪
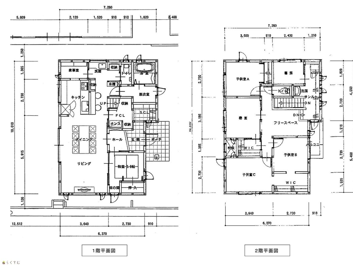
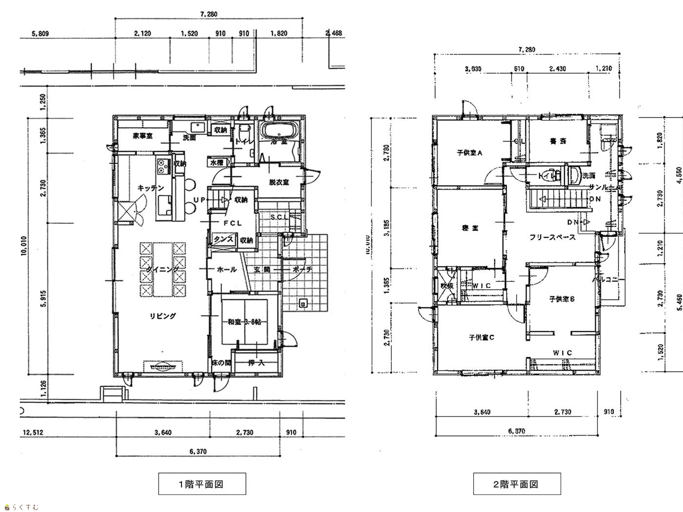
  • 間取り
    :6LDK
  • 築年月
    :2017年3月
22,000,000
  • 上方
    八幡開発株式会社
  • この物件を問い合わせる/無料
  • TEL: 0257-22-3357 0257-22-3357

物件画像

外観
間取り
物件画像
※画像クリックで拡大表示
外観
物件画像
※画像クリックで拡大表示
間取り図
詳細画像
物件画像
広々とした庭で家庭菜園もできます
物件画像
玄関脇 シューズクローク/コート掛け
物件画像
LDK あたたかい日差し入ります
物件画像
システムキッチン
物件画像
IHクッキングヒーター/グリル
物件画像
シングルレバー(シャワーつき)
物件画像
食器洗い乾燥機
物件画像
奥はパントリー
物件画像
パントリー たっぷり収納できます
物件画像
洗面所
物件画像
脱衣所
物件画像
浴室(暖房換気乾燥機つき)
物件画像
階段
物件画像
2階ホール/屋根裏
物件画像
2階ホール横 バルコニー
物件画像
2階東側洋室
物件画像
2階南側洋室
物件画像
2階中央洋室
物件画像
2階北側洋室
物件画像
公図


物件概要

物件コード 00050-200417
物件名 上方
交通 駅:信越線 柏崎駅から徒歩45分、バス:上方(R353)から徒歩6分
物件所在地 新潟県柏崎市大字上方342番、348番2、他
物件種別 中古一戸建て
構造 木造 階建 地上2階建
建ぺい率/容積率 70%/200%
建物面積 1階 67.9㎡/ 2階 66.66㎡/ 計 134.56㎡ /40.7坪
土地面積 265.5㎡ /80.31坪
築年月 2017年3月(築9年)
入居(引き渡し)時期 相談
用途地域 無指定 地目 宅地  (現状:宅地)
都市計画 非線引き都市計画区域 学校区 新道小学校(1,019m)・南中学校(612m)
形状 - 道路 東側:市道(除雪あり)
私道 - その他の制限 -
  • 上方
    八幡開発株式会社
  • この物件を問い合わせる/無料
  • TEL: 0257-22-3357 0257-22-3357

物件詳細情報

所在階/階数 - 号室 -
販売価格 22,000,000円 方位 西
間取り 6LDK (和室:3.8畳) (洋室:5.1、5.9、6.1、4.6)
LDK19.5
書斎2.7帖
専有面積 - バルコニー面積 -
その他面積 - 駐車場 -
管理費 - 修繕積立金 -
現況 空家
仲介手数料 792,000円
利用制限 -
設備 日当り良好、閑静な住宅街、LDK15帖以上、築10年以内、駐車2台可能、駐車3台以上可能、TVインターホン、複層ガラス、デインプルキー、システムキッチン、IHクッキングヒーター、食器洗浄乾燥機、3口コンロ、追いだき機能付き、温水洗浄便座、トイレ2か所以上、シャワー付き洗面台、エアコンあり、24時間換気システム、オール電化、ウッドデッキ・テラス、上水道、下水道、ウォークインクローゼット、全居室収納あり、シューズインクローゼット
取引態様 専任
備考 -
取り扱い会社

八幡開発株式会社

新潟県柏崎市横山440番地1

情報登録日 2025/07/07 次回更新予定日 2026/06/05
取引条件有効期限 2025/12/26
  • 上方
    八幡開発株式会社
  • この物件を問い合わせる/無料
  • TEL: 0257-22-3357 0257-22-3357

この物件の地図・周辺情報・行政情報

この物件の周辺情報・行政情報を詳しく見る
【周辺情報】
物件の近くにあるコンビニや銀行・学校など、アイコン付のマップで詳しく表示できます!
【行政情報】
水道料や下水道料・ガス料金など、暮らしに関係のある情報を表示しています。

担当取扱い店舗情報

取扱い店舗画像
八幡開発株式会社
TEL: 0257-22-3357
所在地: 新潟県柏崎市横山440番地1
交通: 柏崎駅
営業時間: 9:00~17:30/定休日:日曜・祭日
免許番号: 新潟県知事(14)第1377号
所属団体名: 新潟県宅地建物取引業協会 柏崎支部
取引態様: 専任
ホームページ: http://www.hatiman.jp