新潟県長岡市福井町25-3 中古一戸建て 7DK 5,500,000円の物件情報

敷地内に融雪井戸があります。

物件名/所在地 詳細 価格
長岡市福井町 中古住宅
新潟県長岡市福井町25-3
  • 土地面積
    :493.7㎡ /149.34坪
  • 建物面積
    :160.36㎡ /48.5坪
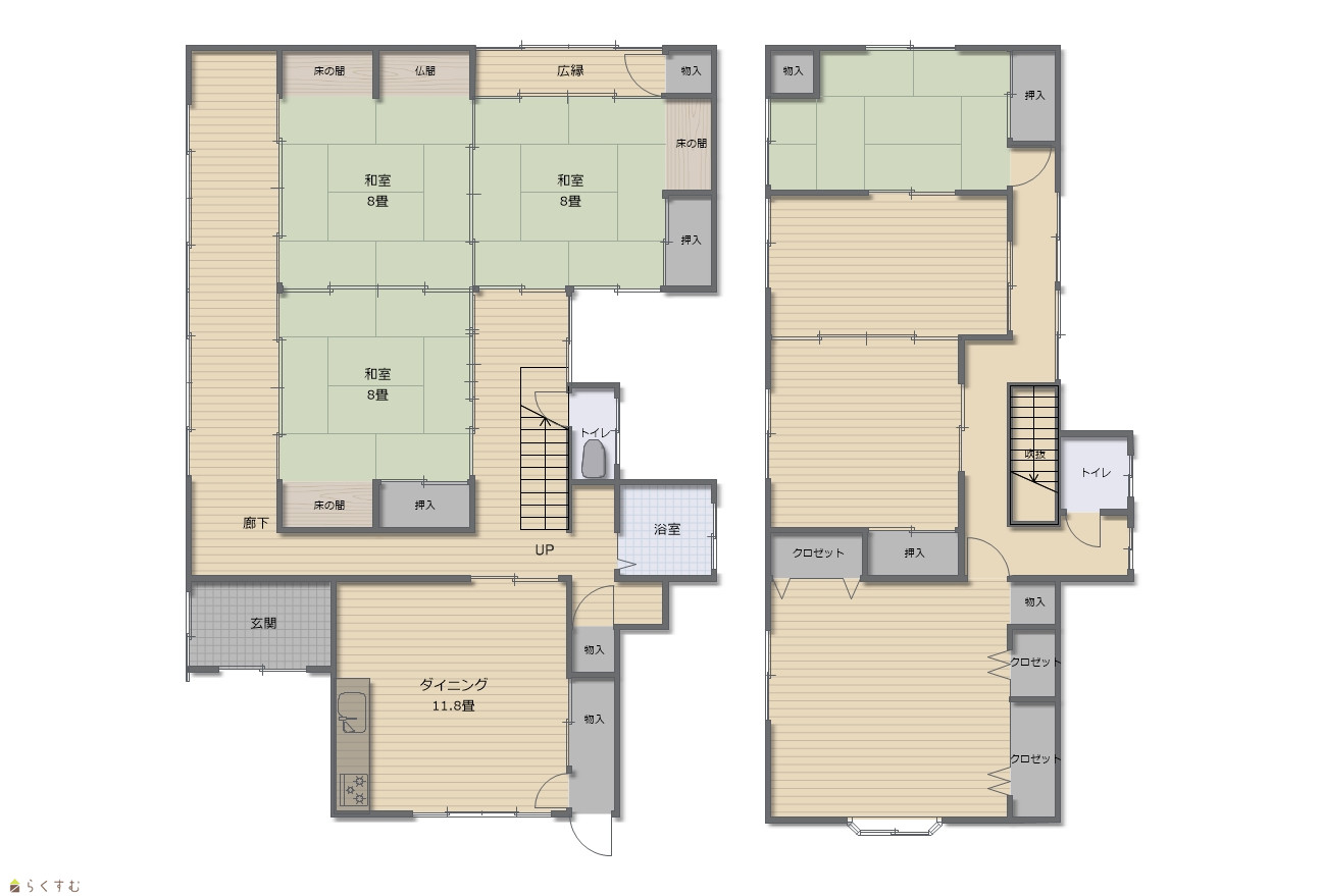
  • 間取り
    :7DK
  • 築年月
    :1982年7月
5,500,000
  • 長岡市福井町 中古住宅
    ブレイン・リアルエステート合同会社
  • この物件を問い合わせる/無料
  • TEL: 0258-86-6934 0258-86-6934

物件画像

外観
間取り
物件画像
※画像クリックで拡大表示
外観
物件画像
※画像クリックで拡大表示
間取り
詳細画像
物件画像
車庫付きです
物件画像
玄関
物件画像
玄関
物件画像
和室
物件画像
和室
物件画像
キッチン
物件画像
キッチン
物件画像
洗面所
物件画像
バスルーム
物件画像
洗濯機置き場
物件画像
洋室
物件画像
洋室
物件画像
洗面所
物件画像
トイレ
物件画像
物置車庫
物件画像
車庫
物件画像
印刷用地図


物件概要

外壁張替済み 家族が多い方にピッタリの住宅
物件コード 00044-200694
物件名 長岡市福井町 中古住宅
交通 駅:信越線 押切駅から徒歩11分、バス:七軒町から徒歩6分
物件所在地 新潟県長岡市福井町25-3
物件種別 中古一戸建て
構造 木造 階建 地上2階建
建ぺい率/容積率 70%/200%
建物面積 1階 110.68㎡/ 2階 49.68㎡/ 計 160.36㎡ /48.5坪
土地面積 493.7㎡ /149.34坪
築年月 1982年7月(築43年)
入居(引き渡し)時期 随時入居(引き渡し)可
用途地域 用途の指定のない地域 地目 宅地
都市計画 市街化調整区域 学校区 新組小学校(299m)・堤岡中学校(1,513m)
形状 - 道路 北東側:8m
私道 - その他の制限 -
  • 長岡市福井町 中古住宅
    ブレイン・リアルエステート合同会社
  • この物件を問い合わせる/無料
  • TEL: 0258-86-6934 0258-86-6934

物件詳細情報

所在階/階数 - 号室 -
販売価格 5,500,000円 方位 -
間取り 7DK
専有面積 - バルコニー面積 -
その他面積 - 駐車場 -
管理費 - 修繕積立金 -
現況 空家
仲介手数料 330,000円
利用制限 -
設備 日当り良好、駐車3台以上可能、システムキッチン、食器洗浄乾燥機、追いだき機能付き、バス1坪以上、温水洗浄便座、トイレ2か所以上、シャワー付き洗面台、LPG、上水道、下水道
取引態様 専任
備考 ■現況有姿での引渡しとなり、売主による契約不適合責任免責となります。 ■売主による境界非明示 ■2004年の7.13水害で床下浸水をした経歴あり ■本物件は市街化調整区域にある為、原則再建築は不可ですが、都市計画法第43条の建築許可を取得することにより再建築が可能になります。 ■未登記建物について、平成9年増築 48.75㎡、 車庫物置69.42㎡については売主により登記を行い引渡しとなります ■本物件以外に山林、畑をお付けします。
取り扱い会社

ブレイン・リアルエステート合同会社

新潟県長岡市大島本町3丁目10番8号202号室

情報登録日 2026/01/08 次回更新予定日 2026/03/06
取引条件有効期限 2025/12/14
  • 長岡市福井町 中古住宅
    ブレイン・リアルエステート合同会社
  • この物件を問い合わせる/無料
  • TEL: 0258-86-6934 0258-86-6934

この物件の地図・周辺情報・行政情報

この物件の周辺情報・行政情報を詳しく見る
【周辺情報】
物件の近くにあるコンビニや銀行・学校など、アイコン付のマップで詳しく表示できます!
【行政情報】
水道料や下水道料・ガス料金など、暮らしに関係のある情報を表示しています。

担当取扱い店舗情報

取扱い店舗画像
ブレイン・リアルエステート合同会社
TEL: 0258-86-6934
所在地: 新潟県長岡市大島本町3丁目10番8号202号室
交通:
営業時間: 9:30~18:00/定休日:水曜日、日曜日
免許番号: 新潟県知事(4)第4978号
所属団体名: ブレインリアルエステート合同会社
取引態様: 専任
ホームページ: http://www.brain-niigata.co.jp