新潟県魚沼市堀之内708-13 中古一戸建て 6DK 800,000円の物件情報

雪国の暮らしに強い味方。石油融雪設備付きの安心住宅冬も、冬も快適。敷地も屋根も雪知らず。

物件名/所在地 詳細 価格
魚沼市堀之内 中古住宅
新潟県魚沼市堀之内708-13
  • 土地面積
    :289.24㎡ /87.49坪
  • 建物面積
    :118.41㎡ /35.81坪
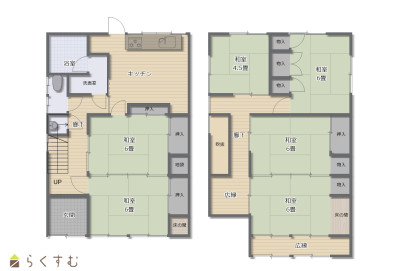
  • 間取り
    :6DK
  • 築年月
    :1971年12月
800,000
  • 魚沼市堀之内 中古住宅
    ブレイン・リアルエステート合同会社
  • この物件を問い合わせる/無料
  • TEL: 0258-86-6934 0258-86-6934

物件画像

外観
間取り
物件画像
※画像クリックで拡大表示
外観
物件画像
※画像クリックで拡大表示
間取り
詳細画像
物件画像
玄関
物件画像
玄関
物件画像
和室
物件画像
キッチン
物件画像
洗面所
物件画像
バスルーム
物件画像
トイレ
物件画像
設備
物件画像
和室
物件画像
内装
物件画像
和室
物件画像
外観
物件画像
周辺
物件画像
周辺
物件画像
印刷用地図


物件概要

魚沼で叶える、ゆとりある田舎暮らし、冬も安心、移住にもぴったりの一軒家
物件コード 00044-200691
物件名 魚沼市堀之内 中古住宅
交通 駅:上越線 越後堀之内駅から徒歩11分
物件所在地 新潟県魚沼市堀之内708-13
物件種別 中古一戸建て
構造 木造 階建 地上2階建
建ぺい率/容積率 60%/200%
建物面積 計 118.41㎡ /35.81坪
土地面積 289.24㎡ /87.49坪
築年月 1971年12月(築53年)
入居(引き渡し)時期 随時入居(引き渡し)可
用途地域 第1種住居地域 地目 宅地
都市計画 非線引き都市計画区域 学校区 堀之内小学校(392m)・堀之内中学校(643m)
形状 間口 14.8m × 奥行 19m 道路 南西側:市道 約5.5m 北西側 市道 約2.6m
私道 - その他の制限 -
  • 魚沼市堀之内 中古住宅
    ブレイン・リアルエステート合同会社
  • この物件を問い合わせる/無料
  • TEL: 0258-86-6934 0258-86-6934

物件詳細情報

所在階/階数 - 号室 -
販売価格 800,000円 方位 南西
間取り 6DK
専有面積 - バルコニー面積 -
その他面積 - 駐車場 -
管理費 - 修繕積立金 -
現況 空家
仲介手数料 330,000円
利用制限 -
設備 日当り良好、閑静な住宅街、駐車2台可能、バス1坪以上、上水道、下水道
取引態様 専任
備考 現況有姿での引渡しとなり売主による保証はありません。敷地内融雪井戸あり。
取り扱い会社

ブレイン・リアルエステート合同会社

新潟県長岡市大島本町3丁目10番8号202号室

情報登録日 2025/10/14 次回更新予定日 2025/11/19
取引条件有効期限 2025/11/30
  • 魚沼市堀之内 中古住宅
    ブレイン・リアルエステート合同会社
  • この物件を問い合わせる/無料
  • TEL: 0258-86-6934 0258-86-6934

この物件の地図・周辺情報・行政情報

この物件の周辺情報・行政情報を詳しく見る
【周辺情報】
物件の近くにあるコンビニや銀行・学校など、アイコン付のマップで詳しく表示できます!
【行政情報】
水道料や下水道料・ガス料金など、暮らしに関係のある情報を表示しています。

担当取扱い店舗情報

取扱い店舗画像
ブレイン・リアルエステート合同会社
TEL: 0258-86-6934
所在地: 新潟県長岡市大島本町3丁目10番8号202号室
交通:
営業時間: 9:30~18:00/定休日:水曜日、日曜日
免許番号: 新潟県知事(3)第4978号
所属団体名: ブレインリアルエステート合同会社
取引態様: 専任
ホームページ: http://www.brain-niigata.co.jp