新潟県見附市本所2-7-23 中古一戸建て 4LDK 6,500,000円の物件情報

見附駅徒歩圏の中古住宅です!

物件名/所在地 詳細 価格
見附市本所2丁目 中古住宅
新潟県見附市本所2-7-23
  • 土地面積
    :231.43㎡ /70坪
  • 建物面積
    :168.89㎡ /51.08坪
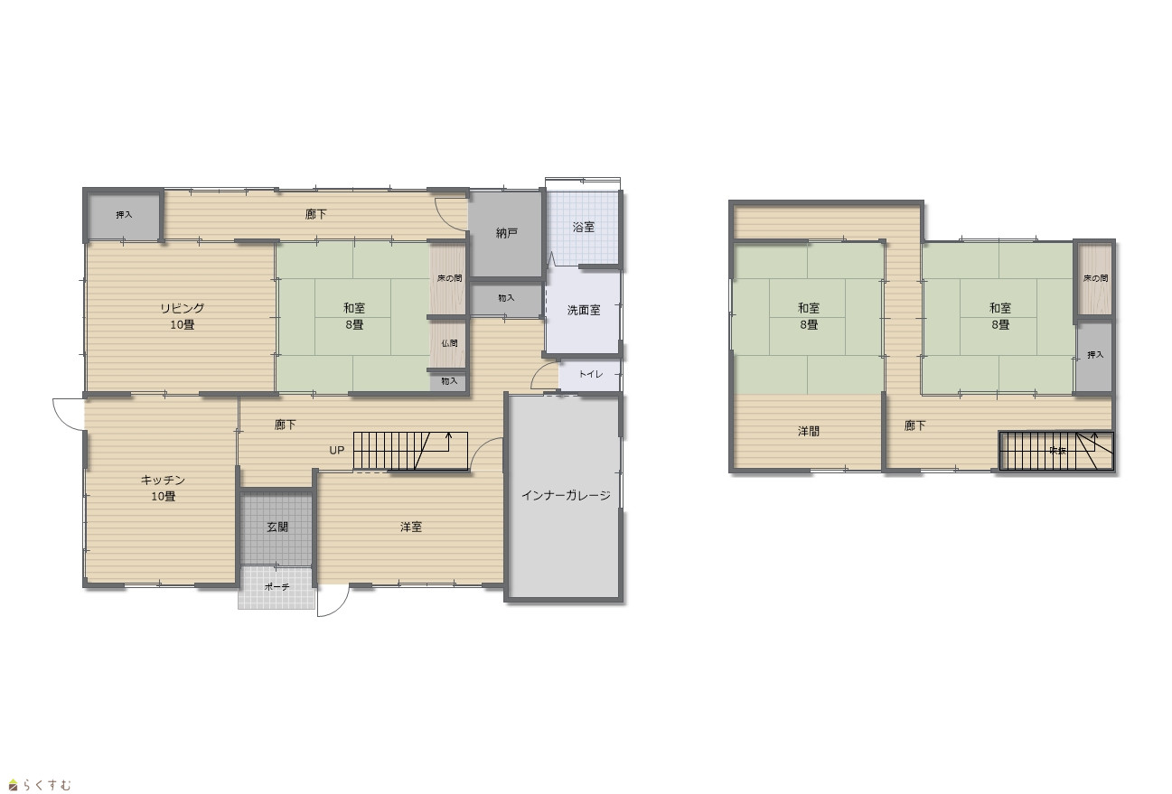
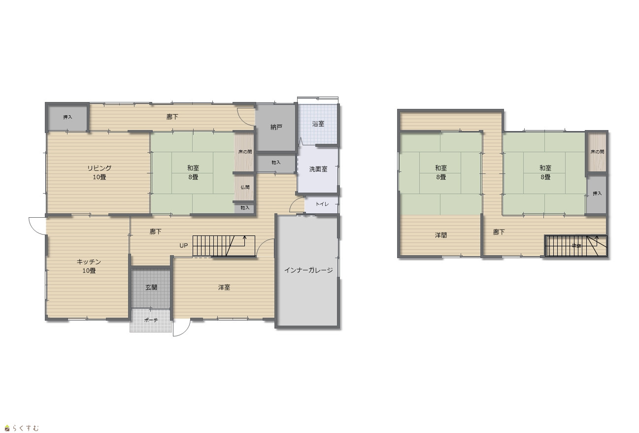
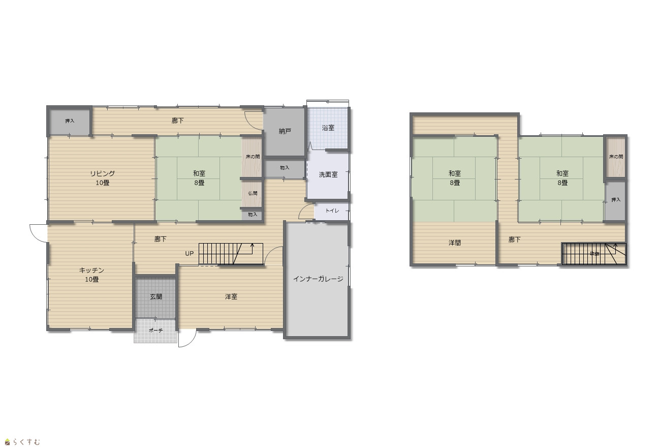
  • 間取り
    :4LDK
  • 築年月
    :1985年10月
6,500,000
  • 見附市本所2丁目 中古住宅
    ブレイン・リアルエステート合同会社
  • この物件を問い合わせる/無料
  • TEL: 0258-86-6934 0258-86-6934

物件画像

外観
間取り
物件画像
※画像クリックで拡大表示
外観
物件画像
※画像クリックで拡大表示
間取り
詳細画像
物件画像
外観
物件画像
玄関
物件画像
内観
物件画像
キッチン
物件画像
リビング
物件画像
和室
物件画像
洗面所
物件画像
バスルーム
物件画像
トイレ
物件画像
和室
物件画像
洋室
物件画像
和室
物件画像
1階廊下
物件画像
キッチン
物件画像
階段
物件画像
外観
物件画像
印刷用地図


物件概要

69坪の敷地 
物件コード 00044-200684
物件名 見附市本所2丁目 中古住宅
交通 駅:信越線 見附駅から徒歩3分、バス:見附駅前から徒歩3分
物件所在地 新潟県見附市本所2-7-23
物件種別 中古一戸建て
構造 木造 階建 地上2階建
建ぺい率/容積率 60%/200%
建物面積 1階 119.21㎡/ 2階 49.68㎡/ 計 168.89㎡ /51.08坪
土地面積 231.43㎡ /70坪
築年月 1985年10月(築40年)
入居(引き渡し)時期 相談
用途地域 第1種中高層住居専用地域 地目 宅地
都市計画 市街化区域 学校区 見附小学校(1,759m)・西中学校(1,358m)
形状 - 道路 北東側 市道 6m
私道 - その他の制限 -
  • 見附市本所2丁目 中古住宅
    ブレイン・リアルエステート合同会社
  • この物件を問い合わせる/無料
  • TEL: 0258-86-6934 0258-86-6934

物件詳細情報

所在階/階数 - 号室 -
販売価格 6,500,000円 方位 北東
間取り 4LDK
専有面積 - バルコニー面積 -
その他面積 - 駐車場 -
管理費 - 修繕積立金 -
現況 空家
仲介手数料 330,000円
利用制限 -
設備 日当り良好、都市ガス、上水道、下水道
取引態様 一般
備考 ■駐車場は1台分しかありません ■現況有姿での引渡し売主による契約不適合責任は免責 ■固定資産税 年58,500円 ■解体見積もり承ります ■
取り扱い会社

ブレイン・リアルエステート合同会社

新潟県長岡市大島本町3丁目10番8号202号室

情報登録日 2025/08/22 次回更新予定日 2026/06/05
取引条件有効期限 2025/11/01
  • 見附市本所2丁目 中古住宅
    ブレイン・リアルエステート合同会社
  • この物件を問い合わせる/無料
  • TEL: 0258-86-6934 0258-86-6934

この物件の地図・周辺情報・行政情報

この物件の周辺情報・行政情報を詳しく見る
【周辺情報】
物件の近くにあるコンビニや銀行・学校など、アイコン付のマップで詳しく表示できます!
【行政情報】
水道料や下水道料・ガス料金など、暮らしに関係のある情報を表示しています。

担当取扱い店舗情報

取扱い店舗画像
ブレイン・リアルエステート合同会社
TEL: 0258-86-6934
所在地: 新潟県長岡市大島本町3丁目10番8号202号室
交通:
営業時間: 9:30~18:00/定休日:水曜日、日曜日
免許番号: 新潟県知事(4)第4978号
所属団体名: ブレインリアルエステート合同会社
取引態様: 一般
ホームページ: http://www.brain-niigata.co.jp