新潟県長岡市稽古町1646番地 売土地・分譲地 17,000,000円の物件情報

月極駐車場付き(12台)駐車場5,000円/1台/月 (税別) 駐車場部のみアスファルト敷 賃料収入49,500円/月(2026年1月現在)

物件名/所在地 詳細 価格
稽古町 月極駐車場付売土地
新潟県長岡市稽古町1646番地
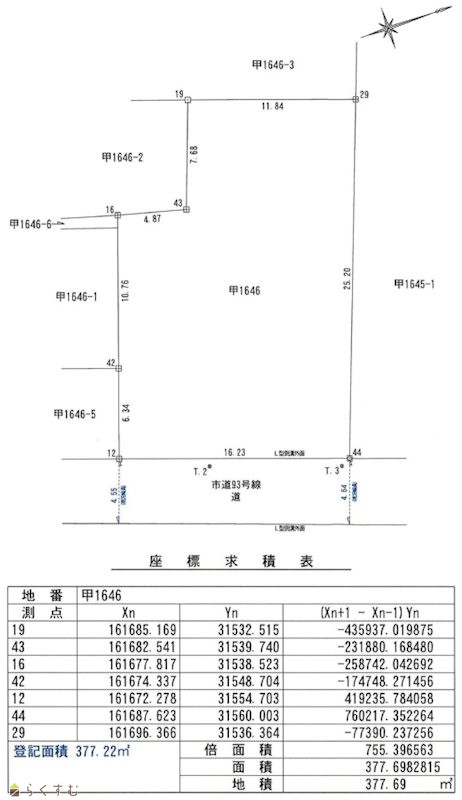
  • 土地面積
    :377.22㎡ /114.1坪
  • 坪単価
    :148,992円/坪
  • 建ぺい率
    :60%
  • 容積率
    :200%
17,000,000
  • 稽古町 月極駐車場付売土地
    株式会社 高野不動産販売
  • この物件を問い合わせる/無料
  • TEL: 0258-33-7711 0258-33-7711

物件画像

外観
間取り
物件画像
※画像クリックで拡大表示
外観
物件画像
※画像クリックで拡大表示
測量図
詳細画像
物件画像
外観
物件画像
外観
物件画像
外観
物件画像
公図
物件画像
印刷用地図


物件概要

物件コード 00041-200974
物件名 稽古町 月極駐車場付売土地
交通 駅:上越新幹線 長岡駅から徒歩14分
物件所在地 新潟県長岡市稽古町1646番地
物件種別 売土地・分譲地
物件区分 売土地
構造 - 階建 -
建ぺい率/容積率 60%/200%
建物面積 -
土地面積 377.22㎡ /114.1坪
築年月 -
入居(引き渡し)時期 相談
用途地域 第1種住居地域 地目 宅地  (現状:宅地)
都市計画 市街化区域 学校区 川崎小学校(691m)・東中学校(974m)
形状 間口 16.23m 道路 東側:公道 幅員約4.7m
私道 その他の制限 法22条区域
  • 稽古町 月極駐車場付売土地
    株式会社 高野不動産販売
  • この物件を問い合わせる/無料
  • TEL: 0258-33-7711 0258-33-7711

物件詳細情報

所在階/階数 - 号室 -
販売価格 17,000,000円 方位 -
間取り -
専有面積 - バルコニー面積 -
その他面積 - 駐車場 -
管理費 - 修繕積立金 -
現況 指定なし
仲介手数料 627,000円
利用制限 -
設備 閑静な住宅街、建築条件なし、所有権、電気、都市ガス(宅地内)、上水道(宅地内)、下水道(宅地内)、前面道路融雪設備あり、住宅向け、事業用向け
取引態様 一般
備考 -
取り扱い会社

株式会社 高野不動産販売

新潟県長岡市柏町1丁目4-33

情報登録日 2026/01/21 次回更新予定日 2026/04/22
取引条件有効期限 2026/03/31
  • 稽古町 月極駐車場付売土地
    株式会社 高野不動産販売
  • この物件を問い合わせる/無料
  • TEL: 0258-33-7711 0258-33-7711

この物件の地図・周辺情報・行政情報

この物件の周辺情報・行政情報を詳しく見る
【周辺情報】
物件の近くにあるコンビニや銀行・学校など、アイコン付のマップで詳しく表示できます!
【行政情報】
水道料や下水道料・ガス料金など、暮らしに関係のある情報を表示しています。
セブン-イレブン 長岡福住店(コンビニ)まで570m
やおえだ眼科(病院)まで100m
渡辺皮フ科医院(病院)まで270m
長尾医院(病院)まで450m
太田こどもとアレルギークリニック(病院)まで480m
吉田病院(病院)まで540m
大光銀行 神田支店(銀行)まで290m
第四北越銀行 新町支店(銀行)まで460m
長岡東神田郵便局(郵便局)まで510m

※カメラのアイコンがある場合は、マウスをポイントするとその施設の画像がご覧いただけます。


担当取扱い店舗情報

取扱い店舗画像
株式会社 高野不動産販売
TEL: 0258-33-7711
所在地: 新潟県長岡市柏町1丁目4-33
交通: 長岡駅
営業時間: 9:00~17:30/定休日:土曜日・日曜日・祝日・お盆・年末年始
免許番号: 新潟県知事(1)第5568号
所属団体名: (公社)新潟県宅地建物取引業協会,(公社)首都圏不動産公正取引協議会,(公財)日本賃貸住宅管理協会
取引態様: 一般
ホームページ: https://www.tknf.co.jp