新潟県長岡市今井2丁目187-2 新築一戸建て 3LDK 22,550,000円の物件情報

【価格改定】 完成済物件なのでご案内可能です!

物件名/所在地 詳細 価格
【価格改定】今井2丁目B棟(学区:宮内小・宮内中)
新潟県長岡市今井2丁目187-2
  • 土地面積
    :150.44㎡ /45.5坪
  • 建物面積
    :91.08㎡ /27.55坪
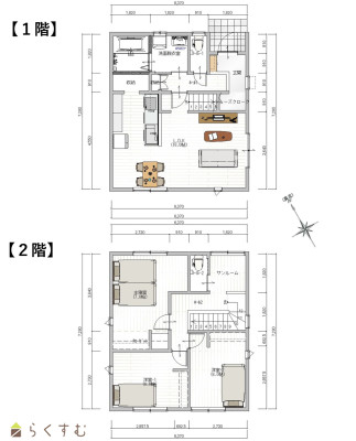
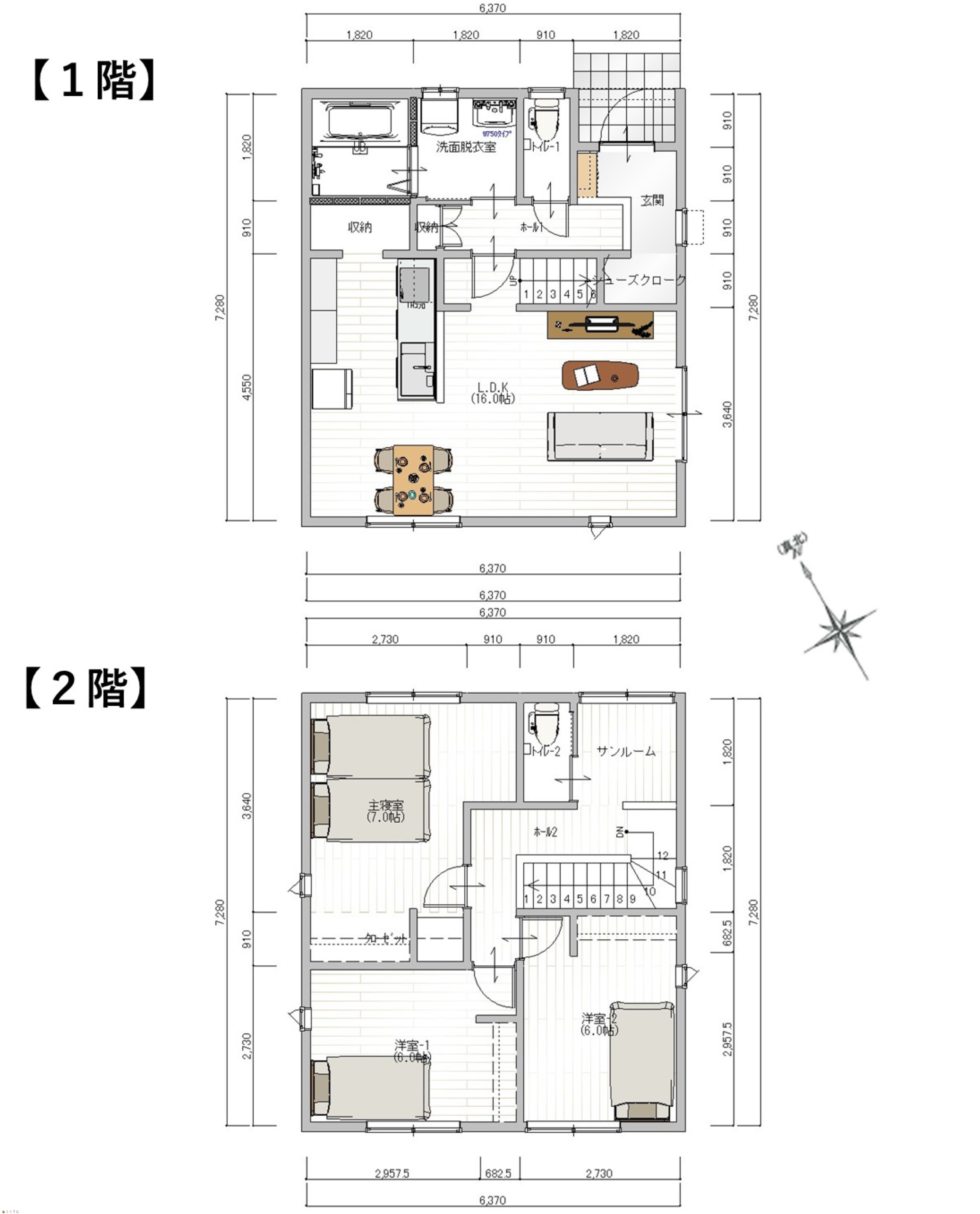
  • 間取り
    :3LDK
  • 築年月
    :2023年12月
22,550,000
  • 【価格改定】今井2丁目B棟(学区:宮内小・宮内中)
    株式会社 高野不動産販売
  • この物件を問い合わせる/無料
  • TEL: 0258-33-7711 0258-33-7711

物件画像

外観
間取り
物件画像
※画像クリックで拡大表示
外観写真
物件画像
※画像クリックで拡大表示
2階各居室は全て角部屋となり2方向に窓があります。
詳細画像
物件画像
リビング内観写真※家具等はイメージになります
物件画像
キッチン内観写真※家具等はイメージになります
物件画像
主寝室
物件画像
洋室
物件画像
洋室
物件画像
サンルーム
物件画像
浴室
物件画像
3面鏡付洗面化粧台
物件画像
トイレ
物件画像
広々玄関 開放感があります♪
物件画像
地図画像


物件概要

宮内小学校まで徒歩17分、宮内中学校まで徒歩15分です。
物件コード 00041-200831
物件名 【価格改定】今井2丁目B棟(学区:宮内小・宮内中)
交通 駅:信越線 宮内駅から徒歩20分、バス:今宮橋から徒歩5分
物件所在地 新潟県長岡市今井2丁目187-2
物件種別 新築一戸建て
構造 木造 階建 地上2階建
建ぺい率/容積率 50%/80%
建物面積 1階 44.71㎡/ 2階 46.37㎡/ 計 91.08㎡ /27.55坪
土地面積 150.44㎡ /45.5坪
築年月 2023年12月(築1年)
入居(引き渡し)時期 随時入居(引き渡し)可
用途地域 第1種低層住居専用地域 地目 宅地  (現状:宅地)
都市計画 市街化区域 学校区 宮内小学校(1,300m)・宮内中学校(1,200m)
形状 - 道路 北側/公道/幅員 約6.0m
私道 - その他の制限 外壁後退1.0m
  • 【価格改定】今井2丁目B棟(学区:宮内小・宮内中)
    株式会社 高野不動産販売
  • この物件を問い合わせる/無料
  • TEL: 0258-33-7711 0258-33-7711

物件詳細情報

所在階/階数 - 号室 -
販売価格 22,550,000円 方位
間取り 3LDK (洋室:7、6、6)
LDK16.0
専有面積 - バルコニー面積 -
その他面積 - 駐車場 -
管理費 - 修繕積立金 -
現況 空家
仲介手数料 なし
利用制限 -
設備 整形地、前面道路6m以上、日当り良好、閑静な住宅街、瑕疵担保保険付き、建物確認・完了検査済証あり、LDK15畳以上、全室フローリング、駐車場2台以上、庭あり、TVインターホン、複層ガラス、システムキッチン、IHクッキングヒーター、浄水器、食器洗浄乾燥機、追いだき機能付き、バス1坪以上、温水洗浄便座、シャワー付き洗面台、エアコン、24時間換気システム、オール電化、省エネ給湯、上水道、下水道、電気、全居室収納あり、BS端子、照明器具付き
取引態様 売主
備考 ■令和7年9月価格改定(旧価格2,355万円)
■キッチンには収納付で、食品や飲料のストック場所には困りません♪
■細かい収納が豊富で収納スペースには困りません♪
■2階には広々サンルームがあり、物干しスペースも充実♪

■宮内小学校、宮内中学校共に徒歩20分圏内です♪
■ウオロク要町店、クスリのアオキ西宮内店、車で5分圏内で買い物施設も充実♪

【月々5万円台~返済可能】
※借入額:2,355万円、借入年数:40年、金利:0.825%、銀行:第四北越銀行
以上の条件算出した場合月々返済額:58,165円
取り扱い会社

株式会社 高野不動産販売

新潟県長岡市柏町1丁目4-33

情報登録日 2025/09/29 次回更新予定日 2025/11/17
取引条件有効期限 2025/12/31
  • 【価格改定】今井2丁目B棟(学区:宮内小・宮内中)
    株式会社 高野不動産販売
  • この物件を問い合わせる/無料
  • TEL: 0258-33-7711 0258-33-7711

この物件の地図・周辺情報・行政情報

この物件の周辺情報・行政情報を詳しく見る
【周辺情報】
物件の近くにあるコンビニや銀行・学校など、アイコン付のマップで詳しく表示できます!
【行政情報】
水道料や下水道料・ガス料金など、暮らしに関係のある情報を表示しています。

担当取扱い店舗情報

取扱い店舗画像
株式会社 高野不動産販売
TEL: 0258-33-7711
所在地: 新潟県長岡市柏町1丁目4-33
交通: 長岡駅
営業時間: 9:00~17:30/定休日:土曜日・日曜日・祝日・お盆・年末年始
免許番号: 新潟県知事(1)第5568号
所属団体名: (公社)新潟県宅地建物取引業協会,(公社)首都圏不動産公正取引協議会,(公財)日本賃貸住宅管理協会
取引態様: 売主
ホームページ: https://www.tknf.co.jp