新潟県長岡市大手通2丁目4番地1 中古マンション 2LDK 29,800,000円の物件情報

長岡駅徒歩5分圏内の好立地マンション。駅から物件までアーケードがあるので、雨の日も濡れずに帰宅できます。

物件名/所在地 詳細 価格
アルファステイツ大手通
401号室
新潟県長岡市大手通2丁目4番地1
  • 専有面積
    :71.94㎡ /21.76坪
  • 間取り
    :2LDK
  • 築年月
    :2022年9月
29,800,000
  • アルファステイツ大手通
    髙頭不動産 株式会社
  • この物件を問い合わせる/無料
  • TEL: 0120-1818-27 0120-1818-27

物件画像

外観
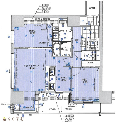
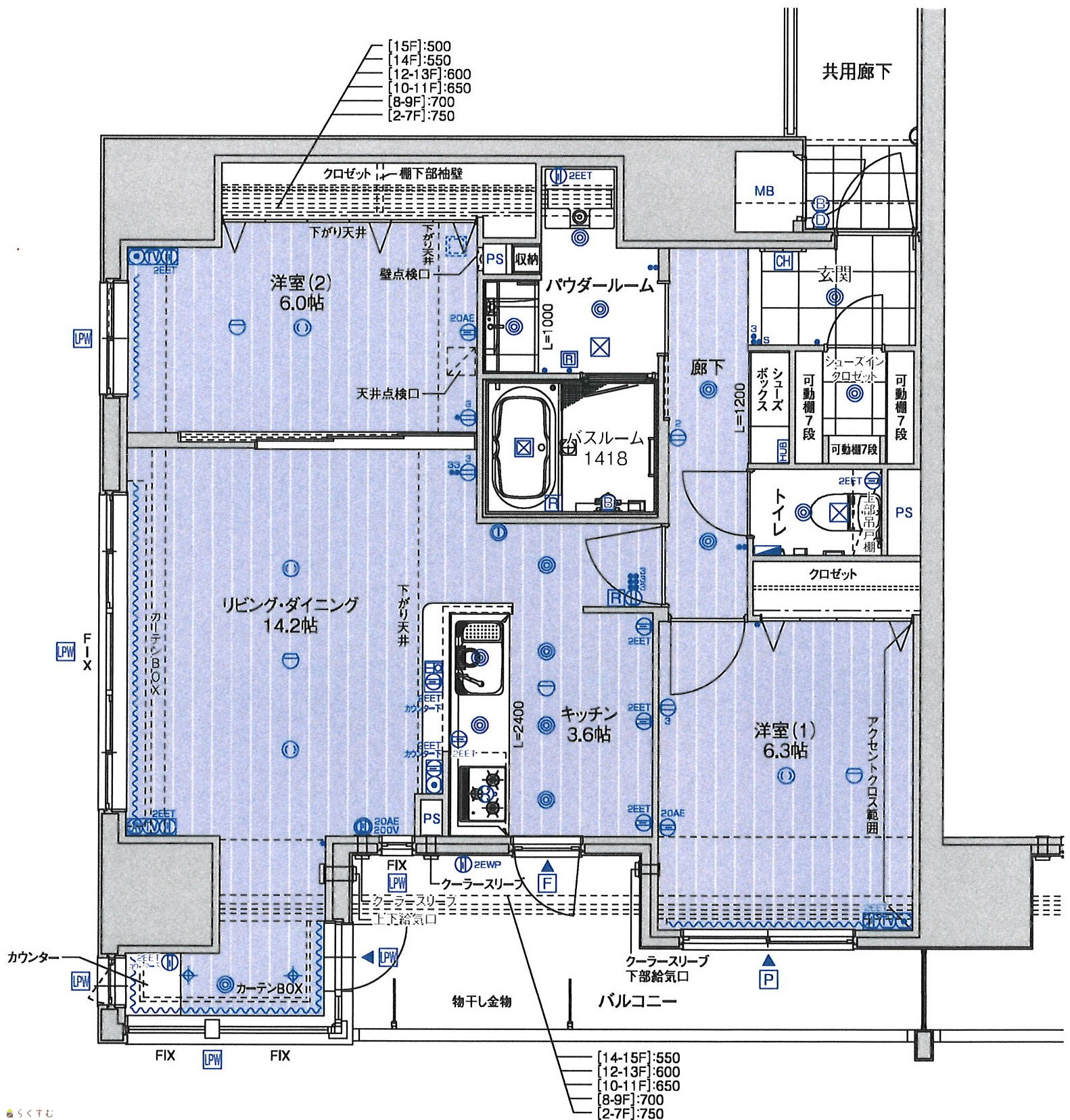
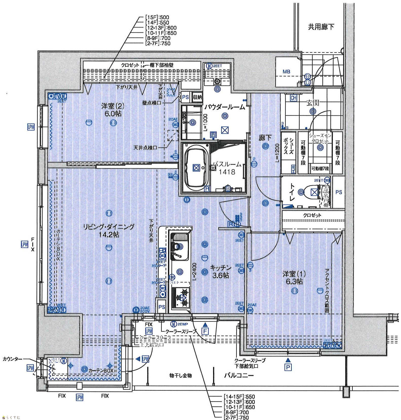
間取り
物件画像
※画像クリックで拡大表示
外観
物件画像
※画像クリックで拡大表示
間取り
詳細画像
物件画像
エントランス
物件画像
洗面所
物件画像
トイレ
物件画像
リビング
物件画像
洋室
物件画像
キッチン
物件画像
玄関
物件画像
バスルーム
物件画像
収納
物件画像
バルコニー
物件画像
印刷用地図
動画


物件概要

南西角地・ペット可・インターネット無料
物件コード 00040-201151
物件名 アルファステイツ大手通
交通 駅:信越線 長岡駅から徒歩10分、バス:大手通2丁目から徒歩1分
物件所在地 新潟県長岡市大手通2丁目4番地1
物件種別 中古マンション
構造 鉄筋コン 階建 地上15階建
建ぺい率/容積率 90%/600%
建物面積 計 4,284.29㎡ /1,295.99坪
土地面積 699.01㎡ /211.45坪
築年月 2022年9月(築3年)
入居(引き渡し)時期 随時入居(引き渡し)可
用途地域 商業地域 地目 宅地  (現状:宅地)
都市計画 市街化区域 学校区 阪之上小学校(777m)・東中学校(1,340m)
形状 - 道路 北側 国道 東側 市道
私道 - その他の制限 防火地域
  • アルファステイツ大手通
    髙頭不動産 株式会社
  • この物件を問い合わせる/無料
  • TEL: 0120-1818-27 0120-1818-27

物件詳細情報

所在階/階数 4階/15階 号室 401号室
販売価格 29,800,000円 方位 南西
間取り 2LDK
専有面積 71.94㎡ /21.76坪 バルコニー面積 9.56㎡ /2.89坪
その他面積 - 駐車場 17,000円~
管理費 9,800円 修繕積立金 4,700円
現況 空家
仲介手数料 1,049,400円
災害積立金 300円
利用制限 ペット:可、楽器:可
設備 10階建て以上、角部屋、2階以上、日当り良好、スーパー近く、洗濯機置き場、エレベーター、全室フローリング、築5年以内、駐輪場、南向き、管理人常駐(日中)、セキュリティー良し、TV付きインターホン、エントランスオートロック、システムキッチン、対面式キッチン、3口コンロ、ガスコンロ設置済み、浴室乾燥機、温水洗浄便座、シャワー付き洗面台、エアコン、都市ガス、公営水道、下水道、シューズBOX、シューズインクローゼット、即入居可能、ペット相談
取引態様 一般
備考 -
取り扱い会社

髙頭不動産 株式会社

新潟県長岡市千歳1-3-25

情報登録日 2025/08/21 次回更新予定日 2026/03/06
取引条件有効期限 2025/11/18
  • アルファステイツ大手通
    髙頭不動産 株式会社
  • この物件を問い合わせる/無料
  • TEL: 0120-1818-27 0120-1818-27

この物件の地図・周辺情報・行政情報

この物件の周辺情報・行政情報を詳しく見る
【周辺情報】
物件の近くにあるコンビニや銀行・学校など、アイコン付のマップで詳しく表示できます!
【行政情報】
水道料や下水道料・ガス料金など、暮らしに関係のある情報を表示しています。
セブン-イレブン アオーレ長岡店(コンビニ)まで310m
共栄堂薬局ながおか店(ドラッグストア)まで290m
みつまクリニック(病院)までm
長岡信用金庫 営業推進部(銀行)までm
長岡郵便局(郵便局)までm

※カメラのアイコンがある場合は、マウスをポイントするとその施設の画像がご覧いただけます。


担当取扱い店舗情報

取扱い店舗画像
髙頭不動産 株式会社
TEL: 0120-1818-27
所在地: 新潟県長岡市千歳1-3-25
交通: 長岡駅
営業時間: 8時30分~17時30分(大手支店は9時~18時)/定休日:本社:土日祝日(事前予約での対応可能)、支店:日曜祝日第5土曜(毎年2月下旬から3月は休みなし)
免許番号: 新潟県知事(17)第191号
所属団体名: 新潟県宅地建物取引協会 長岡支部
取引態様: 一般
ホームページ: http://www.takato-f.com