新潟県長岡市江陽2-12-21 中古一戸建て 4LDK 15,000,000円の物件情報

事務所併用住宅です。1階は事務所仕様となっており、フリースペースとしてご使用いただけます。

物件名/所在地 詳細 価格
江陽売住宅
新潟県長岡市江陽2-12-21
  • 土地面積
    :225㎡ /68.06坪
  • 建物面積
    :203.77㎡ /61.64坪
  • 間取り
    :4LDK
  • 築年月
    :1985年5月
15,000,000
  • 江陽売住宅
    髙頭不動産 株式会社
  • この物件を問い合わせる/無料
  • TEL: 0120-1818-27 0120-1818-27

物件画像

外観
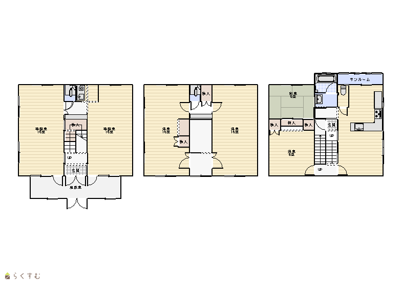
間取り
物件画像
※画像クリックで拡大表示
外観
物件画像
※画像クリックで拡大表示
間取り
詳細画像
物件画像
1階 事務所スペース
物件画像
1階 事務所スペース2
物件画像
2階 洋室
物件画像
2階 洋室2
物件画像
3階 LDK 
物件画像
LDK
物件画像
浴室
物件画像
洗面
物件画像
トイレ
物件画像
和室
物件画像
3階 洋室
物件画像
玄関
物件画像
風除室
物件画像
印刷用地図


物件概要

駐車スペースは4台~5台、消雪設備あります。
物件コード 00040-201135
物件名 江陽売住宅
交通 バス:堤町から徒歩2分
物件所在地 新潟県長岡市江陽2-12-21
物件種別 中古一戸建て
構造 鉄骨 階建 地上3階建
建ぺい率/容積率 80%/200%
建物面積 1階 66.24㎡/ 2階 66.24㎡/ 3階 71.29㎡/ 計 203.77㎡ /61.64坪
土地面積 225㎡ /68.06坪
築年月 1985年5月(築40年)
入居(引き渡し)時期 随時入居(引き渡し)可
用途地域 近隣商業地域 地目 宅地  (現状:宅地)
都市計画 市街化区域 学校区 上川西小学校(639m)・江陽中学校(465m)
形状 間口 10m × 奥行 21m 道路 公道
私道 - その他の制限 準防火地域
  • 江陽売住宅
    髙頭不動産 株式会社
  • この物件を問い合わせる/無料
  • TEL: 0120-1818-27 0120-1818-27

物件詳細情報

所在階/階数 - 号室 -
販売価格 15,000,000円 方位
間取り 4LDK (和室:6畳) (洋室:7、14.5、14.5)
LDK13
1階事務所仕様スペースあり。 サンルームあり。
専有面積 - バルコニー面積 -
その他面積 - 駐車場 -
管理費 - 修繕積立金 -
現況 -
仲介手数料 561,000円
利用制限 -
設備 日当り良好、駐車3台以上可能、駐車場融雪設備あり、システムキッチン、都市ガス、上水道、下水道、即引き渡し可能、事業向け
取引態様 専任
備考 増築部分は未登記です。
陽当たりの良い住宅です。
取り扱い会社

髙頭不動産 株式会社

新潟県長岡市千歳1-3-25

情報登録日 2025/07/01 次回更新予定日 2025/11/19
取引条件有効期限 2025/09/26
  • 江陽売住宅
    髙頭不動産 株式会社
  • この物件を問い合わせる/無料
  • TEL: 0120-1818-27 0120-1818-27

この物件の地図・周辺情報・行政情報

この物件の周辺情報・行政情報を詳しく見る
【周辺情報】
物件の近くにあるコンビニや銀行・学校など、アイコン付のマップで詳しく表示できます!
【行政情報】
水道料や下水道料・ガス料金など、暮らしに関係のある情報を表示しています。
セブン-イレブン 長岡堤町店(コンビニ)まで270m
JAえちご中越 上川西支店(銀行)まで150m
第四北越銀行 江陽支店(銀行)まで560m
大光銀行 長岡西支店(銀行)まで540m
長岡信用金庫 江陽支店(銀行)まで730m
上川西簡易郵便局(郵便局)まで270m

※カメラのアイコンがある場合は、マウスをポイントするとその施設の画像がご覧いただけます。


担当取扱い店舗情報

取扱い店舗画像
髙頭不動産 株式会社
TEL: 0120-1818-27
所在地: 新潟県長岡市千歳1-3-25
交通: 長岡駅
営業時間: 8時30分~17時30分(大手支店は9時~18時)/定休日:本社:土日祝日(事前予約での対応可能)、支店:日曜祝日第5土曜(毎年2月下旬から3月は休みなし)
免許番号: 新潟県知事(17)第191号
所属団体名: 新潟県宅地建物取引協会 長岡支部
取引態様: 専任
ホームページ: http://www.takato-f.com