新潟県長岡市与板町与板459 中古一戸建て 11DK 4,800,000円の物件情報

与板のメインストリート沿いに佇む店舗併設の住宅です!レトロな土蔵付き♪

物件名/所在地 詳細 価格
長岡市与板町与板 売住宅
新潟県長岡市与板町与板459
  • 土地面積
    :448.08㎡ /135.54坪
  • 建物面積
    :326.4㎡ /98.73坪
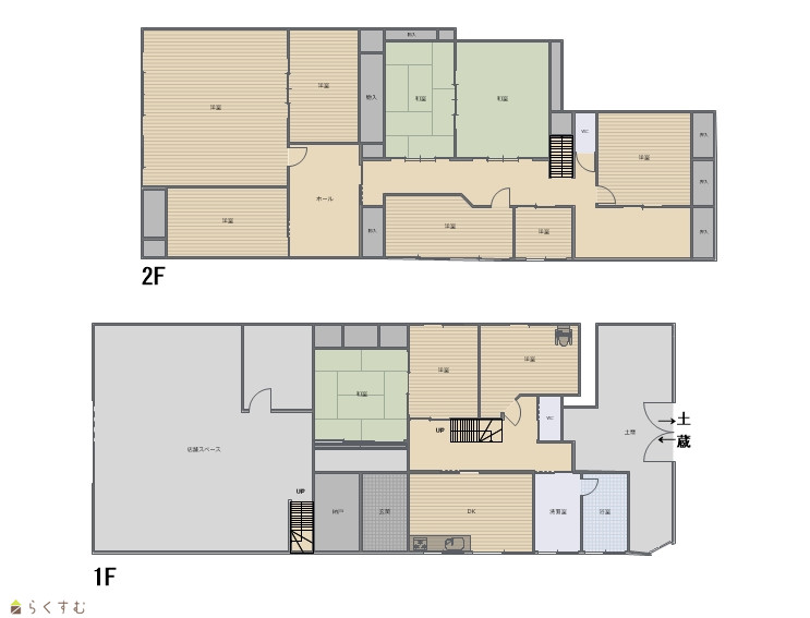
  • 間取り
    :11DK
  • 築年月
    :1935年1月
4,800,000
  • 長岡市与板町与板 売住宅
    髙頭不動産 株式会社
  • この物件を問い合わせる/無料
  • TEL: 0120-1818-27 0120-1818-27

物件画像

外観
間取り
物件画像
※画像クリックで拡大表示
外観
物件画像
※画像クリックで拡大表示
間取図(現況優先)
詳細画像
物件画像
2F和室
物件画像
カーポート・車庫付き(2台縦列駐車)
物件画像
キッチン
物件画像
浴室
物件画像
土蔵内
物件画像
重厚な土蔵戸前
物件画像
1FWC
物件画像
店舗スペース
物件画像
地図画像


物件概要

物件コード 00040-201107
物件名 長岡市与板町与板 売住宅
交通 駅:信越線 見附駅から徒歩132分、バス:与板仲町から徒歩3分
物件所在地 新潟県長岡市与板町与板459
物件種別 中古一戸建て
構造 木造 階建 地上2階建
建ぺい率/容積率 80%/400%
建物面積 1階 173.12㎡/ 2階 153.28㎡/ 計 326.4㎡ /98.73坪
土地面積 448.08㎡ /135.54坪
築年月 1935年1月(築91年)
入居(引き渡し)時期 相談
用途地域 商業地域 地目 宅地
都市計画 市街化区域 学校区 与板小学校(428m)・与板中学校(541m)
形状 間口 14m × 奥行 29m 道路 西側 公道 約15m
私道 - その他の制限 ※準防火地域
  • 長岡市与板町与板 売住宅
    髙頭不動産 株式会社
  • この物件を問い合わせる/無料
  • TEL: 0120-1818-27 0120-1818-27

物件詳細情報

所在階/階数 - 号室 -
販売価格 4,800,000円 方位 -
間取り 11DK
専有面積 - バルコニー面積 -
その他面積 - 駐車場 -
管理費 - 修繕積立金 -
現況 空家
仲介手数料 330,000円
利用制限 -
設備 駐車2台可能、システムキッチン、トイレ2か所以上、都市ガス、上水道、下水道、事業向け
取引態様 一般
備考 ※現況有姿渡し
※売主契約不適合免責
取り扱い会社

髙頭不動産 株式会社

新潟県長岡市千歳1-3-25

情報登録日 2025/05/08 次回更新予定日 2026/06/05
取引条件有効期限 2025/08/08
  • 長岡市与板町与板 売住宅
    髙頭不動産 株式会社
  • この物件を問い合わせる/無料
  • TEL: 0120-1818-27 0120-1818-27

この物件の地図・周辺情報・行政情報

この物件の周辺情報・行政情報を詳しく見る
【周辺情報】
物件の近くにあるコンビニや銀行・学校など、アイコン付のマップで詳しく表示できます!
【行政情報】
水道料や下水道料・ガス料金など、暮らしに関係のある情報を表示しています。
マルイ 与板店(スーパー)まで910m
ウエルシア長岡与板店 (調剤薬局)(ドラッグストア)まで970m

※カメラのアイコンがある場合は、マウスをポイントするとその施設の画像がご覧いただけます。


担当取扱い店舗情報

取扱い店舗画像
髙頭不動産 株式会社
TEL: 0120-1818-27
所在地: 新潟県長岡市千歳1-3-25
交通: 長岡駅
営業時間: 8時30分~17時30分(大手支店は9時~18時)/定休日:本社:土日祝日(事前予約での対応可能)、支店:日曜祝日第5土曜(毎年2月下旬から3月は休みなし)
免許番号: 新潟県知事(17)第191号
所属団体名: 新潟県宅地建物取引協会 長岡支部
取引態様: 一般
ホームページ: http://www.takato-f.com