新潟県長岡市土合3丁目1-15 中古一戸建て 4LDK 18,000,000円の物件情報

長岡花園ショッピングセンター、四郎丸小学校まで徒歩圏内!前面道路消雪パイプあり!1・2階ともにトイレのあるLDK16帖の広々2×4住宅です☆彡

物件名/所在地 詳細 価格
土合3丁目 売住宅
新潟県長岡市土合3丁目1-15
  • 土地面積
    :214.99㎡ /65.03坪
  • 建物面積
    :132.54㎡ /40.09坪
  • 間取り
    :4LDK
  • 築年月
    :1994年9月
18,000,000
  • 土合3丁目 売住宅
    髙頭不動産 株式会社
  • この物件を問い合わせる/無料
  • TEL: 0120-1818-27 0120-1818-27

物件画像

外観
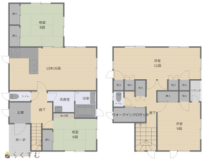
間取り
物件画像
※画像クリックで拡大表示
外観(令和3年に外壁改修済)
物件画像
※画像クリックで拡大表示
間取り ※現況と異なる場合は現況を優先します。
詳細画像
物件画像
リビングからキッチン
物件画像
トイレ(手洗い付)
物件画像
1階和室
物件画像
二つに仕切れる洋室(2階)
物件画像
ユニットバス
物件画像
2階洋室
物件画像
2階トイレ
物件画像
2階にも洗面があります
物件画像
地図


物件概要

令和3年に外壁改修、屋根塗装を行っております。
物件コード 00040-201079
物件名 土合3丁目 売住宅
交通 駅:上越新幹線 長岡駅から徒歩23分、バス:花園3丁目から徒歩4分
物件所在地 新潟県長岡市土合3丁目1-15
物件種別 中古一戸建て
構造 木造 階建 地上2階建
建ぺい率/容積率 50%/100%
建物面積 1階 75.38㎡/ 2階 57.16㎡/ 計 132.54㎡ /40.09坪
土地面積 214.99㎡ /65.03坪
築年月 1994年9月(築31年)
入居(引き渡し)時期 相談
用途地域 第1種低層住居専用地域 地目 宅地  (現状:宅地)
都市計画 市街化区域 学校区 四郎丸小学校(429m)・南中学校(1,137m)
形状 間口 8.5m 道路 北西 公道 幅員6m 融雪道路
私道 - その他の制限 -
  • 土合3丁目 売住宅
    髙頭不動産 株式会社
  • この物件を問い合わせる/無料
  • TEL: 0120-1818-27 0120-1818-27

物件詳細情報

所在階/階数 - 号室 -
販売価格 18,000,000円 方位 北西
間取り 4LDK (和室:8畳、6畳) (洋室:12、9)
LDK16
専有面積 - バルコニー面積 -
その他面積 - 駐車場 -
管理費 - 修繕積立金 -
現況 空家
仲介手数料 660,000円
利用制限 -
設備 閑静な住宅街、スーパー近く、LDK15帖以上、駐車2台可能、都市ガス、上水道、下水道、ウォークインクローゼット、全居室収納あり
取引態様 一般
備考 ※第一種高度地区、建築基準法第22条区域、高さ制限10m、都市再生特別措置法(まちなか居住区域)に該当します。
取り扱い会社

髙頭不動産 株式会社

新潟県長岡市千歳1-3-25

情報登録日 2025/08/19 次回更新予定日 2025/11/20
取引条件有効期限 2025/11/17
  • 土合3丁目 売住宅
    髙頭不動産 株式会社
  • この物件を問い合わせる/無料
  • TEL: 0120-1818-27 0120-1818-27

この物件の地図・周辺情報・行政情報

この物件の周辺情報・行政情報を詳しく見る
【周辺情報】
物件の近くにあるコンビニや銀行・学校など、アイコン付のマップで詳しく表示できます!
【行政情報】
水道料や下水道料・ガス料金など、暮らしに関係のある情報を表示しています。
セブン-イレブン 長岡土合店(コンビニ)まで410m
セブン-イレブン 長岡豊田町店(コンビニ)まで780m
マルイ 長岡学校町店(スーパー)まで410m
原信 長岡花園店(スーパー)まで900m

※カメラのアイコンがある場合は、マウスをポイントするとその施設の画像がご覧いただけます。


担当取扱い店舗情報

取扱い店舗画像
髙頭不動産 株式会社
TEL: 0120-1818-27
所在地: 新潟県長岡市千歳1-3-25
交通: 長岡駅
営業時間: 8時30分~17時30分(大手支店は9時~18時)/定休日:本社:土日祝日(事前予約での対応可能)、支店:日曜祝日第5土曜(毎年2月下旬から3月は休みなし)
免許番号: 新潟県知事(17)第191号
所属団体名: 新潟県宅地建物取引協会 長岡支部
取引態様: 一般
ホームページ: http://www.takato-f.com