新潟県柏崎市畔屋2230番1 中古一戸建て 6DK 3,300,000円の物件情報

外装・内装リフォーム済み、田園風景の広がる静かな立地です。

物件名/所在地 詳細 価格
柏崎畔屋 戸建て
新潟県柏崎市畔屋2230番1
  • 土地面積
    :532.17㎡ /160.98坪
  • 建物面積
    :140.97㎡ /42.64坪
  • 間取り
    :6DK
  • 築年月
    :1975年1月
3,300,000
  • 柏崎畔屋 戸建て
    髙頭不動産 株式会社
  • この物件を問い合わせる/無料
  • TEL: 0120-1818-27 0120-1818-27

物件画像

外観
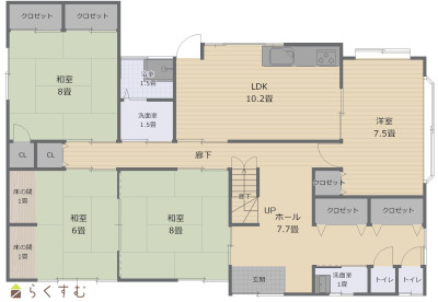
間取り
物件画像
※画像クリックで拡大表示
外観写真
物件画像
※画像クリックで拡大表示
1階間取り
詳細画像
物件画像
外観写真2
物件画像
1階和室
物件画像
浴室
物件画像
ダイニングキッチン
物件画像
1階洋室
物件画像
トイレ(トイレ2箇所有り)
物件画像
2階和室
物件画像
2階洋室
物件画像
2階間取り
物件画像
周辺マップ


物件概要

給湯器やガス・上下水の配管も新品交換済みです!
物件コード 00040-201050
物件名 柏崎畔屋 戸建て
交通 駅:越後線 西中通駅から徒歩57分、バス:畔屋から徒歩4分
物件所在地 新潟県柏崎市畔屋2230番1
物件種別 中古一戸建て
構造 木造 階建 地上2階建
建ぺい率/容積率 70%/200%
建物面積 1階 109.51㎡/ 2階 31.46㎡/ 計 140.97㎡ /42.64坪
土地面積 532.17㎡ /160.98坪
築年月 1975年1月(築51年)
入居(引き渡し)時期 随時入居(引き渡し)可
用途地域 無指定 地目 宅地  (現状:上物有り)
都市計画 非線引き都市計画区域 学校区 北鯖石小学校(1,362m)・東中学校(2,211m)
形状 - 道路 北側公道幅員5.1 m、南側公道幅員3.4m~4.2m
私道 - その他の制限 -
  • 柏崎畔屋 戸建て
    髙頭不動産 株式会社
  • この物件を問い合わせる/無料
  • TEL: 0120-1818-27 0120-1818-27

物件詳細情報

所在階/階数 - 号室 -
販売価格 3,300,000円 方位 指定なし
間取り 6DK
DK約10畳
・隣接地との境界の明示は行いません。・現況有形有姿での引渡しとなります。
専有面積 - バルコニー面積 -
その他面積 - 駐車場 -
管理費 - 修繕積立金 -
現況 空家
仲介手数料 330,000円
利用制限 -
設備 日当り良好、閑静な住宅街、駐車2台可能、駐車3台以上可能、トイレ2か所以上、エアコンあり、都市ガス、上水道、下水道、内装リフォーム済み、外装リフォーム済み
取引態様 一般
備考 ・隣接地との境界の明示は行いません。(公簿面積売買)
・隣接者所有の物置小屋一部が本物件内に越境しています。
・上記状況及び物件内の動産物(残置物)含めて現況有形有姿での引渡しです。
・南側公道幅員:3.4m~4.2m
取り扱い会社

髙頭不動産 株式会社

新潟県長岡市千歳1-3-25

情報登録日 2024/11/05 次回更新予定日 2026/06/05
取引条件有効期限 2024/01/02
  • 柏崎畔屋 戸建て
    髙頭不動産 株式会社
  • この物件を問い合わせる/無料
  • TEL: 0120-1818-27 0120-1818-27

この物件の地図・周辺情報・行政情報

この物件の周辺情報・行政情報を詳しく見る
【周辺情報】
物件の近くにあるコンビニや銀行・学校など、アイコン付のマップで詳しく表示できます!
【行政情報】
水道料や下水道料・ガス料金など、暮らしに関係のある情報を表示しています。

担当取扱い店舗情報

取扱い店舗画像
髙頭不動産 株式会社
TEL: 0120-1818-27
所在地: 新潟県長岡市千歳1-3-25
交通: 長岡駅
営業時間: 8時30分~17時30分(大手支店は9時~18時)/定休日:本社:土日祝日(事前予約での対応可能)、支店:日曜祝日第5土曜(毎年2月下旬から3月は休みなし)
免許番号: 新潟県知事(17)第191号
所属団体名: 新潟県宅地建物取引協会 長岡支部
取引態様: 一般
ホームページ: http://www.takato-f.com