新潟県燕市花見212-1 売土地・分譲地 35,800,000円の物件情報

燕市花見 事業用地

物件名/所在地 詳細 価格
燕市花見 売土地
新潟県燕市花見212-1
  • 土地面積
    :1,046.91㎡ /316.69坪
  • 坪単価
    :113,044円/坪
  • 建ぺい率
    :70%
  • 容積率
    :200%
35,800,000
  • 燕市花見 売土地
    髙頭不動産 株式会社
  • この物件を問い合わせる/無料
  • TEL: 0120-1818-27 0120-1818-27

物件画像

外観
間取り
物件画像
※画像クリックで拡大表示
物件画像
※画像クリックで拡大表示
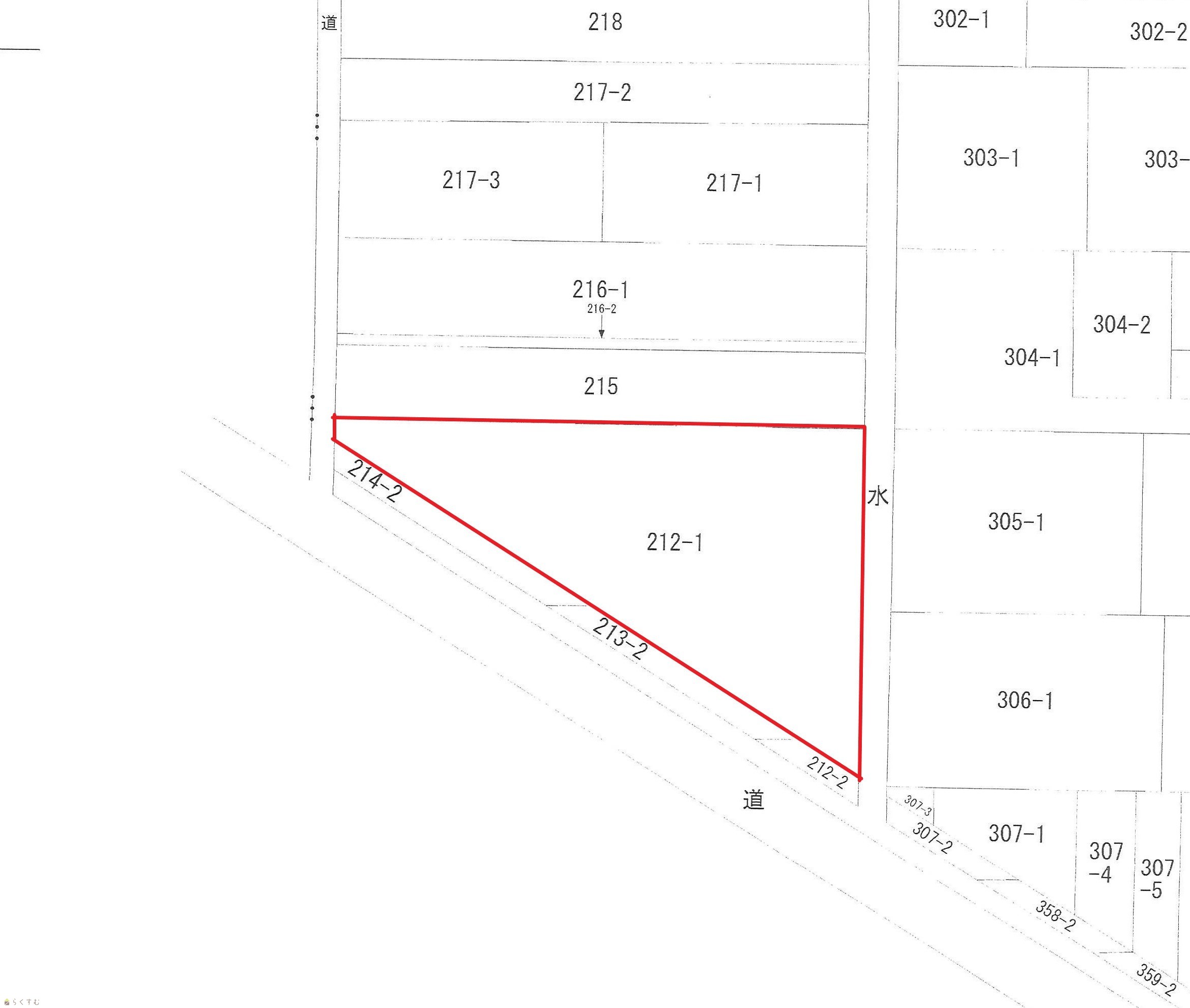
公図
詳細画像
物件画像
物件画像


物件概要

物件コード 00040-200848
物件名 燕市花見 売土地
交通 駅:弥彦線 西燕駅から徒歩6分、バス:西燕駅から徒歩7分
物件所在地 新潟県燕市花見212-1
物件種別 売土地・分譲地
物件区分 売土地
構造 - 階建 -
建ぺい率/容積率 70%/200%
建物面積 -
土地面積 1,046.91㎡ /316.69坪
築年月 -
入居(引き渡し)時期 指定なし
用途地域 無指定 地目 宅地
都市計画 非線引き都市計画区域 学校区 燕西小学校・燕中学校
形状 - 道路 燕市道
私道 - その他の制限 -
  • 燕市花見 売土地
    髙頭不動産 株式会社
  • この物件を問い合わせる/無料
  • TEL: 0120-1818-27 0120-1818-27

物件詳細情報

所在階/階数 - 号室 -
販売価格 35,800,000円 方位 -
間取り -
専有面積 - バルコニー面積 -
その他面積 - 駐車場 -
管理費 - 修繕積立金 -
現況 更地
仲介手数料 1,247,400円
利用制限 -
設備 最寄り駅近く、所有権、上水道(宅地内)、下水道(宅地内)、前面道路融雪設備あり、事業用向け
取引態様 専任
備考 宅内に燕市防災無線あり
取り扱い会社

髙頭不動産 株式会社

新潟県長岡市千歳1-3-25

情報登録日 2022/09/13 次回更新予定日 2026/04/23
取引条件有効期限 -
  • 燕市花見 売土地
    髙頭不動産 株式会社
  • この物件を問い合わせる/無料
  • TEL: 0120-1818-27 0120-1818-27

この物件の地図・周辺情報・行政情報

この物件の周辺情報・行政情報を詳しく見る
【周辺情報】
物件の近くにあるコンビニや銀行・学校など、アイコン付のマップで詳しく表示できます!
【行政情報】
水道料や下水道料・ガス料金など、暮らしに関係のある情報を表示しています。
セブン-イレブン 燕桜町店(コンビニ)まで630m

※カメラのアイコンがある場合は、マウスをポイントするとその施設の画像がご覧いただけます。


担当取扱い店舗情報

取扱い店舗画像
髙頭不動産 株式会社
TEL: 0120-1818-27
所在地: 新潟県長岡市千歳1-3-25
交通: 長岡駅
営業時間: 8時30分~17時30分(大手支店は9時~18時)/定休日:本社:土日祝日(事前予約での対応可能)、支店:日曜祝日第5土曜(毎年2月下旬から3月は休みなし)
免許番号: 新潟県知事(17)第191号
所属団体名: 新潟県宅地建物取引協会 長岡支部
取引態様: 専任
ホームページ: http://www.takato-f.com