新潟県柏崎市茨目2丁目956-1 投資物件・その他 23,500,000円の物件情報

旧内科医院です。

物件名/所在地 詳細 価格
表面利回り
茨目180-108
新潟県柏崎市茨目2丁目956-1
  • 土地面積
    :597.38㎡ /180.7坪
  • 建ぺい率
    :70%
  • 容積率
    :200%
23,500,000
-
  • 茨目180-108
    株式会社 ウェルネスホーム
  • この物件を問い合わせる/無料
  • TEL: 0258-29-0003 0258-29-0003

物件画像

外観
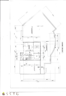
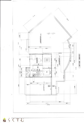
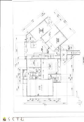
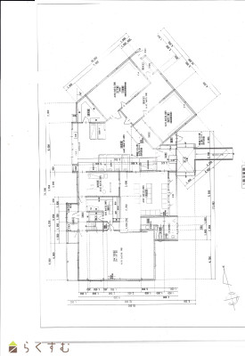
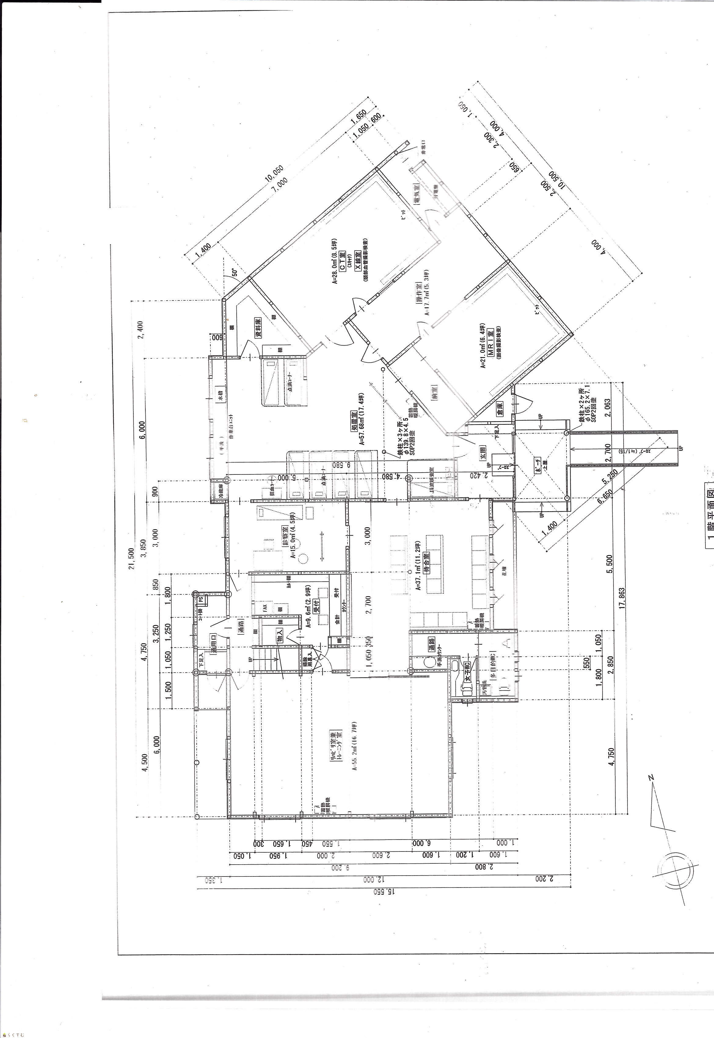
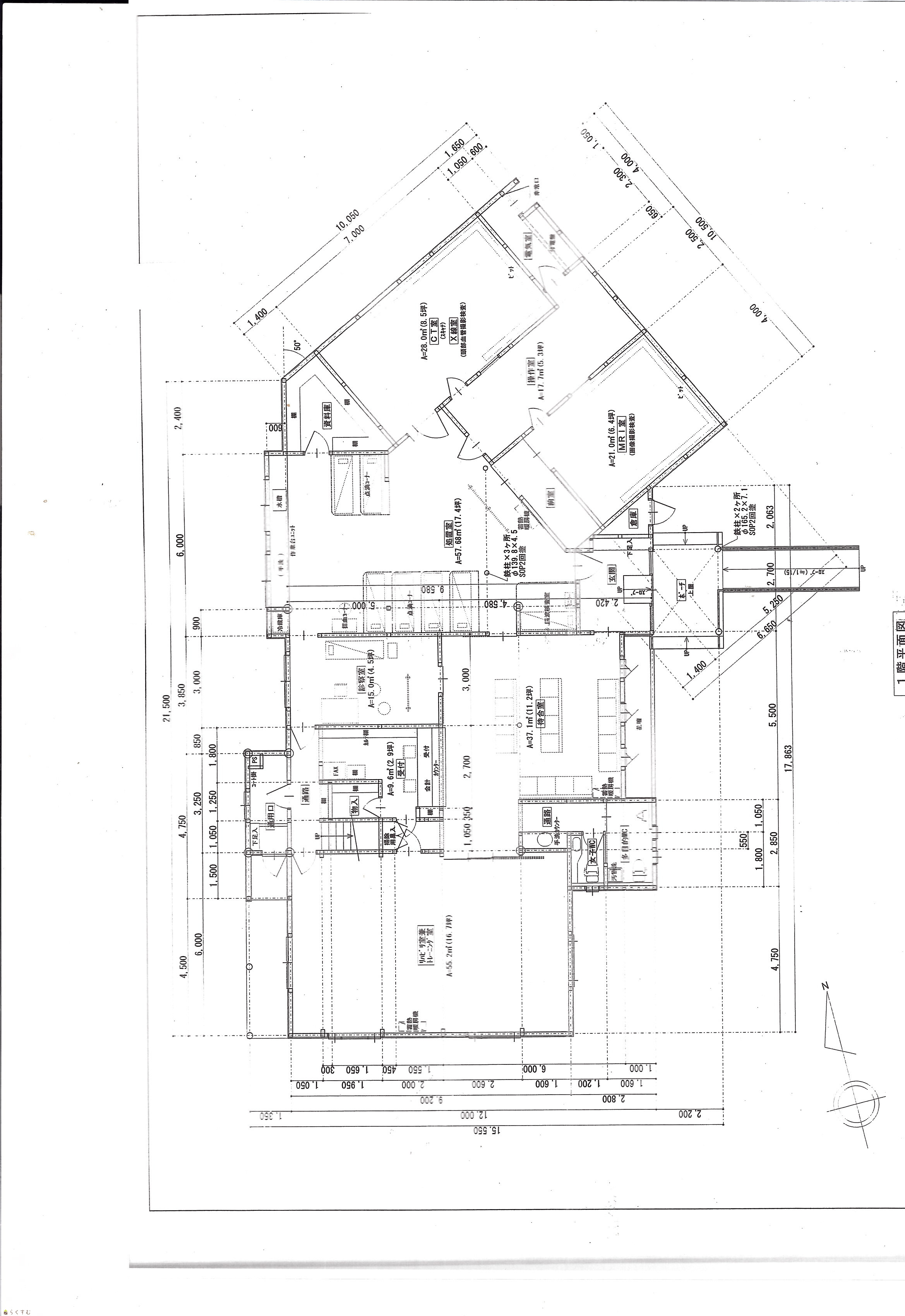
間取り
物件画像
※画像クリックで拡大表示
外観
物件画像
※画像クリックで拡大表示
間取り
詳細画像
物件画像
待合室
物件画像
受付部
物件画像
トレーニング室
物件画像
診察室
物件画像
処置室
物件画像
MRI室
物件画像
CT室
物件画像
トイレ1
物件画像
2階湯沸
物件画像
2階トイレ
物件画像
2階洋間
物件画像
2階平面図
物件画像
印刷用地図


物件概要

物件コード 00031-200169
物件名 茨目180-108
交通 駅:信越線 茨目駅から徒歩7分、バス:柏崎インター口から徒歩2分
物件所在地 新潟県柏崎市茨目2丁目956-1
物件種別 投資物件・その他
物件区分 その他
構造 木造 階建 -
建ぺい率/容積率 70%/200%
建物面積 1階 294.39㎡/ 2階 65.18㎡/ 計 359.57㎡ /108.76坪
土地面積 597.38㎡ /180.7坪
築年月 2005年11月(築20年)
入居(引き渡し)時期 相談
用途地域 用途の指定のない地域 地目 宅地
都市計画 非線引き都市計画区域 学校区 田尻小学校(1,944m)・東中学校(1,845m)
形状 間口 32.53m 道路 公道
私道 - その他の制限 -
  • 茨目180-108
    株式会社 ウェルネスホーム
  • この物件を問い合わせる/無料
  • TEL: 0258-29-0003 0258-29-0003

物件詳細情報

所在階/階数 - 号室 -
販売価格 23,500,000円 方位 -
表面利回り(満室想定時) - 満室想定年収 - (想定月収: - )
現行利回り - 現行年間年収 -
住戸数 -
間取り -
専有面積 - バルコニー面積 -
その他面積 - 駐車場 8台
管理費 - 修繕積立金 -
現況 空家
仲介手数料 841,500円
利用制限 -
設備 南側道路面す、駐車場(近隣含む)、公営水道、下水道、事業向け
取引態様 一般
備考 キュービクル設備は撤去してあります。エアコンは使用できません。
取り扱い会社

株式会社 ウェルネスホーム

新潟県長岡市大山1-8-5

情報登録日 2025/11/11 次回更新予定日 2026/06/05
取引条件有効期限 2026/03/31
  • 茨目180-108
    株式会社 ウェルネスホーム
  • この物件を問い合わせる/無料
  • TEL: 0258-29-0003 0258-29-0003

この物件の地図・周辺情報・行政情報

この物件の周辺情報・行政情報を詳しく見る
【周辺情報】
物件の近くにあるコンビニや銀行・学校など、アイコン付のマップで詳しく表示できます!
【行政情報】
水道料や下水道料・ガス料金など、暮らしに関係のある情報を表示しています。

担当取扱い店舗情報

取扱い店舗画像
株式会社 ウェルネスホーム
TEL: 0258-29-0003
所在地: 新潟県長岡市大山1-8-5
交通:
営業時間: 9:30~18:00/定休日:日曜・祭日 土曜は不定休
免許番号: 新潟県知事(8)3794号
所属団体名: 公益社団法人 全国宅地建物取引業保証協会
取引態様: 一般
ホームページ: http://www.wellnesshome.co.jp/