新潟県長岡市関原町5丁目110番2 売土地・分譲地 6,987,000円の物件情報

関原中学校・コンビニ徒歩3分♪国道8号へアクセスしやすい立地です♪

物件名/所在地 詳細 価格
関原町5丁目売土地
新潟県長岡市関原町5丁目110番2
  • 土地面積
    :231㎡ /69.87坪
  • 坪単価
    :100,000円/坪
  • 建ぺい率
    :50%
  • 容積率
    :80%
6,987,000
  • 関原町5丁目売土地
    株式会社 長岡総合開発
  • この物件を問い合わせる/無料
  • TEL: 0258-46-8777 0258-46-8777

物件画像

外観
間取り
物件画像
※画像クリックで拡大表示
外観
物件画像
※画像クリックで拡大表示
間取り
詳細画像
物件画像
印刷用地図


物件概要

物件コード 00030-200530
物件名 関原町5丁目売土地
交通 バス:池の端から徒歩7分
物件所在地 新潟県長岡市関原町5丁目110番2
物件種別 売土地・分譲地
物件区分 売土地
構造 - 階建 -
建ぺい率/容積率 50%/80%
建物面積 -
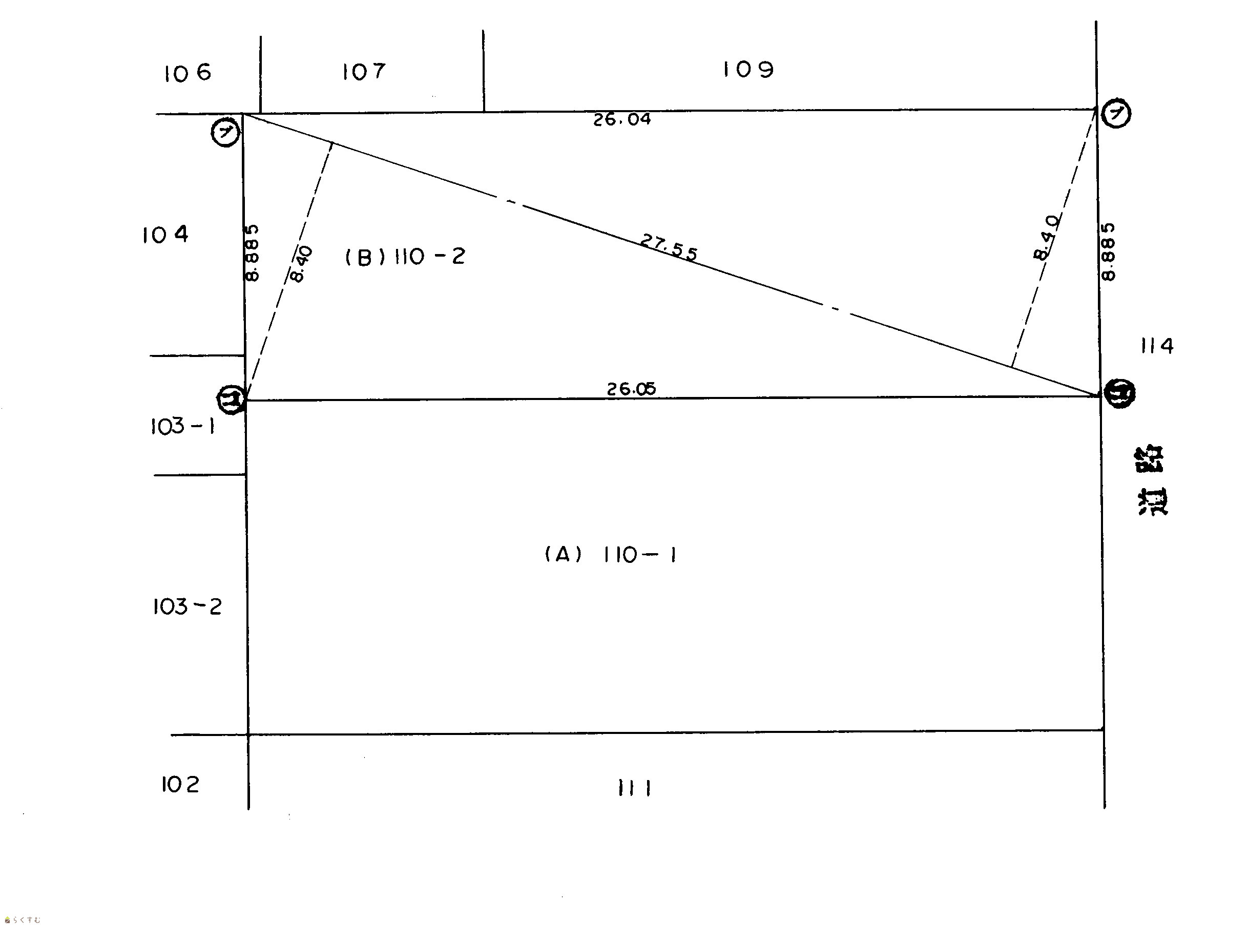
土地面積 231㎡ /69.87坪
築年月 -
入居(引き渡し)時期 随時入居(引き渡し)可
用途地域 第1種低層住居専用地域 地目 畑  (現状:宅地)
都市計画 市街化区域 学校区 関原小学校(112m)・関原中学校(599m)
形状 間口 8.88m × 奥行 26.04m 道路 西幹線43号 幅員16m
私道 - その他の制限 22条指定区域、外壁後退1m、絶対高さ制限10m
  • 関原町5丁目売土地
    株式会社 長岡総合開発
  • この物件を問い合わせる/無料
  • TEL: 0258-46-8777 0258-46-8777

物件詳細情報

所在階/階数 - 号室 -
販売価格 6,987,000円 方位 -
間取り -
専有面積 - バルコニー面積 -
その他面積 - 駐車場 -
管理費 - 修繕積立金 -
現況 更地
仲介手数料 330,000円
利用制限 -
設備 高台に立地、整形地、前道6m以上、更地、閑静な住宅街、建築条件なし、所有権、即引き渡し可、側溝、都市ガス(前面道路)、上水道(前面道路)、下水道(前面道路)、住宅向け
取引態様 専任
備考 公共ますは市で設置します。
水道及び都市ガスは買主負担にて整備をお願いします。
農地法5条届出が必要です。
取り扱い会社

株式会社 長岡総合開発

新潟県長岡市南七日町89-21

情報登録日 2025/12/04 次回更新予定日 2026/04/22
取引条件有効期限 2026/03/22
  • 関原町5丁目売土地
    株式会社 長岡総合開発
  • この物件を問い合わせる/無料
  • TEL: 0258-46-8777 0258-46-8777

この物件の地図・周辺情報・行政情報

この物件の周辺情報・行政情報を詳しく見る
【周辺情報】
物件の近くにあるコンビニや銀行・学校など、アイコン付のマップで詳しく表示できます!
【行政情報】
水道料や下水道料・ガス料金など、暮らしに関係のある情報を表示しています。

担当取扱い店舗情報

取扱い店舗画像
株式会社 長岡総合開発
TEL: 0258-46-8777
所在地: 新潟県長岡市南七日町89-21
交通: バス停「南七日町」徒歩3分
営業時間: 9:00~18:00/定休日:日曜・祭日
免許番号: 新潟県知事(10)2876号
所属団体名: 新潟県宅地建物取引業協会 長岡支部
取引態様: 専任
ホームページ: http://www.nagaoka-sk.co.jp