新潟県小千谷市平沢2丁目789番地2 投資物件・その他 49,800,000円の物件情報

国道117号線に面する好立地 賃貸として貸出し中の為、投資物件にもおすすめ♪ 敷地内17台駐車可能、融雪設備有り

物件名/所在地 詳細 価格
表面利回り
小千谷 平沢テナント
新潟県小千谷市平沢2丁目789番地2
  • 土地面積
    :409㎡ /123.72坪
  • 建ぺい率
    :60%
  • 容積率
    :200%
49,800,000
-
  • 小千谷 平沢テナント
    株式会社 エヌ・アール・ケー総合企画
  • この物件を問い合わせる/無料
  • TEL: 0258-41-5336 0258-41-5336

物件画像

外観
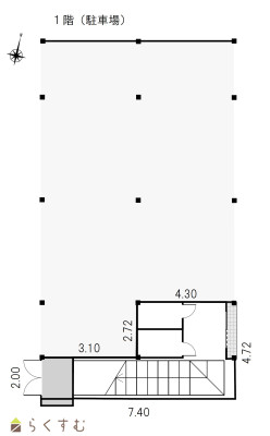
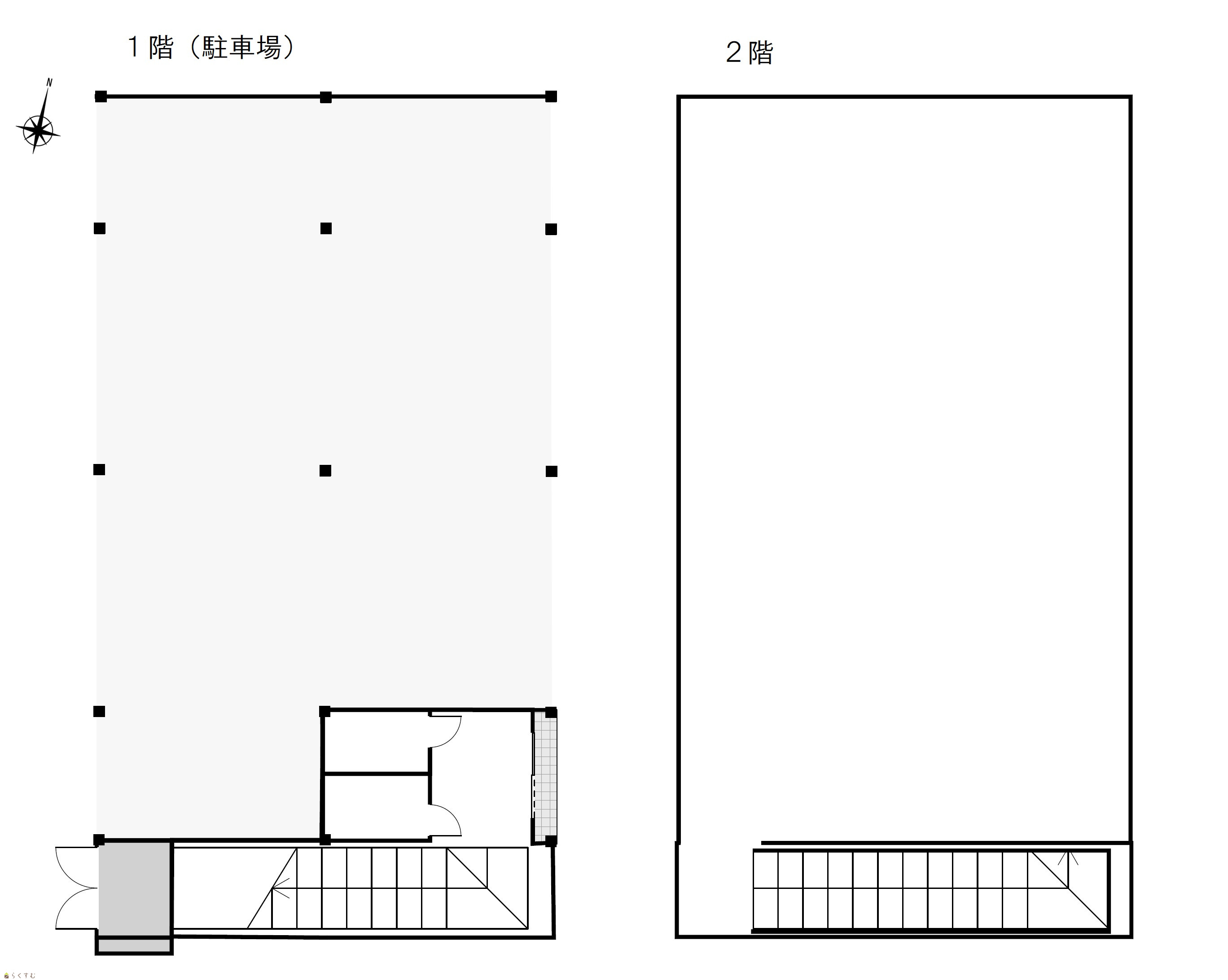
間取り
物件画像
※画像クリックで拡大表示
外観
物件画像
※画像クリックで拡大表示
間取図
詳細画像
物件画像
1階
物件画像
2階
物件画像
地図
物件画像
外観
物件画像
1階
物件画像
階段
物件画像
2階
物件画像
2階
物件画像
2階
物件画像
2階
物件画像
2階
物件画像
地図画像


物件概要

交通量の多い道路に面している為、商業利用に最適♪築浅の為、内観も綺麗です♪
物件コード 00024-200851
物件名 小千谷 平沢テナント
交通 駅:上越線 小千谷駅から徒歩39分、バス:平沢町から徒歩4分
物件所在地 新潟県小千谷市平沢2丁目789番地2
物件種別 投資物件・その他
物件区分 その他
構造 鉄骨 階建 地上2階建
建ぺい率/容積率 60%/200%
建物面積 1階 26.49㎡/ 2階 164.5㎡/ 計 190.99㎡ /57.77坪
土地面積 409㎡ /123.72坪
築年月 2011年10月(築14年)
入居(引き渡し)時期 相談
用途地域 準住居地域 地目 宅地
都市計画 非線引き都市計画区域 学校区 小千谷小学校(1,279m)・小千谷中学校(668m)
形状 - 道路 国道117号線 幅員18m
私道 - その他の制限 -
  • 小千谷 平沢テナント
    株式会社 エヌ・アール・ケー総合企画
  • この物件を問い合わせる/無料
  • TEL: 0258-41-5336 0258-41-5336

物件詳細情報

所在階/階数 - 号室 -
販売価格 49,800,000円 方位 -
表面利回り(満室想定時) - 満室想定年収 - (想定月収: - )
現行利回り - 現行年間年収 -
住戸数 -
間取り -
専有面積 - バルコニー面積 -
その他面積 - 駐車場 屋外6台、屋根付11台
管理費 - 修繕積立金 -
現況 賃貸中
仲介手数料 1,650,000円
利用制限 -
設備 角地、南側道路面す、駐車場(近隣含む)、事業向け
取引態様 一般
備考 ・現況有姿でのお引渡しと致します。
・公簿面積売買と致します。
・現在賃貸中
・内見をご希望の方は事前にご連絡下さい。
取り扱い会社

株式会社 エヌ・アール・ケー総合企画

新潟県長岡市与板町与板119番地

情報登録日 2024/04/19 次回更新予定日 2026/06/05
取引条件有効期限 2030/09/30
  • 小千谷 平沢テナント
    株式会社 エヌ・アール・ケー総合企画
  • この物件を問い合わせる/無料
  • TEL: 0258-41-5336 0258-41-5336

この物件の地図・周辺情報・行政情報

この物件の周辺情報・行政情報を詳しく見る
【周辺情報】
物件の近くにあるコンビニや銀行・学校など、アイコン付のマップで詳しく表示できます!
【行政情報】
水道料や下水道料・ガス料金など、暮らしに関係のある情報を表示しています。

担当取扱い店舗情報

取扱い店舗画像
株式会社 エヌ・アール・ケー総合企画
TEL: 0258-41-5336
所在地: 新潟県長岡市与板町与板119番地
交通:
営業時間: 8:30~17:30/定休日:土日・祝祭日 (電話対応しております)
免許番号: 新潟県知事(5)第4750号
所属団体名: 新潟県宅地建物取引業協会 長岡支部
取引態様: 一般
ホームページ: http://www.nrk-sogo.jp