新潟県長岡市北園町218番地.226番地 投資物件・その他 32,300,000円の物件情報

北園橋通り!第四北越銀行長岡北支店前!

物件名/所在地 詳細 価格
表面利回り
北園町倉庫事務所
新潟県長岡市北園町218番地.226番地
  • 土地面積
    :925.61㎡ /279.99坪
  • 建ぺい率
    :60%
  • 容積率
    :200%
32,300,000
-
  • 北園町倉庫事務所
    株式会社 新日本地所
  • この物件を問い合わせる/無料
  • TEL: 0258-33-8166 0258-33-8166

物件画像

外観
間取り
物件画像
※画像クリックで拡大表示
正面
物件画像
※画像クリックで拡大表示
建物図面
詳細画像
物件画像
正面事務所
物件画像
中央事務所
物件画像
倉庫(正面から奥)
物件画像
倉庫(正面から奥)②
物件画像
倉庫(奥から正面)
物件画像
裏側
物件画像
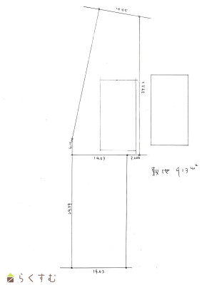
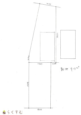
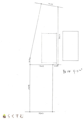
敷地概略図
物件画像
地図画像


物件概要

北園橋通り!第四北越銀行長岡北支店前!
物件コード 00012-200096
物件名 北園町倉庫事務所
交通 駅:信越線 北長岡駅から徒歩28分、バス:宝1丁目から徒歩2分
物件所在地 新潟県長岡市北園町218番地.226番地
物件種別 投資物件・その他
物件区分 その他
構造 木造 階建 地上2階建
建ぺい率/容積率 60%/200%
建物面積 1階 483.61㎡/ 2階 228.55㎡/ 計 712.16㎡ /215.42坪
土地面積 925.61㎡ /279.99坪
築年月 1975年8月(築50年)
入居(引き渡し)時期 随時入居(引き渡し)可
用途地域 準工業地域 地目 宅地  (現状:建付地)
都市計画 市街化区域 学校区 新町小学校(1,773m)・北中学校(649m)
形状 間口 14.03m × 奥行 64.61m 道路 東幹線69号線 幅員16m
私道 - その他の制限 -
  • 北園町倉庫事務所
    株式会社 新日本地所
  • この物件を問い合わせる/無料
  • TEL: 0258-33-8166 0258-33-8166

物件詳細情報

所在階/階数 - 号室 -
販売価格 32,300,000円 方位 -
表面利回り(満室想定時) - 満室想定年収 - (想定月収: - )
現行利回り - 現行年間年収 -
住戸数 -
間取り -
専有面積 - バルコニー面積 -
その他面積 - 駐車場 -
管理費 - 修繕積立金 -
現況 空家
仲介手数料 1,131,900円
利用制限 -
設備 公営水道、都市ガス、下水道、事業向け
取引態様 一般
備考 -
取り扱い会社

株式会社 新日本地所

新潟県長岡市殿町1-3-3

情報登録日 2024/08/30 次回更新予定日 2026/06/05
取引条件有効期限 2024/11/30
  • 北園町倉庫事務所
    株式会社 新日本地所
  • この物件を問い合わせる/無料
  • TEL: 0258-33-8166 0258-33-8166

この物件の地図・周辺情報・行政情報

この物件の周辺情報・行政情報を詳しく見る
【周辺情報】
物件の近くにあるコンビニや銀行・学校など、アイコン付のマップで詳しく表示できます!
【行政情報】
水道料や下水道料・ガス料金など、暮らしに関係のある情報を表示しています。

担当取扱い店舗情報

取扱い店舗画像
株式会社 新日本地所
TEL: 0258-33-8166
所在地: 新潟県長岡市殿町1-3-3
交通: 長岡駅より350m
営業時間: 9:00~17:00/定休日:土曜・日曜・祭日 但し3月は土曜営業
免許番号: 新潟県知事(14)第1068号
所属団体名: 新潟県宅地建物取引業協会 長岡支部
取引態様: 一般