南中学区 長生橋近くです
| 物件名/所在地 | 詳細 | 価格
							 表面利回り  | 
						
|---|---|---|
| 草生津3丁目 『倉庫・事務所』
														 長岡市草生津3丁目4-13  | 
							
								
  | 
							
															42,000,000円
																						 -  | 
						
| 物件コード | 00011-200339 | ||
|---|---|---|---|
| 物件名 | 草生津3丁目 『倉庫・事務所』 | ||
| 交通 | 駅:上越新幹線 長岡駅から徒歩20分、バス:長生橋東詰から徒歩2分 | ||
| 物件所在地 | 長岡市草生津3丁目4-13 | ||
| 物件種別 | 投資物件・その他 | ||
| 物件区分 | その他 | ||
| 構造 | 鉄筋コン | 階建 | 地上2階建 | 
| 建ぺい率/容積率 | 60%/200% | ||
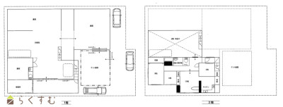
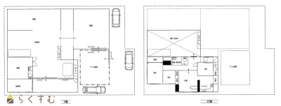
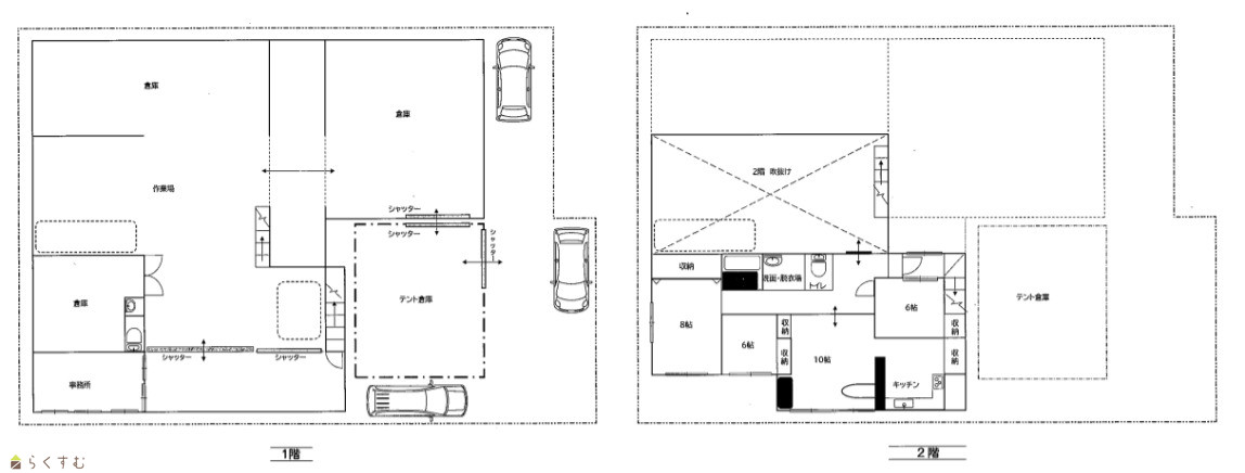
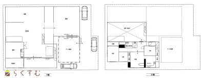
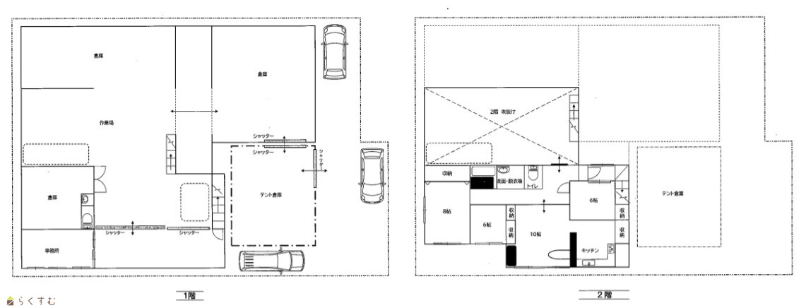
| 建物面積 | 1階 433.89㎡/ 2階 181.27㎡/ 計 615.16㎡ /186.08坪 | ||
| 土地面積 | 615.16㎡ /186.08坪 | ||
| 築年月 | 1969年7月(築56年) | ||
| 入居(引き渡し)時期 | 相談 | ||
| 用途地域 | 第1種住居地域 | 地目 | 宅地 (現状:宅地) | 
| 都市計画 | 市街化区域 | 学校区 | 千手小学校(416m)・南中学校(799m) | 
| 形状 | - | 道路 | - | 
| 私道 | - | その他の制限 | - | 
| 所在階/階数 | - | 号室 | - | 
|---|---|---|---|
| 販売価格 | 42,000,000円 | 方位 | - | 
| 表面利回り(満室想定時) | - | 満室想定年収 | - (想定月収: - ) | 
| 現行利回り | - | 現行年間年収 | - | 
| 住戸数 | - | ||
| 間取り | - | ||
| 専有面積 | - | バルコニー面積 | - | 
| その他面積 | - | 駐車場 | - | 
| 管理費 | - | 修繕積立金 | - | 
| 現況 | 空家 | ||
| 仲介手数料 | 1,452,000円 | ||
| 利用制限 | - | ||
| 設備 | - | ||
| 取引態様 | 一般 | ||
| 備考 | 倉庫・事務所・住居もあります | ||
| 取り扱い会社 | 
								 ㈱スタッフサイトウ不動産部 新潟県長岡市蔵王2丁目4番17号  | 
						||
| 情報登録日 | 2025/10/30 | 次回更新予定日 | 2025/11/18 | 
| 取引条件有効期限 | 2026/03/31 | ||
| 
																		セブン-イレブン 長岡西千手店(コンビニ)まで210m  | 
																
																		長岡柳原郵便局(郵便局)まで500m  | 
															
※カメラのアイコンがある場合は、マウスをポイントするとその施設の画像がご覧いただけます。
| TEL: | 0258-24-0623 | |
|---|---|---|
| 所在地: | 新潟県長岡市蔵王2丁目4番17号 | |
| 交通: | JR北長岡駅 | |
| 営業時間: | 8:30~17:30/定休日:第2・4土曜・日曜・祭日 | |
| 免許番号: | 新潟県知事(2)第5364号 | |
| 所属団体名: | 新潟県宅地建物取引業協会 長岡支部 | |
| 取引態様: | 一般 | |
| ホームページ: | http://hokuetsu-fudousan.com | |