長岡市宝5丁目5番地9 中古一戸建て 3LDK 23,000,000円の物件情報

敷地は広めな74.7坪! 駐車スペース4台(3台分のカーポート設置済み)

物件名/所在地 詳細 価格
宝5丁目中古住宅「商談中」
長岡市宝5丁目5番地9
  • 土地面積
    :246.96㎡ /74.7坪
  • 建物面積
    :133.12㎡ /40.26坪
  • 間取り
    :3LDK
  • 築年月
    :2009年9月
23,000,000
  • 宝5丁目中古住宅「商談中」
    株式会社 島岡不動産企画
  • この物件を問い合わせる/無料
  • TEL: 0258-39-6030 0258-39-6030

物件画像

外観
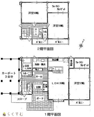
間取り
物件画像
※画像クリックで拡大表示
建物全景とカーポート(3台用)
物件画像
※画像クリックで拡大表示
間取り
詳細画像
物件画像
測量図(5-9と5-28を合筆)
物件画像
玄関
物件画像
広々とした玄関ホール
物件画像
玄関・ホール
物件画像
LDK16帖(キッチン側)
物件画像
LDK16帖
物件画像
1階洋室12帖
物件画像
1階洋室12帖とクローゼット
物件画像
2階ホール・洗面台(電気温水器付洗面台)
物件画像
2階洋室10帖(西)
物件画像
2階洋室10帖(東)
物件画像
TV付浴室(1.25坪タイプ)
物件画像
システムキッチンと食器棚
物件画像
対面式システムキッチン(2550mmタイプ)
物件画像
1階洗面脱衣室(お洒落なカンタータイプ)
物件画像
1階トイレ(温水洗浄便座、専用手洗器)
物件画像
1階風除室(雪や雨の多い長岡では欠かせない物干場)
物件画像
2階トイレ
物件画像
カーポート~玄関スロープ
物件画像
印刷用地図


物件概要

広々とした玄関ホールで、大切なお客様をお出迎え!              お部屋は10帖以上のゆったりとした間取りで収納も充実!
物件コード 00008-200269
物件名 宝5丁目中古住宅「商談中」
交通 バス:宝4丁目から徒歩4分
物件所在地 長岡市宝5丁目5番地9
物件種別 中古一戸建て
構造 木造 階建 地上2階建
建ぺい率/容積率 60%/200%
建物面積 1階 81.1㎡/ 2階 52.02㎡/ 計 133.12㎡ /40.26坪
土地面積 246.96㎡ /74.7坪
築年月 2009年9月(築16年)
入居(引き渡し)時期 随時入居(引き渡し)可
用途地域 第1種中高層住居専用地域 地目 宅地  (現状:建付地)
都市計画 市街化区域 学校区 黒条小学校(1,067m)・堤岡中学校(1,125m)
形状 間口 12.35m × 奥行 20.01m 道路 西側長岡市道8m(消雪道路)
私道 - その他の制限 -
  • 宝5丁目中古住宅「商談中」
    株式会社 島岡不動産企画
  • この物件を問い合わせる/無料
  • TEL: 0258-39-6030 0258-39-6030

物件詳細情報

所在階/階数 - 号室 -
販売価格 23,000,000円 方位 西
間取り 3LDK (洋室:12、10、10)
LDK16
専有面積 - バルコニー面積 -
その他面積 - 駐車場 -
管理費 - 修繕積立金 -
現況 空家
仲介手数料 825,000円
利用制限 -
設備 日当り良好、閑静な住宅街、新築時図面あり、建物確認・完了検査済証あり、LDK15帖以上、全室フローリング、駐車3台以上可能、南向き、TVインターホン、複層ガラス、システムキッチン、IHクッキングヒーター、3口コンロ、追いだき機能付き、バス1坪以上、温水洗浄便座、トイレ2か所以上、シャワー付き洗面台、床暖房、24時間換気システム、都市ガス、上水道、下水道、全居室収納あり、シューズインクローゼット
取引態様 一般
備考 ■床暖房と温水配管で長岡の冬も安心!    
  床暖房(1階リビング、洋室、脱衣、トイレ)          
  各部屋に温水配管済み(温水ルームヒーターをご準備下さい)    
■テレビ付の広めなお風呂で、一日の疲れをリフレッシュ!
取り扱い会社

株式会社 島岡不動産企画

新潟県長岡市西新町1-8-11

情報登録日 2026/03/30 次回更新予定日 2026/04/21
取引条件有効期限 2026/03/31
  • 宝5丁目中古住宅「商談中」
    株式会社 島岡不動産企画
  • この物件を問い合わせる/無料
  • TEL: 0258-39-6030 0258-39-6030

この物件の地図・周辺情報・行政情報

この物件の周辺情報・行政情報を詳しく見る
【周辺情報】
物件の近くにあるコンビニや銀行・学校など、アイコン付のマップで詳しく表示できます!
【行政情報】
水道料や下水道料・ガス料金など、暮らしに関係のある情報を表示しています。
デイリーヤマザキ 長岡宝3丁目店(コンビニ)まで460m
黒条内科・消化器クリニック(病院)まで850m
長岡信用金庫 宝支店(銀行)まで670m
長岡宝郵便局(郵便局)まで570m

※カメラのアイコンがある場合は、マウスをポイントするとその施設の画像がご覧いただけます。


担当取扱い店舗情報

取扱い店舗画像
株式会社 島岡不動産企画
TEL: 0258-39-6030
所在地: 新潟県長岡市西新町1-8-11
交通: 「新町小学校前」バス停徒歩1分
営業時間: 9:00~18:30/定休日:日曜・祭日
免許番号: 新潟県知事(4)4829号
所属団体名: 公益社団法人 新潟県宅地建物取引業協会
取引態様: 一般
ホームページ: http://www.shimaoka.co.jp