新潟県長岡市宮原2丁目366番19 新築一戸建て 3LDK 29,800,000円の物件情報

商業施設や学校など徒歩圏内♪◆ガス衣類乾燥機「乾太くん」設置◆造作洗面台◆収納スペース充実

物件名/所在地 詳細 価格
長岡市宮原2丁目 建売住宅
新潟県長岡市宮原2丁目366番19
  • 土地面積
    :165.8㎡ /50.15坪
  • 建物面積
    :91.71㎡ /27.74坪
  • 間取り
    :3LDK
  • 築年月
    :2026年7月
29,800,000
  • 長岡市宮原2丁目 建売住宅
    有限会社 一代工務店
  • この物件を問い合わせる/無料
  • TEL: 0258-34-2221 0258-34-2221

物件画像

外観
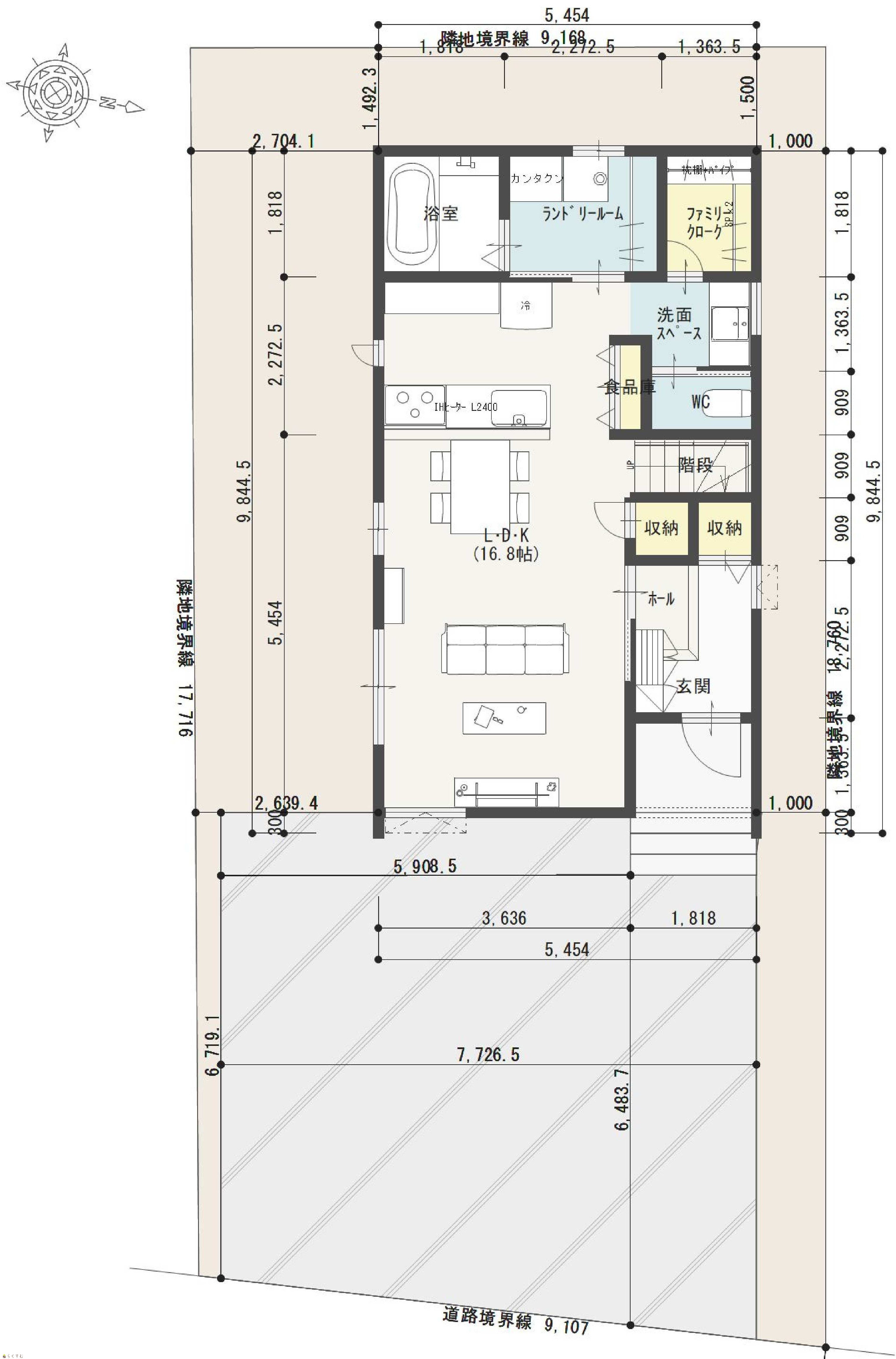
間取り
物件画像
※画像クリックで拡大表示
※画像はイメージとなり実物と異なる場合があります。
物件画像
※画像クリックで拡大表示
地型付間取り図
詳細画像
物件画像
1階
物件画像
2階
物件画像
前面道路は消雪パイプがありますので、冬も安心です。
物件画像
BELS/建築物省エネ基準適合認定書あり
物件画像
印刷用地図


物件概要

<令和8年7月完成予定>商業施設、病院、学校、保育園が近く、利便性のとれた好立地 ◆前面道路には消雪パイプ完備 ◆ガス衣類乾燥機「乾太くん」設置。冬場や花粉の季節でも洗濯ストレスを軽減 ◆1階トイレには、すっきりとしたデザインのタンクレストイレを採用 ◆洗面スペースには、デザイン性の高いアイカの造作洗面台 ◆ウォークインクローゼットやファミリークローク、食品庫など収納スペースが充実
物件コード 00007-200775
物件名 長岡市宮原2丁目 建売住宅
交通 駅:上越新幹線 長岡駅から徒歩24分、バス:幸町から徒歩3分
物件所在地 新潟県長岡市宮原2丁目366番19
物件種別 新築一戸建て
構造 木造 階建 地上2階建
建ぺい率/容積率 60%/200%
建物面積 計 91.71㎡ /27.74坪
土地面積 165.8㎡ /50.15坪
築年月 2026年7月完成予定
入居(引き渡し)時期 相談
用途地域 第1種住居地域 地目 宅地
都市計画 市街化区域 学校区 千手小学校(664m)・南中学校(682m)
形状 - 道路 -
私道 - その他の制限 -
  • 長岡市宮原2丁目 建売住宅
    有限会社 一代工務店
  • この物件を問い合わせる/無料
  • TEL: 0258-34-2221 0258-34-2221

物件詳細情報

所在階/階数 - 号室 -
販売価格 29,800,000円 方位
間取り 3LDK (洋室:7、6、6)
LDK16.8
建築確認番号:NK第25長00770号
専有面積 - バルコニー面積 -
その他面積 - 駐車場 -
管理費 - 修繕積立金 -
現況 指定なし
仲介手数料 なし
利用制限 -
設備 整形地、日当り良好、閑静な住宅街、スーパー近く、BELS/省エネ基準適合認定建物、フラット35S適合、LDK15畳以上、全室フローリング、駐車場2台以上、駐車場3台以上、南向き、TVインターホン、複層ガラス、ディンプルキー、システムキッチン、IHクッキングヒーター、3口コンロ、追いだき機能付き、バス1坪以上、温水洗浄便座、シャワー付き洗面台、エアコン、24時間換気システム、省エネ給湯、高気密高断熱住宅、都市ガス、上水道、下水道、電気、ウォークインクローゼット、全居室収納あり、床下収納、シューズBOX、照明器具付き
取引態様 売主
備考 ・第三種高度地区
・22条指定区域

※物件掲載内容と現況に相違がある場合は現況を優先と致します。
詳細はお気軽にお問い合わせください。
担当:高橋
携帯:080-1223-9349
取り扱い会社

有限会社 一代工務店

新潟県長岡市信濃2-5-36

情報登録日 2026/05/18 次回更新予定日 2026/06/05
取引条件有効期限 2026/07/01
  • 長岡市宮原2丁目 建売住宅
    有限会社 一代工務店
  • この物件を問い合わせる/無料
  • TEL: 0258-34-2221 0258-34-2221

この物件の地図・周辺情報・行政情報

この物件の周辺情報・行政情報を詳しく見る
【周辺情報】
物件の近くにあるコンビニや銀行・学校など、アイコン付のマップで詳しく表示できます!
【行政情報】
水道料や下水道料・ガス料金など、暮らしに関係のある情報を表示しています。
セブン-イレブン 長岡市立劇場前店(コンビニ)まで260m
ローソン 長岡幸町店(コンビニ)まで500m
原信 シビックコア店(スーパー)まで510m
クスリのアオキ 千歳店(ドラッグストア)まで440m
野村こどもクリニック(病院)まで640m
第四北越銀行 長岡南支店(銀行)まで230m
長岡宮原郵便局(郵便局)まで200m

※カメラのアイコンがある場合は、マウスをポイントするとその施設の画像がご覧いただけます。


担当取扱い店舗情報

取扱い店舗画像
有限会社 一代工務店
TEL: 0258-34-2221
所在地: 新潟県長岡市信濃2-5-36
交通: 長岡駅
営業時間: 9:00~18:00/定休日:
免許番号: 新潟県知事(12)2196号
所属団体名: 新潟県宅地建物取引業協会 長岡支部
取引態様: 売主
ホームページ: http://www.ichidai-k.co.jp/