新潟県長岡市新保5丁目404番8、423番6 新築一戸建て 3LDK 28,500,000円の物件情報

1階・2階にWIC+回遊動線◆LDKは3面採光◆角地◆スーパー等近く便利♪◆ガス衣類乾燥機「乾太くん」付き

物件名/所在地 詳細 価格
長岡市新保5丁目 建売住宅 1号棟
新潟県長岡市新保5丁目404番8、423番6
  • 土地面積
    :160.5㎡ /48.55坪
  • 建物面積
    :89.23㎡ /26.99坪
  • 間取り
    :3LDK
  • 築年月
    :2026年5月
28,500,000
  • 長岡市新保5丁目 建売住宅 1号棟
    有限会社 一代工務店
  • この物件を問い合わせる/無料
  • TEL: 0258-34-2221 0258-34-2221

物件画像

外観
間取り
物件画像
※画像クリックで拡大表示
外観
物件画像
※画像クリックで拡大表示
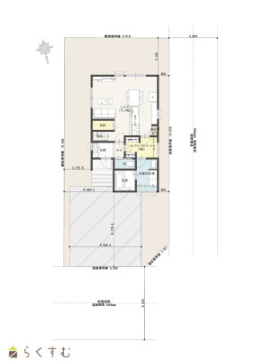
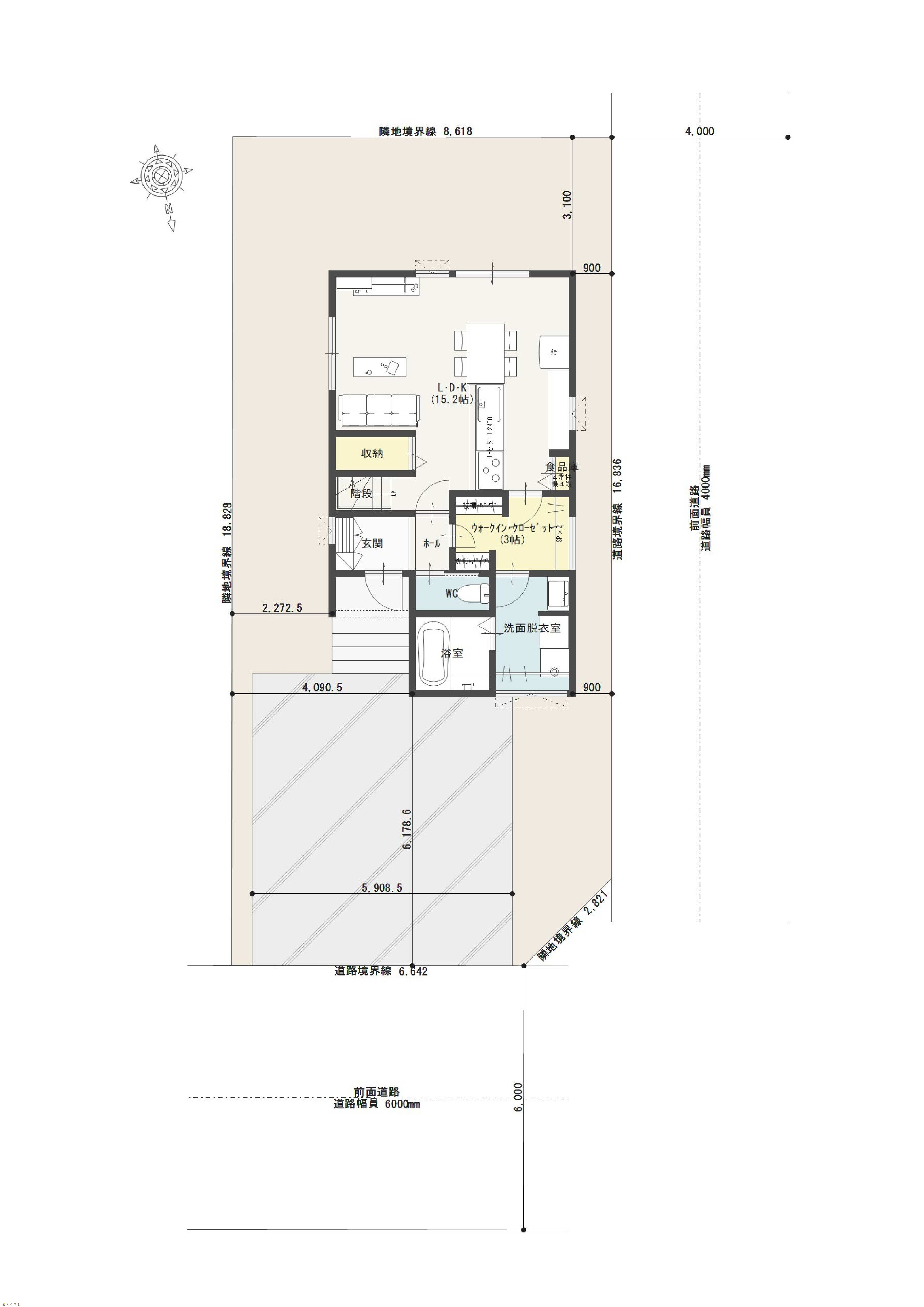
地型付間取り図
詳細画像
物件画像
1階
物件画像
2階
物件画像
ガス衣類乾燥機「乾太くん」デラックスタイプ付き
物件画像
前面道路は消雪パイプがありますので、冬も安心です。
物件画像
BELS/建築物省エネ基準適合認定書あり
物件画像
印刷用地図


物件概要

<令和8年5月完成予定>◆スーパー・コンビニ・ドラッグストア・駅・病院が身近にそろう、暮らしやすい立地 ◆北西角地、2方道路ともに消雪パイプ設置 ◆LDKは3面採光の明るく開放的な空間 ◆1階・2階にウォークインクローゼットを配置。使う場所にしまえる収納計画で、スムーズな動線 ◆玄関→WIC→キッチン→リビングダイニングへとつながる、収納を経由した回遊動線◆ガス衣類乾燥機「乾太くん」付き
物件コード 00007-200766
物件名 長岡市新保5丁目 建売住宅 1号棟
交通 駅:信越線 北長岡駅から徒歩10分、バス:新保保育園前から徒歩5分
物件所在地 新潟県長岡市新保5丁目404番8、423番6
物件種別 新築一戸建て
構造 木造 階建 地上2階建
建ぺい率/容積率 70%/200%
建物面積 計 89.23㎡ /26.99坪
土地面積 160.5㎡ /48.55坪
築年月 2026年5月完成予定
入居(引き渡し)時期 相談
用途地域 第1種中高層住居専用地域 地目 宅地
都市計画 市街化区域 学校区 富曾亀小学校(866m)・東北中学校(1,256m)
形状 - 道路 -
私道 北側:位置指定道路 6.0m、西側:位置指定道路 4.0m その他の制限 -
  • 長岡市新保5丁目 建売住宅 1号棟
    有限会社 一代工務店
  • この物件を問い合わせる/無料
  • TEL: 0258-34-2221 0258-34-2221

物件詳細情報

所在階/階数 - 号室 -
販売価格 28,500,000円 方位
間取り 3LDK (洋室:7、6、6)
LDK15.2
建築確認番号:NK第25長00780号
専有面積 - バルコニー面積 -
その他面積 - 駐車場 -
管理費 - 修繕積立金 -
現況 指定なし
仲介手数料 なし
利用制限 -
設備 角地、整形地、前面道路6m以上、日当り良好、閑静な住宅街、スーパー近く、BELS/省エネ基準適合認定建物、フラット35S適合、LDK15畳以上、全室フローリング、駐車場2台以上、南向き、庭あり、TVインターホン、複層ガラス、ディンプルキー、システムキッチン、IHクッキングヒーター、浄水器、3口コンロ、追いだき機能付き、バス1坪以上、温水洗浄便座、シャワー付き洗面台、エアコン、24時間換気システム、省エネ給湯、高気密高断熱住宅、都市ガス、上水道、下水道、電気、ウォークインクローゼット、全居室収納あり、床下収納、シューズBOX、照明器具付き
取引態様 売主
備考 ・第二種高度地区
・22条指定区域

※物件掲載内容と現況に相違がある場合は現況を優先と致します。
詳細はお気軽にお問い合わせください。
担当:高橋
携帯:080-1223-9349
取り扱い会社

有限会社 一代工務店

新潟県長岡市信濃2-5-36

情報登録日 2026/05/18 次回更新予定日 2026/06/05
取引条件有効期限 2026/07/01
  • 長岡市新保5丁目 建売住宅 1号棟
    有限会社 一代工務店
  • この物件を問い合わせる/無料
  • TEL: 0258-34-2221 0258-34-2221

この物件の地図・周辺情報・行政情報

この物件の周辺情報・行政情報を詳しく見る
【周辺情報】
物件の近くにあるコンビニや銀行・学校など、アイコン付のマップで詳しく表示できます!
【行政情報】
水道料や下水道料・ガス料金など、暮らしに関係のある情報を表示しています。

担当取扱い店舗情報

取扱い店舗画像
有限会社 一代工務店
TEL: 0258-34-2221
所在地: 新潟県長岡市信濃2-5-36
交通: 長岡駅
営業時間: 9:00~18:00/定休日:
免許番号: 新潟県知事(12)2196号
所属団体名: 新潟県宅地建物取引業協会 長岡支部
取引態様: 売主
ホームページ: http://www.ichidai-k.co.jp/