物件掲載企業数:301|賃貸物件:3,261件|売買物件:3,251件|今週の登録物件:296
閲覧中のブラウザ(インターネットエクスプローラー)は非推奨ブラウザです。
物件が正しく表示されなかったり、正しく検索されない場合があります。最新のブラウザ(Google Chrome・Edgeなど)にてご利用お願いいたします。
  

新潟県妙高市桶海1017-2妙高パインバレーロジュマン 中古マンション 1DK 12,800,000円の物件情報

アパホテル&リゾート上越妙高の天然温泉が利用できます。

物件名/所在地 詳細 価格
妙高パインバレーロジュマン
新潟県妙高市桶海1017-2妙高パインバレーロジュマン
  • 専有面積
    :43.9㎡ /13.27坪
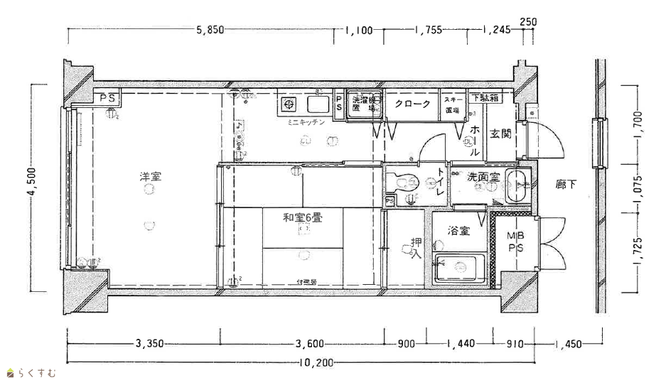
  • 間取り
    :1DK
  • 築年月
    :1991年8月
12,800,000
  • 妙高パインバレーロジュマン
    いえみらいサポート株式会社
  • この物件を問い合わせる/無料
  • TEL: 025-520-7726

物件画像

外観 間取り
物件画像
※画像クリックで拡大表示
外観
物件画像
※画像クリックで拡大表示
間取り
詳細画像


物件概要

リゾート内施設(ホテル、ゴルフその他アクティビティなど)が優待料金で利用できます。
物件コード 00403-200001
物件名 妙高パインバレーロジュマン
交通 駅:妙高はねうまライン 関山駅から徒歩77分、バス:坂口新田から徒歩74分
物件所在地 新潟県妙高市桶海1017-2妙高パインバレーロジュマン
物件種別 中古マンション
構造 鉄骨鉄筋コン 階建 地上14階地下1階建
建ぺい率/容積率 70%/200%
建物面積 計 10,306.56㎡ /3,117.73坪
土地面積 -
築年月 1991年8月(築34年)
入居(引き渡し)時期 相談
用途地域 無指定 地目 宅地
都市計画 非線引き都市計画区域 学校区 妙高小学校(4,615m)・妙高中学校(4,238m)
形状 - 道路 妙高市道
私道 - その他の制限 -
  • 妙高パインバレーロジュマン
    いえみらいサポート株式会社
  • この物件を問い合わせる/無料
  • TEL: 025-520-7726

物件詳細情報

所在階/階数 11階/14階 号室 -
販売価格 12,800,000円 方位 -
間取り 1DK
表示面積は、壁芯面積です。登記面積はこれよりも少なくなります。
専有面積 43.9㎡ /13.27坪 バルコニー面積 -
その他面積 - 駐車場 無料(先着順)
管理費 11,000円 修繕積立金 2,200円
現況 居住中
仲介手数料 488,400円
組合費他 2,311円
調整費 5,940円
給湯利用料別途
利用制限 ペット:不可、楽器:不可
設備 10階建て以上、洗濯機置き場、エレベーター、和室あり、駐車場空きあり、管理人常駐(日中)、IHクッキングヒーター、温水洗浄便座、シャワー付き洗面台、LPG、公営水道、浄化槽
取引態様 一般
備考 リビングはフローリングにリフォーム済みです。部屋の窓からは妙高山を眺めることができ、周辺には赤倉スキー場や苗名の滝があり、上越海水浴場や長野の善光寺も車で1時間程です。ホテルでは、焚火や花火イベントも開催していて、部屋から花火を見ることができます!ご家族やお友達とのシーズン使いにも!
取り扱い会社

いえみらいサポート株式会社

新潟県上越市大和2-9-15

情報登録日 2026/04/01 次回更新予定日 2026/06/05
取引条件有効期限 2026/06/30
  • 妙高パインバレーロジュマン
    いえみらいサポート株式会社
  • この物件を問い合わせる/無料
  • TEL: 025-520-7726

この物件の地図・周辺情報・行政情報

この物件の周辺情報・行政情報を詳しく見る
【周辺情報】
物件の近くにあるコンビニや銀行・学校など、アイコン付のマップで詳しく表示できます!
【行政情報】
水道料や下水道料・ガス料金など、暮らしに関係のある情報を表示しています。

担当取扱い店舗情報

取扱い店舗画像
いえみらいサポート株式会社
TEL: 025-520-7726
所在地: 新潟県上越市大和2-9-15
交通: 上越妙高駅徒歩10分
営業時間: 9時~17時/定休日:土日祝日
免許番号: 新潟県知事(1)第5847号 この会社の情報を詳しく見る
所属団体名: 公社 新潟県宅地建物取引協会 上越支部
取引態様: 一般