物件掲載企業数:301|賃貸物件:3,262件|売買物件:3,252件|今週の登録物件:248
閲覧中のブラウザ(インターネットエクスプローラー)は非推奨ブラウザです。
物件が正しく表示されなかったり、正しく検索されない場合があります。最新のブラウザ(Google Chrome・Edgeなど)にてご利用お願いいたします。
  

新潟県小千谷市土川1丁目2444番5 売土地・分譲地 11,600,000円の物件情報

物件名/所在地 詳細 価格
小千谷市土川1丁目売地
新潟県小千谷市土川1丁目2444番5
  • 土地面積
    :353.65㎡ /106.97坪
  • 坪単価
    :108,441円/坪
  • 建ぺい率
    :50%
  • 容積率
    :150%
11,600,000
  • 小千谷市土川1丁目売地
    有限会社トーザイ
  • この物件を問い合わせる/無料
  • TEL: 0258-83-3160

物件画像

外観 間取り
物件画像
※画像クリックで拡大表示
外観
物件画像
※画像クリックで拡大表示
間取り
詳細画像


物件概要

物件コード 00391-200004
物件名 小千谷市土川1丁目売地
交通 駅:上越線 小千谷駅から徒歩40分
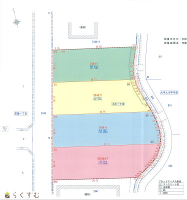
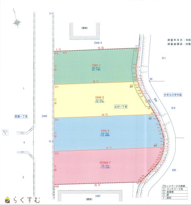
物件所在地 新潟県小千谷市土川1丁目2444番5
物件種別 売土地・分譲地
物件区分 売土地
構造 - 階建 -
建ぺい率/容積率 50%/150%
建物面積 -
土地面積 353.65㎡ /106.97坪
築年月 -
入居(引き渡し)時期 相談
用途地域 第1種中高層住居専用地域 地目 宅地
都市計画 非線引き都市計画区域 学校区 小千谷小学校(476m)・小千谷中学校(434m)
形状 間口 11.26m 道路 公道 幅員:7.0m
私道 - その他の制限 -
  • 小千谷市土川1丁目売地
    有限会社トーザイ
  • この物件を問い合わせる/無料
  • TEL: 0258-83-3160

物件詳細情報

所在階/階数 - 号室 -
販売価格 11,600,000円 方位 -
間取り -
専有面積 - バルコニー面積 -
その他面積 - 駐車場 -
管理費 - 修繕積立金 -
現況 更地
仲介手数料 なし
利用制限 -
設備 前道6m以上、更地、学校近く、スーパー近く、閑静な住宅街、建築条件なし、所有権、即引き渡し可、側溝、都市ガス(前面道路)、上水道(前面道路)、下水道(前面道路)、都市ガス(宅地内)、上水道(宅地内)、下水道(宅地内)、住宅向け
取引態様 売主
備考 -
取り扱い会社

有限会社トーザイ

新潟県小千谷市西吉谷1038-1

情報登録日 2025/12/22 次回更新予定日 2026/06/06
取引条件有効期限 2026/03/22
  • 小千谷市土川1丁目売地
    有限会社トーザイ
  • この物件を問い合わせる/無料
  • TEL: 0258-83-3160

この物件の地図・周辺情報・行政情報

この物件の周辺情報・行政情報を詳しく見る
【周辺情報】
物件の近くにあるコンビニや銀行・学校など、アイコン付のマップで詳しく表示できます!
【行政情報】
水道料や下水道料・ガス料金など、暮らしに関係のある情報を表示しています。

担当取扱い店舗情報

取扱い店舗画像
有限会社トーザイ
TEL: 0258-83-3160
所在地: 新潟県小千谷市西吉谷1038-1
交通:
営業時間: 8:30~17:00/定休日:日曜・祝日
免許番号: 新潟県知事(2)第5383号 この会社の情報を詳しく見る
所属団体名: 公社 新潟県宅地建物取引協会 魚沼支部
取引態様: 売主
ホームページ: https://to-zai.info/