物件掲載企業数:299|賃貸物件:3,025件|売買物件:3,229件|今週の登録物件:312
閲覧中のブラウザ(インターネットエクスプローラー)は非推奨ブラウザです。
物件が正しく表示されなかったり、正しく検索されない場合があります。最新のブラウザ(Google Chrome・Edgeなど)にてご利用お願いいたします。
  

新潟県新潟市西区西小針台3丁目2-3 中古一戸建て 6DK 11,000,000円の物件情報

落ち着きのある閑静な住宅街の和風邸宅!まだまだ綺麗ですが、お好みのリフォームやリノベーションもご相談可能です!

物件名/所在地 詳細 価格
新潟市西区西小針台3丁目 中古戸建
新潟県新潟市西区西小針台3丁目2-3
  • 土地面積
    :177.11㎡ /53.57坪
  • 建物面積
    :114.26㎡ /34.56坪
  • 間取り
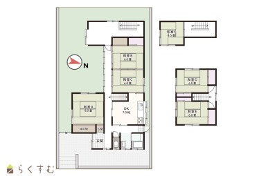
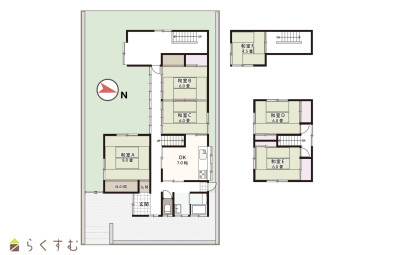
    :6DK
  • 築年月
    :1972年9月
11,000,000
  • 新潟市西区西小針台3丁目 中古戸建
    長岡不動産販売株式会社
  • この物件を問い合わせる/無料
  • TEL: 0258-86-4690

物件画像

外観 間取り
物件画像
※画像クリックで拡大表示
外観
物件画像
※画像クリックで拡大表示
間取り
詳細画像


物件概要

物件コード 00378-200075
物件名 新潟市西区西小針台3丁目 中古戸建
交通 駅:越後線 寺尾駅から徒歩16分、バス:松海が丘から徒歩6分
物件所在地 新潟県新潟市西区西小針台3丁目2-3
物件種別 中古一戸建て
構造 木造 階建 地上2階建
建ぺい率/容積率 50%/100%
建物面積 1階 85.28㎡/ 2階 29.98㎡/ 計 114.26㎡ /34.56坪
土地面積 177.11㎡ /53.57坪
築年月 1972年9月(築53年)
入居(引き渡し)時期 随時入居(引き渡し)可
用途地域 第1種低層住居専用地域 地目 宅地
都市計画 市街化区域 学校区 真砂小学校(617m)・五十嵐中学校(1,251m)
形状 間口 10.9m × 奥行 16.1m 道路 東側 約4.0m 私道 (位置指定道路)
私道 - その他の制限 -
  • 新潟市西区西小針台3丁目 中古戸建
    長岡不動産販売株式会社
  • この物件を問い合わせる/無料
  • TEL: 0258-86-4690

物件詳細情報

所在階/階数 - 号室 -
販売価格 11,000,000円 方位 -
間取り 6DK (和室:8畳、6畳、6畳、6畳、6畳、4.5畳)
DK7
専有面積 - バルコニー面積 -
その他面積 - 駐車場 -
管理費 - 修繕積立金 -
現況 空家
仲介手数料 405,600円
利用制限 -
設備 閑静な住宅街、スーパー近く、都市ガス、上水道、下水道、即引き渡し可能
取引態様 専任
備考 ・道路位置指定:S43年9月26日 第131号
・現況有姿でのお引渡しとなります。
・建物には一部未登記部分があります。
・売主の契約不適合責任免責
取り扱い会社

長岡不動産販売株式会社

新潟県長岡市神田町3-4-5

情報登録日 2026/02/17 次回更新予定日 2026/04/21
取引条件有効期限 2026/02/12
  • 新潟市西区西小針台3丁目 中古戸建
    長岡不動産販売株式会社
  • この物件を問い合わせる/無料
  • TEL: 0258-86-4690

この物件の地図・周辺情報・行政情報

この物件の周辺情報・行政情報を詳しく見る
【周辺情報】
物件の近くにあるコンビニや銀行・学校など、アイコン付のマップで詳しく表示できます!
【行政情報】
水道料や下水道料・ガス料金など、暮らしに関係のある情報を表示しています。
ローソン 新潟寺尾台店(コンビニ)まで500m
セブン-イレブン 新潟寺尾台2丁目店(コンビニ)まで680m
チャレンジャー 寺尾店(スーパー)まで460m
業務スーパー 寺尾店(スーパー)まで530m
クスリのアオキ 寺尾台店(ドラッグストア)まで760m
新潟西郵便局(郵便局)まで990m

※カメラのアイコンがある場合は、マウスをポイントするとその施設の画像がご覧いただけます。


担当取扱い店舗情報

取扱い店舗画像
長岡不動産販売株式会社
TEL: 0258-86-4690
所在地: 新潟県長岡市神田町3-4-5
交通: 長岡駅
営業時間: 10:00~18:00/定休日:水曜日 ※ご都合に合わせて対応可能です
免許番号: 新潟県知事(1)第5764号 この会社の情報を詳しく見る
所属団体名: 公社 全日本不動産協会 新潟県本部
取引態様: 専任
ホームページ: https://nagaoka-f.com/