物件掲載企業数:299|賃貸物件:3,012件|売買物件:3,232件|今週の登録物件:337
閲覧中のブラウザ(インターネットエクスプローラー)は非推奨ブラウザです。
物件が正しく表示されなかったり、正しく検索されない場合があります。最新のブラウザ(Google Chrome・Edgeなど)にてご利用お願いいたします。
  

新潟県長岡市緑町1丁目86-26 中古一戸建て 6DK 26,980,000円の物件情報

6SDK+駐車3台可、1台分のインナーガレージ付きで大切なお車も安心!各種商業施設至近で生活利便性良好!《月々6万円台~》

物件名/所在地 詳細 価格
長岡市緑町1丁目 中古戸建
新潟県長岡市緑町1丁目86-26
  • 土地面積
    :270.12㎡ /81.71坪
  • 建物面積
    :297.48㎡ /89.98坪
  • 間取り
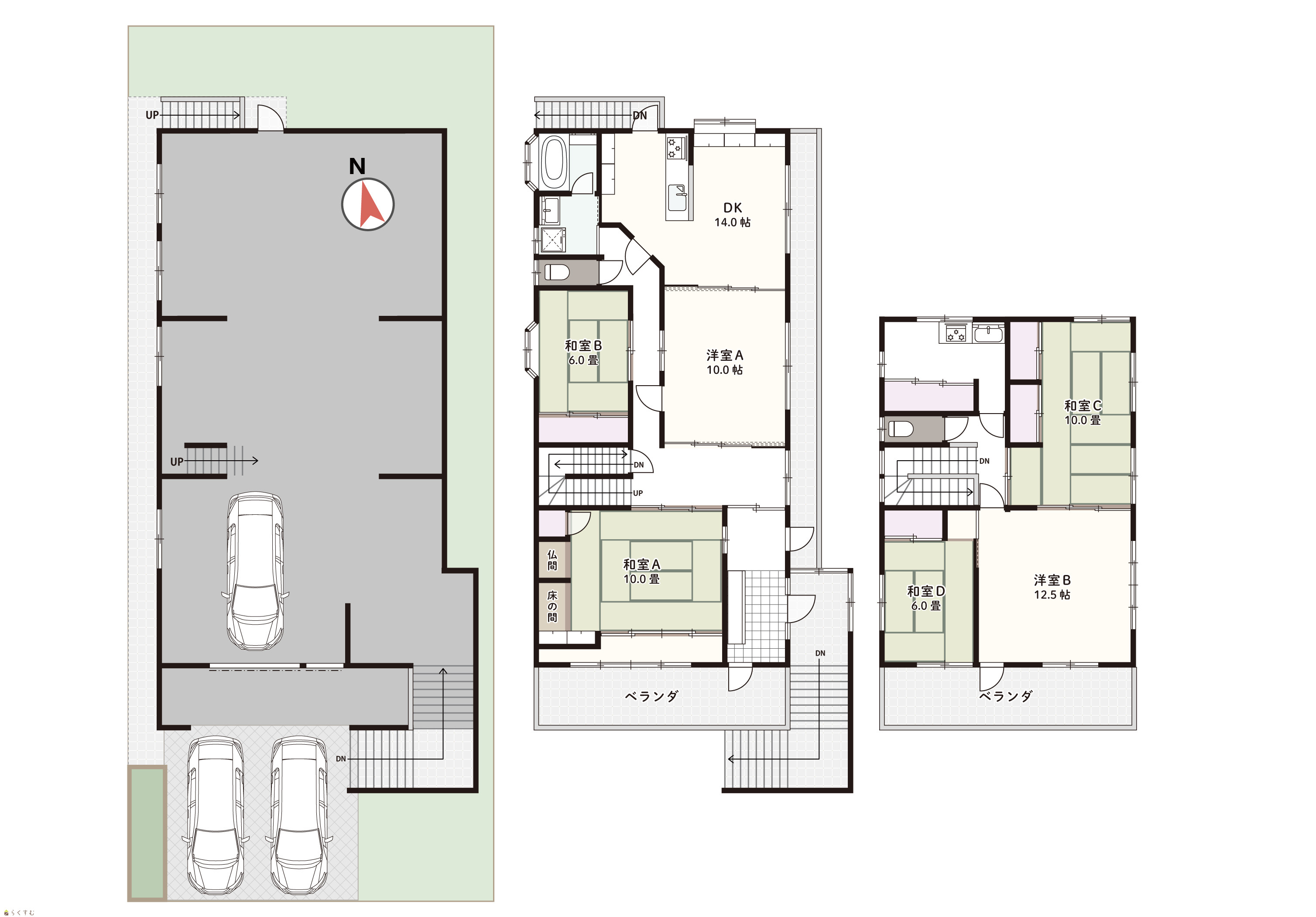
    :6DK
  • 築年月
    :1998年5月
26,980,000
  • 長岡市緑町1丁目 中古戸建
    長岡不動産販売株式会社
  • この物件を問い合わせる/無料
  • TEL: 0258-86-4690

物件画像

外観 間取り
物件画像
※画像クリックで拡大表示
外観
物件画像
※画像クリックで拡大表示
間取り
詳細画像


物件概要

物件コード 00378-200072
物件名 長岡市緑町1丁目 中古戸建
交通 駅:信越線 長岡駅から徒歩42分、バス:大手大橋西詰から徒歩3分
物件所在地 新潟県長岡市緑町1丁目86-26
物件種別 中古一戸建て
構造 木・鉄筋コンクリート造 階建 地上3階建
建ぺい率/容積率 60%/200%
建物面積 1階 112.39㎡/ 2階 112.39㎡/ 3階 72.7㎡/ 計 297.48㎡ /89.98坪
土地面積 270.12㎡ /81.71坪
築年月 1998年5月(築27年)
入居(引き渡し)時期 随時入居(引き渡し)可
用途地域 準工業地域 地目 宅地
都市計画 市街化区域 学校区 大島小学校(604m)・大島中学校(448m)
形状 - 道路 南側 約8.0m 公道 消雪パイプ有
私道 - その他の制限 -
  • 長岡市緑町1丁目 中古戸建
    長岡不動産販売株式会社
  • この物件を問い合わせる/無料
  • TEL: 0258-86-4690

物件詳細情報

所在階/階数 - 号室 -
販売価格 26,980,000円 方位 -
間取り 6DK (和室:10畳、6畳、10畳、6畳) (洋室:10、12.5)
DK14
家事室有
専有面積 - バルコニー面積 -
その他面積 - 駐車場 -
管理費 - 修繕積立金 -
現況 空家
仲介手数料 876,096円
固定資産税/年 101,501円
令和7年度分
利用制限 -
設備 スーパー近く、駐車3台以上可能、システムキッチン、3口コンロ、ガスコンロ設置済み、追いだき機能付き、バス1坪以上、温水洗浄便座、トイレ2か所以上、シャワー付き洗面台、エアコンあり、都市ガス、上水道、下水道、即引き渡し可能
取引態様 専任
備考 ◆ハウスクリーニング実施
◆防蟻工事実施(5年保証)
◆建物状況調査実施
◆現況測量実施
上記以外については現況有姿でのお引渡しとなります。
リノベーションのご相談も承ります。
取り扱い会社

長岡不動産販売株式会社

新潟県長岡市神田町3-4-5

情報登録日 2026/04/02 次回更新予定日 2026/04/21
取引条件有効期限 2026/04/02
  • 長岡市緑町1丁目 中古戸建
    長岡不動産販売株式会社
  • この物件を問い合わせる/無料
  • TEL: 0258-86-4690

この物件の地図・周辺情報・行政情報

この物件の周辺情報・行政情報を詳しく見る
【周辺情報】
物件の近くにあるコンビニや銀行・学校など、アイコン付のマップで詳しく表示できます!
【行政情報】
水道料や下水道料・ガス料金など、暮らしに関係のある情報を表示しています。
セブン-イレブン 長岡古正寺店(コンビニ)まで220m
原信 古正寺店(スーパー)まで240m
イオン長岡店(スーパー)まで420m
ドラッグトップス 古正寺薬局(ドラッグストア)まで210m
第四北越銀行 長岡西コンサルティングプラザ(銀行)まで320m
長岡イオン郵便局(郵便局)まで430m

※カメラのアイコンがある場合は、マウスをポイントするとその施設の画像がご覧いただけます。


担当取扱い店舗情報

取扱い店舗画像
長岡不動産販売株式会社
TEL: 0258-86-4690
所在地: 新潟県長岡市神田町3-4-5
交通: 長岡駅
営業時間: 10:00~18:00/定休日:水曜日 ※ご都合に合わせて対応可能です
免許番号: 新潟県知事(1)第5764号 この会社の情報を詳しく見る
所属団体名: 公社 全日本不動産協会 新潟県本部
取引態様: 専任
ホームページ: https://nagaoka-f.com/