物件掲載企業数:295|賃貸物件:3,347件|売買物件:3,307件|今週の登録物件:319
閲覧中のブラウザ(インターネットエクスプローラー)は非推奨ブラウザです。
物件が正しく表示されなかったり、正しく検索されない場合があります。最新のブラウザ(Google Chrome・Edgeなど)にてご利用お願いいたします。
  

新潟県柏崎市桜木町23-23 中古一戸建て 6DK 1,980,000円の物件情報

6DK中古住宅!各種商業施設約1km圏内、人気の柏崎小学校・第一中学校エリアです♪リノベーションのご相談も承ります!

物件名/所在地 詳細 価格
柏崎市桜木町 中古戸建
新潟県柏崎市桜木町23-23
  • 土地面積
    :246.51㎡ /74.56坪
  • 建物面積
    :96.88㎡ /29.3坪
  • 間取り
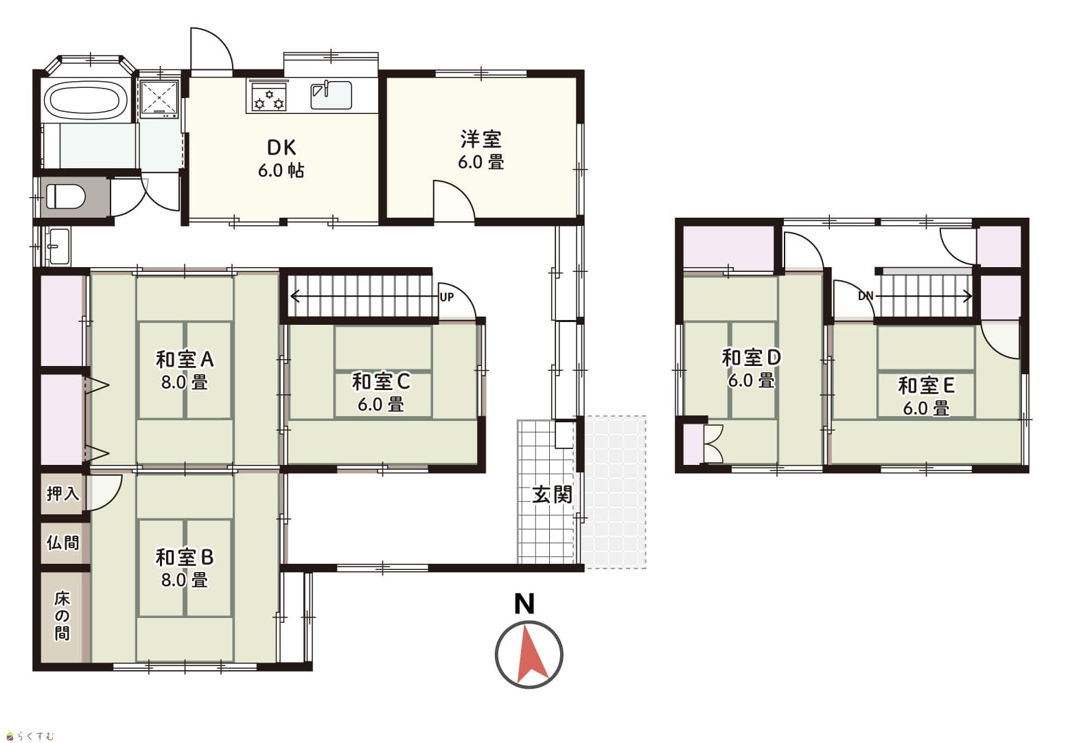
    :6DK
  • 築年月
    :1974年12月
1,980,000
  • 柏崎市桜木町 中古戸建
    長岡不動産販売株式会社
  • この物件を問い合わせる/無料
  • TEL: 0258-86-4690

物件画像

外観 間取り
物件画像
※画像クリックで拡大表示
外観
物件画像
※画像クリックで拡大表示
間取り
詳細画像


物件概要

物件コード 00378-200067
物件名 柏崎市桜木町 中古戸建
交通 駅:越後線 東柏崎駅から徒歩16分、バス:翔洋高校前から徒歩1分
物件所在地 新潟県柏崎市桜木町23-23
物件種別 中古一戸建て
構造 木造 階建 地上2階建
建ぺい率/容積率 60%/199%
建物面積 1階 67.9㎡/ 2階 28.98㎡/ 計 96.88㎡ /29.3坪
土地面積 246.51㎡ /74.56坪
築年月 1974年12月(築51年)
入居(引き渡し)時期 随時入居(引き渡し)可
用途地域 第1種住居地域 地目 宅地
都市計画 市街化区域 学校区 柏崎小学校(1,625m)・第一中学校(1,387m)
形状 - 道路 北側 約2.7m 公道
私道 - その他の制限 -
  • 柏崎市桜木町 中古戸建
    長岡不動産販売株式会社
  • この物件を問い合わせる/無料
  • TEL: 0258-86-4690

物件詳細情報

所在階/階数 - 号室 -
販売価格 1,980,000円 方位 -
間取り 6DK (和室:8畳、8畳、6畳、6畳、6畳) (洋室:6)
DK6
専有面積 - バルコニー面積 -
その他面積 - 駐車場 -
管理費 - 修繕積立金 -
現況 空家
仲介手数料 312,000円
固定資産税/年 40,439円
令和7年度分
利用制限 -
設備 スーパー近く、システムキッチン、ガスコンロ設置可能、バス1坪以上、都市ガス、上水道、下水道、即引き渡し可能
取引態様 一般
備考 ◆1階南側に未登記増築部分(約32.23㎡)有り
◆再建築可能です。
◆現況有姿でのお引渡しとなります。
◆リノベーションのご相談も承ります。
取り扱い会社

長岡不動産販売株式会社

新潟県長岡市神田町3-4-5

情報登録日 2026/02/20 次回更新予定日 2026/03/07
取引条件有効期限 2026/01/13
  • 柏崎市桜木町 中古戸建
    長岡不動産販売株式会社
  • この物件を問い合わせる/無料
  • TEL: 0258-86-4690

この物件の地図・周辺情報・行政情報

この物件の周辺情報・行政情報を詳しく見る
【周辺情報】
物件の近くにあるコンビニや銀行・学校など、アイコン付のマップで詳しく表示できます!
【行政情報】
水道料や下水道料・ガス料金など、暮らしに関係のある情報を表示しています。
高橋医院(病院)まで520m
セブン銀行ATM(銀行)まで110m
柏崎桜木町郵便局(郵便局)まで320m

※カメラのアイコンがある場合は、マウスをポイントするとその施設の画像がご覧いただけます。


担当取扱い店舗情報

取扱い店舗画像
長岡不動産販売株式会社
TEL: 0258-86-4690
所在地: 新潟県長岡市神田町3-4-5
交通: 長岡駅
営業時間: 10:00~18:00/定休日:水曜日 ※ご都合に合わせて対応可能です
免許番号: 新潟県知事(1)第5764号 この会社の情報を詳しく見る
所属団体名: 公社 全日本不動産協会 新潟県本部
取引態様: 一般
ホームページ: https://nagaoka-f.com/