物件掲載企業数:297|賃貸物件:3,610件|売買物件:3,333件|今週の登録物件:272
閲覧中のブラウザ(インターネットエクスプローラー)は非推奨ブラウザです。
物件が正しく表示されなかったり、正しく検索されない場合があります。最新のブラウザ(Google Chrome・Edgeなど)にてご利用お願いいたします。
  

新潟県長岡市新保1丁目6-3 新築一戸建て 3LDK 23,300,000円の物件情報

☆2025年12月完成☆新保1丁目バス停まで徒歩1分!4~5人家族向けの3LDK

物件名/所在地 詳細 価格
長岡市新保1丁目 新築建売住宅
新潟県長岡市新保1丁目6-3
  • 土地面積
    :150.66㎡ /45.57坪
  • 建物面積
    :84.45㎡ /25.54坪
  • 間取り
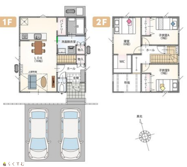
    :3LDK
  • 築年月
    :2025年12月
23,300,000
  • 長岡市新保1丁目 新築建売住宅
    株式会社アップデート不動産
  • この物件を問い合わせる/無料
  • TEL: 080-4887-9627

物件画像

外観 間取り
物件画像
※画像クリックで拡大表示
外観
物件画像
※画像クリックで拡大表示
間取り
詳細画像


物件概要

物件コード 00362-200033
物件名 長岡市新保1丁目 新築建売住宅
交通 駅:信越線 北長岡駅から徒歩15分、バス:新保1丁目から徒歩1分
物件所在地 新潟県長岡市新保1丁目6-3
物件種別 新築一戸建て
構造 木造 階建 地上2階建
建ぺい率/容積率 70%/200%
建物面積 1階 44.71㎡/ 2階 39.74㎡/ 計 84.45㎡ /25.54坪
土地面積 150.66㎡ /45.57坪
築年月 2025年12月完成予定
入居(引き渡し)時期 相談
用途地域 第1種中高層住居専用地域 地目 宅地
都市計画 市街化区域 学校区 富曾亀小学校(484m)・東北中学校(797m)
形状 - 道路 北側(道路幅:8.5m/接道幅12.6m)
私道 - その他の制限 -
  • 長岡市新保1丁目 新築建売住宅
    株式会社アップデート不動産
  • この物件を問い合わせる/無料
  • TEL: 080-4887-9627

物件詳細情報

所在階/階数 - 号室 -
販売価格 23,300,000円 方位 -
間取り 3LDK
専有面積 - バルコニー面積 -
その他面積 - 駐車場 -
管理費 - 修繕積立金 -
現況 更地
仲介手数料 なし
利用制限 -
設備 整形地、前面道路6m以上、日当り良好、スーパー近く、建物確認・完了検査済証あり、LDK15畳以上、全室フローリング、駐車場2台以上、TVインターホン、複層ガラス、システムキッチン、カウンターキッチン、IHクッキングヒーター、追いだき機能付き、バス1坪以上、温水洗浄便座、シャワー付き洗面台、エアコン、24時間換気システム、オール電化、省エネ給湯、高気密高断熱住宅、上水道、下水道、電気、ウォークインクローゼット、全居室収納あり、シューズインクローゼット、シューズBOX、照明器具付き
取引態様 一般
備考 写真だけでは伝えることのできない性能面などは、実際にご覧いただければと思います!未完工物件ですので、近隣の類似物件をご紹介させていただきます!土日・祝日はもちろん、平日のお仕事終わりも含めて、日時問わずお気軽にお問い合わせください♪
取り扱い会社

株式会社アップデート不動産

新潟県長岡市古正寺3-116

情報登録日 2025/12/09 次回更新予定日 2026/01/13
取引条件有効期限 2025/06/30
  • 長岡市新保1丁目 新築建売住宅
    株式会社アップデート不動産
  • この物件を問い合わせる/無料
  • TEL: 080-4887-9627

この物件の地図・周辺情報・行政情報

この物件の周辺情報・行政情報を詳しく見る
【周辺情報】
物件の近くにあるコンビニや銀行・学校など、アイコン付のマップで詳しく表示できます!
【行政情報】
水道料や下水道料・ガス料金など、暮らしに関係のある情報を表示しています。
セブン-イレブン 長岡永田店(コンビニ)まで320m
ローソン 長岡新保店(コンビニ)まで280m
良食生活館 川崎店(スーパー)まで690m
しんきん(銀行)まで510m

※カメラのアイコンがある場合は、マウスをポイントするとその施設の画像がご覧いただけます。


担当取扱い店舗情報

取扱い店舗画像
株式会社アップデート不動産
TEL: 0258-94-4638
所在地: 新潟県長岡市古正寺3-116
交通:
営業時間: 10:00~17:00/定休日:水・木 年末年始 夏季冬季GW
免許番号: 新潟県知事(2)第5485号 この会社の情報を詳しく見る
所属団体名: 公社 新潟県宅地建物取引協会 長岡支部
取引態様: 一般