物件掲載企業数:301|賃貸物件:3,263件|売買物件:3,243件|今週の登録物件:248
閲覧中のブラウザ(インターネットエクスプローラー)は非推奨ブラウザです。
物件が正しく表示されなかったり、正しく検索されない場合があります。最新のブラウザ(Google Chrome・Edgeなど)にてご利用お願いいたします。
  

新潟県新潟市中央区南笹口1丁目1番50号 投資物件・その他 375,000,000円の物件情報

新潟駅南口 新潟駅徒歩圏内

物件名/所在地 詳細 価格
表面利回り
新潟市南笹口 プレミエール駅南 ビル一棟
新潟県新潟市中央区南笹口1丁目1番50号
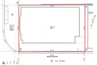
  • 土地面積
    :397.05㎡ /120.1坪
  • 建ぺい率
    :80%
  • 容積率
    :400%
375,000,000
7.41%
(満室想定時)
  • 新潟市南笹口 プレミエール駅南 ビル一棟
    SUMORE NAGAOKA KONOMA Real Estate co.,ltd.
  • この物件を問い合わせる/無料
  • TEL: 0258-89-7833

物件画像

外観 間取り
物件画像
※画像クリックで拡大表示
外観
物件画像
※画像クリックで拡大表示
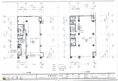
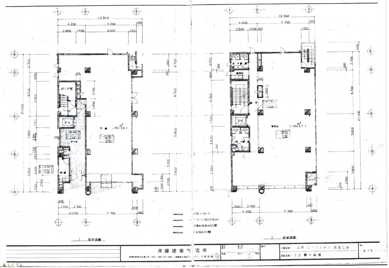
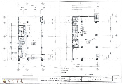
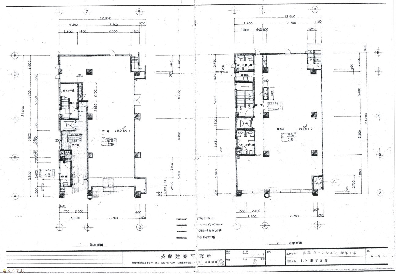
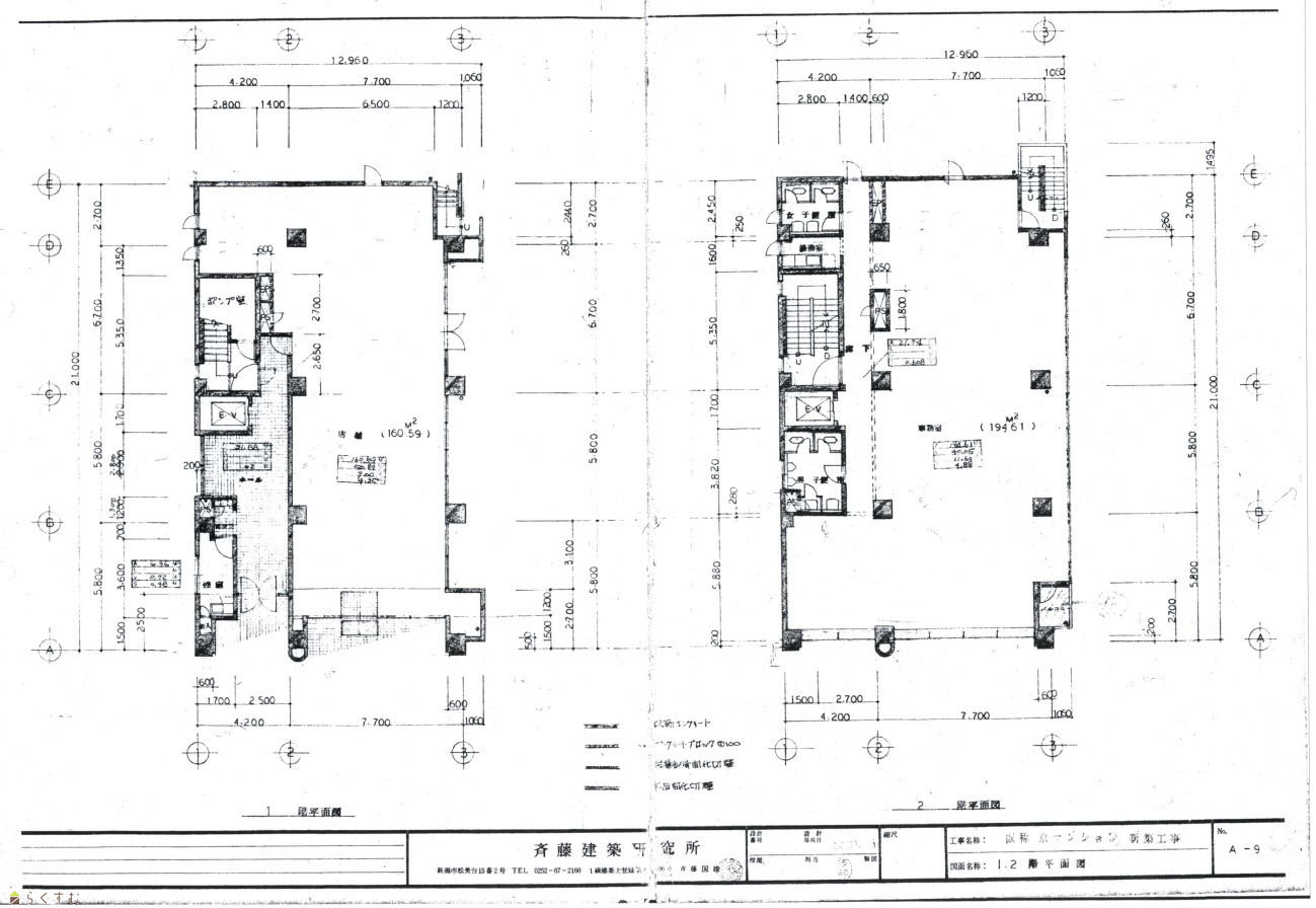
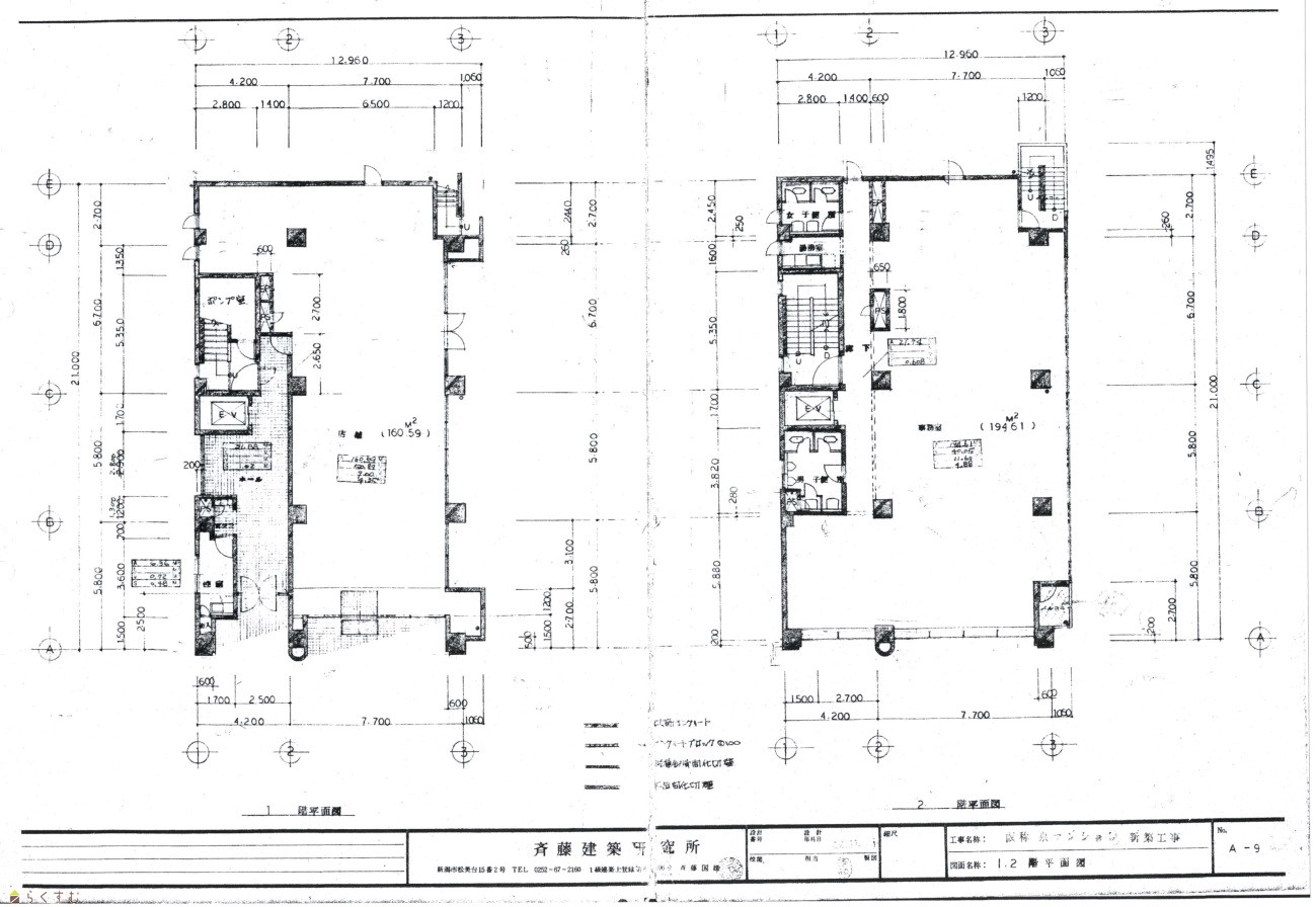
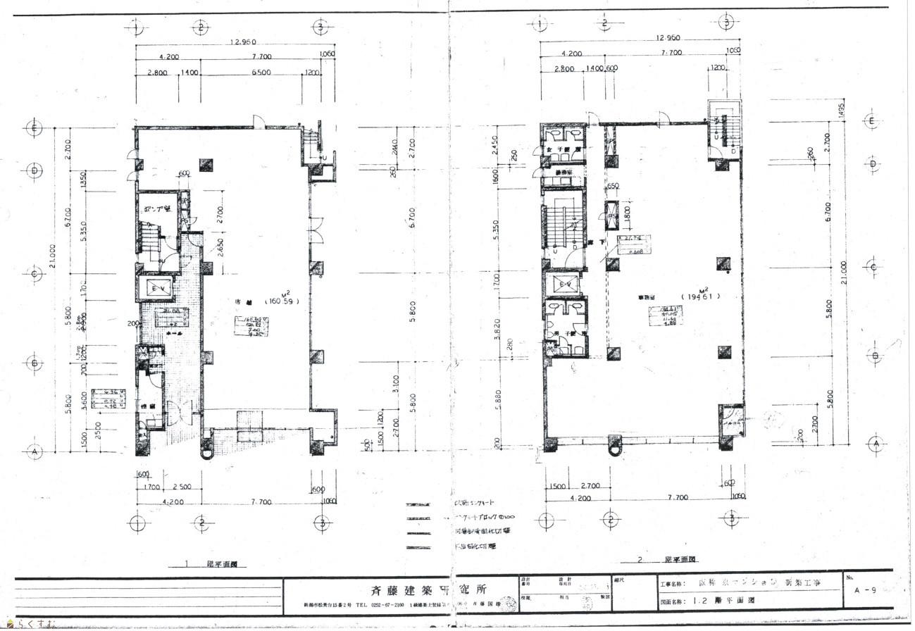
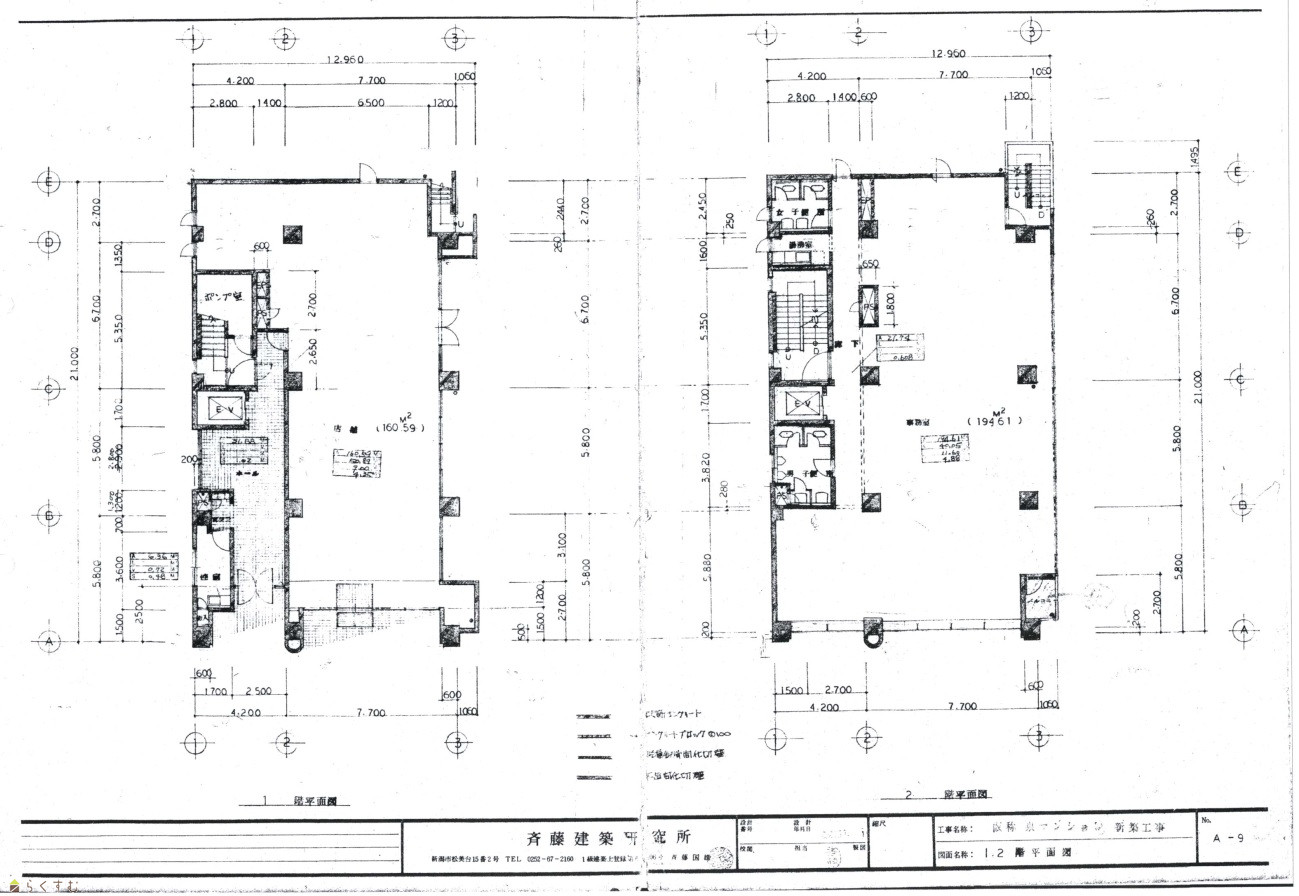
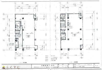
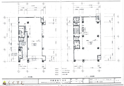
1.2階
詳細画像


物件概要

収益物件 テナント5区画 住居9戸
物件コード 00344-200006
物件名 新潟市南笹口 プレミエール駅南 ビル一棟
交通 駅:上越新幹線 新潟駅から徒歩8分
物件所在地 新潟県新潟市中央区南笹口1丁目1番50号
物件種別 投資物件・その他
物件区分 その他
構造 鉄筋コン 階建 地上6階建
建ぺい率/容積率 80%/400%
建物面積 1階 220.27㎡/ 2階 259.78㎡/ 3階 261.22㎡/ 4階 237.99㎡/ 計 1,455.24㎡ /440.21坪
土地面積 397.05㎡ /120.1坪
築年月 1988年7月(築37年)
入居(引き渡し)時期 随時入居(引き渡し)可
用途地域 商業地域 地目 宅地  (現状:宅地)
都市計画 市街化区域 学校区 笹口小学校(671m)
形状 間口 16.72m × 奥行 23.74m 道路 西側 市道 幅員約30m 南側 市道 幅員約5.8m
私道 - その他の制限 準防火地域
  • 新潟市南笹口 プレミエール駅南 ビル一棟
    SUMORE NAGAOKA KONOMA Real Estate co.,ltd.
  • この物件を問い合わせる/無料
  • TEL: 0258-89-7833

物件詳細情報

所在階/階数 - 号室 -
販売価格 375,000,000円 方位 -
表面利回り(満室想定時) 7.41% 満室想定年収 27,442,668円 (想定月収: 2,286,889円 )
現行利回り 5.98% 現行年間年収 22,162,668円
住戸数 9
間取り -
専有面積 62㎡ /18.75坪 ~ 69㎡ /20.87坪 バルコニー面積 -
その他面積 - 駐車場 12100
管理費 6000 修繕積立金 -
現況 賃貸中
仲介手数料 12,276,000円
利用制限 ペット:不可、楽器:不可
設備 角地、南側道路面す、エレベーター、駐車場(近隣含む)、事業向け
取引態様 専任
備考 -
取り扱い会社

SUMORE NAGAOKA KONOMA Real Estate co.,ltd.

新潟県長岡市坂之上町二丁目3番地9sumoreビル

情報登録日 2025/03/04 次回更新予定日 2026/06/08
取引条件有効期限 2024/03/11
  • 新潟市南笹口 プレミエール駅南 ビル一棟
    SUMORE NAGAOKA KONOMA Real Estate co.,ltd.
  • この物件を問い合わせる/無料
  • TEL: 0258-89-7833

この物件の地図・周辺情報・行政情報

この物件の周辺情報・行政情報を詳しく見る
【周辺情報】
物件の近くにあるコンビニや銀行・学校など、アイコン付のマップで詳しく表示できます!
【行政情報】
水道料や下水道料・ガス料金など、暮らしに関係のある情報を表示しています。

担当取扱い店舗情報

取扱い店舗画像
SUMORE NAGAOKA KONOMA Real Estate co.,ltd.
TEL: 0258-89-7833
所在地: 新潟県長岡市坂之上町二丁目3番地9sumoreビル
交通: JR長岡駅
営業時間: 9:00~18:00/定休日:日・祝日(事前予約受付しています)
免許番号: 新潟県知事(1)第5700号 この会社の情報を詳しく見る
所属団体名: 公社新潟県宅地建物取引協会 長岡支部
取引態様: 専任
ホームページ: https://sumore.co.jp/