物件掲載企業数:295|賃貸物件:3,618件|売買物件:3,315件|今週の登録物件:215
閲覧中のブラウザ(インターネットエクスプローラー)は非推奨ブラウザです。
物件が正しく表示されなかったり、正しく検索されない場合があります。最新のブラウザ(Google Chrome・Edgeなど)にてご利用お願いいたします。
  

新潟県長岡市川崎1丁目 新築一戸建て 3LDK 29,800,000円の物件情報

2025年3月完成の新築建売物件!3台駐車できる広い駐車スペース!! 駅・スーパー・学校の近い好立地♪

物件名/所在地 詳細 価格
川崎1丁目新築戸建
新潟県長岡市川崎1丁目
  • 土地面積
    :138㎡ /41.74坪
  • 建物面積
    :94.4㎡ /28.55坪
  • 間取り
    :3LDK
  • 築年月
    :2025年3月
29,800,000
  • 川崎1丁目新築戸建
    有限会社 ブライトサクセス
  • この物件を問い合わせる/無料
  • TEL: 0258-35-2220

物件画像

外観 間取り
物件画像
※画像クリックで拡大表示
外観
物件画像
※画像クリックで拡大表示
間取り図
詳細画像
動画


物件概要

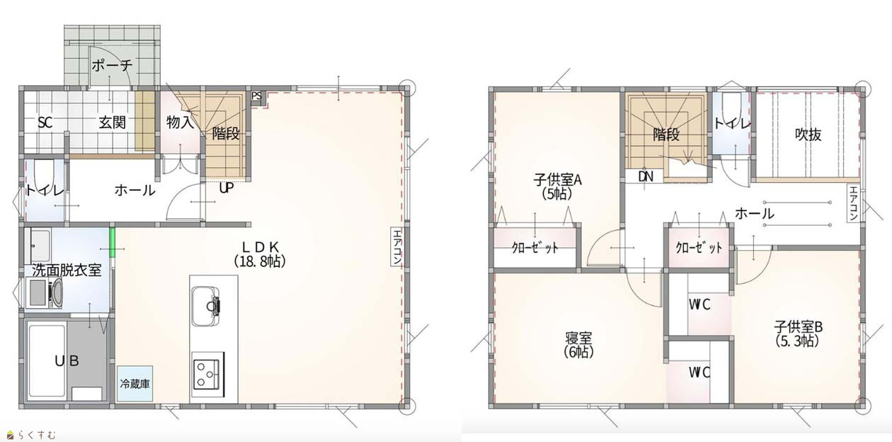
18.8帖の3面採光の広々リビング。キッチンから脱衣所が続いており家事動線がスムーズ。2階ホールにもエアコンつき、洗濯物干せるスペースあり。駅・スーパー・学校の近く、ファミリー向けの3LDK
物件コード 00320-200180
物件名 川崎1丁目新築戸建
交通 駅:信越線 長岡駅から徒歩16分、バス:川崎入口から徒歩2分
物件所在地 新潟県長岡市川崎1丁目
物件種別 新築一戸建て
構造 木造 階建 地上2階建
建ぺい率/容積率 60%/200%
建物面積 計 94.4㎡ /28.55坪
土地面積 138㎡ /41.74坪
築年月 2025年3月(築8ヶ月)
入居(引き渡し)時期 相談
用途地域 第2種中高層住居専用地域 地目 宅地
都市計画 市街化区域 学校区 川崎小学校(282m)・東北中学校(783m)
形状 - 道路 -
私道 - その他の制限 景観法による規制有、第二種高度地区、建築基準法第22条第1項の規定により指定する区域、まちなか居住区域
  • 川崎1丁目新築戸建
    有限会社 ブライトサクセス
  • この物件を問い合わせる/無料
  • TEL: 0258-35-2220

物件詳細情報

所在階/階数 - 号室 -
販売価格 29,800,000円 方位 指定なし
間取り 3LDK (洋室:6.0、5.3、5.0)
LDK18.8
専有面積 - バルコニー面積 -
その他面積 - 駐車場 -
管理費 - 修繕積立金 -
現況 空家
仲介手数料 1,049,400円
利用制限 -
設備 整形地、日当り良好、閑静な住宅街、スーパー近く、BELS/省エネ基準適合認定建物、LDK15畳以上、全室フローリング、駐車場3台以上、TVインターホン、複層ガラス、システムキッチン、IHクッキングヒーター、食器洗浄乾燥機、バス1坪以上、温水洗浄便座、シャワー付き洗面台、エアコン、オール電化、省エネ給湯、高気密高断熱住宅、ウォークインクローゼット、全居室収納あり、シューズインクローゼット
取引態様 仲介
備考 -
取り扱い会社

有限会社 ブライトサクセス

新潟県長岡市新町1-1-2

情報登録日 2025/10/08 次回更新予定日 2025/11/19
取引条件有効期限 2025/04/30
  • 川崎1丁目新築戸建
    有限会社 ブライトサクセス
  • この物件を問い合わせる/無料
  • TEL: 0258-35-2220

この物件の地図・周辺情報・行政情報

この物件の周辺情報・行政情報を詳しく見る
【周辺情報】
物件の近くにあるコンビニや銀行・学校など、アイコン付のマップで詳しく表示できます!
【行政情報】
水道料や下水道料・ガス料金など、暮らしに関係のある情報を表示しています。
ファミリーマート 長岡川崎店(コンビニ)まで170m
原信 今朝白店(スーパー)まで640m
長岡信用金庫 川崎支店(銀行)までm
長岡川崎町郵便局(郵便局)までm

※カメラのアイコンがある場合は、マウスをポイントするとその施設の画像がご覧いただけます。


担当取扱い店舗情報

取扱い店舗画像
有限会社 ブライトサクセス
TEL: 0258-35-2220
所在地: 新潟県長岡市新町1-1-2
交通: 長岡駅
営業時間: 年中無休 10:00~18:00/定休日:オンライン (9:30~21:00)
免許番号: 新潟県知事(1)第5629号 この会社の情報を詳しく見る
所属団体名: 公社 新潟県宅地建物取引協会 新潟支部
取引態様: 仲介
ホームページ: https://bright-success.net/