【完成前なので好みのデザイン選べます!】住宅街が広がる閑静な街並み。徒歩15分圏内に原信・ドン・キホーテ・ニトリやジョーシンなどショッピング施設が充実♪長岡バイパス・東幹線86号線が近くマイカー通勤もスムーズ。
| 物件名/所在地 | 詳細 | 価格 | 
|---|---|---|
| 長岡市新保1丁目Bright新築戸建
														 新潟県長岡市新保1丁目6-3  | 
							
								
  | 
							24,800,000円 | 
| 外観 | 間取り | 
|---|---|
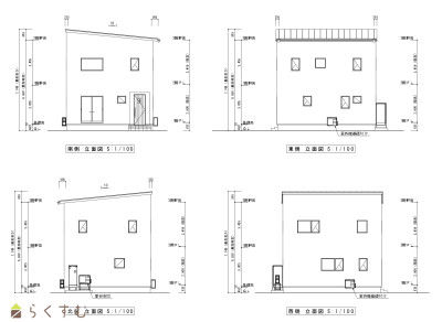
								![]() ※画像クリックで拡大表示 完成予想外観 
							 | 
							
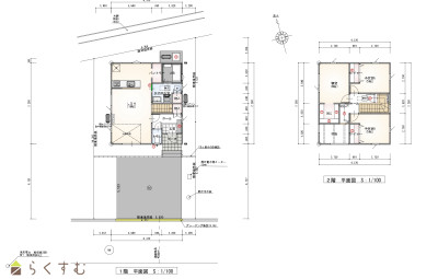
								![]() ※画像クリックで拡大表示 完成予想間取り 
							 | 
						
| 詳細画像 | |
| 
								 | 
						|
| 動画 | |
| 
								 | 
						|
| 南を空けた配置がしやすい、採光にこだわった家づくりが可能。富曽亀小学校・東北中学校まで徒歩10分圏内で通学も安心。 | |||
| 物件コード | 00320-200133 | ||
|---|---|---|---|
| 物件名 | 長岡市新保1丁目Bright新築戸建 | ||
| 交通 | 駅:信越線 北長岡駅から徒歩17分、バス:新保1丁目から徒歩3分 | ||
| 物件所在地 | 新潟県長岡市新保1丁目6-3 | ||
| 物件種別 | 新築一戸建て | ||
| 構造 | 木造 | 階建 | 地上2階建 | 
| 建ぺい率/容積率 | 60%/200% | ||
| 建物面積 | 計 86.11㎡ /26.04坪 | ||
| 土地面積 | 139㎡ /42.04坪 | ||
| 築年月 | 2025年11月完成予定 | ||
| 入居(引き渡し)時期 | 相談 | ||
| 用途地域 | 第1種中高層住居専用地域 | 地目 | 宅地 | 
| 都市計画 | 市街化区域 | 学校区 | 富曾亀小学校(501m)・東北中学校(760m) | 
| 形状 | 間口 9.1m | 道路 | 前面道路幅員4.0m | 
| 私道 | - | その他の制限 | - | 
| 所在階/階数 | - | 号室 | - | 
|---|---|---|---|
| 販売価格 | 24,800,000円 | 方位 | 南 | 
| 間取り | 
																	3LDK (洋室:6.0、5.0、5.0) LDK16  | 
						||
| 専有面積 | - | バルコニー面積 | - | 
| その他面積 | - | 駐車場 | - | 
| 管理費 | - | 修繕積立金 | - | 
| 現況 | - | ||
| 仲介手数料 | 884,400円 | ||
| 利用制限 | - | ||
| 設備 | 整形地、日当り良好、閑静な住宅街、スーパー近く、LDK15畳以上、全室フローリング、駐車場2台以上、南向き、TVインターホン、複層ガラス、システムキッチン、カウンターキッチン、IHクッキングヒーター、バス1坪以上、シャワー付き洗面台、オール電化、省エネ給湯、高気密高断熱住宅、上水道、下水道、ウォークインクローゼット、全居室収納あり | ||
| 取引態様 | 一般 | ||
| 備考 | - | ||
| 取り扱い会社 | 
								 有限会社 ブライトサクセス 新潟県長岡市新町1-1-2  | 
						||
| 情報登録日 | 2025/10/17 | 次回更新予定日 | 2025/11/18 | 
| 取引条件有効期限 | 2025/04/30 | ||
| 
																		セブン-イレブン 長岡永田店(コンビニ)まで350m  良食生活館 川崎店(スーパー)まで590m ドラッグトップス 新保薬局(ドラッグストア)まで810m  | 
																
																		大光銀行 新保支店(銀行)まで200m  長岡永田郵便局(郵便局)まで280m  | 
															
※カメラのアイコンがある場合は、マウスをポイントするとその施設の画像がご覧いただけます。
						| TEL: | 0258-35-2220 | |
|---|---|---|
| 所在地: | 新潟県長岡市新町1-1-2 | |
| 交通: | 長岡駅 | |
| 営業時間: | 年中無休 10:00~18:00/定休日:オンライン (9:30~21:00) | |
| 免許番号: | 新潟県知事(1)第5629号 | 
										
											 | 
								
| 所属団体名: | 公社 新潟県宅地建物取引協会 新潟支部 | |
| 取引態様: | 一般 | |
| ホームページ: | https://bright-success.net/ | |