物件掲載企業数:299|賃貸物件:3,601件|売買物件:3,317件|今週の登録物件:312
閲覧中のブラウザ(インターネットエクスプローラー)は非推奨ブラウザです。
物件が正しく表示されなかったり、正しく検索されない場合があります。最新のブラウザ(Google Chrome・Edgeなど)にてご利用お願いいたします。
  

新潟県上越市柿崎区柿崎6987-32 中古一戸建て 8DK 4,800,000円の物件情報

8DK のゆとりある住宅 地下車庫2台駐車OK

物件名/所在地 詳細 価格
旭ヶ丘団地中古住宅
新潟県上越市柿崎区柿崎6987-32
  • 土地面積
    :254.2㎡ /76.89坪
  • 建物面積
    :199.09㎡ /60.22坪
  • 間取り
    :8DK
  • 築年月
    :1989年2月
4,800,000
  • 旭ヶ丘団地中古住宅
    有限会社古田建築
  • この物件を問い合わせる/無料
  • TEL: 025-536-2741

物件画像

外観 間取り
物件画像
※画像クリックで拡大表示
外観
物件画像
※画像クリックで拡大表示
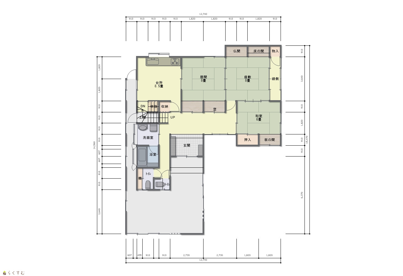
1階間取り
詳細画像


物件概要

8DK のゆとりある住宅 地下車庫2台駐車OK
物件コード 00284-200028
物件名 旭ヶ丘団地中古住宅
交通 駅:信越線 柿崎駅から徒歩19分、バス:桐畑入口から徒歩8分
物件所在地 新潟県上越市柿崎区柿崎6987-32
物件種別 中古一戸建て
構造 木造 階建 地上2階地下1階建
建ぺい率/容積率 60%/200%
建物面積 1階 58.79㎡/ 2階 100.08㎡/ 3階 40.22㎡/ 計 199.09㎡ /60.22坪
土地面積 254.2㎡ /76.89坪
築年月 1989年2月(築36年)
入居(引き渡し)時期 相談
用途地域 第1種住居地域 地目 宅地  (現状:宅地)
都市計画 非線引き都市計画区域 学校区 柿崎小学校(867m)・柿崎中学校(544m)
形状 - 道路 市道大久保線
私道 - その他の制限 -
  • 旭ヶ丘団地中古住宅
    有限会社古田建築
  • この物件を問い合わせる/無料
  • TEL: 025-536-2741

物件詳細情報

所在階/階数 - 号室 -
販売価格 4,800,000円 方位 -
間取り 8DK (和室:6畳、8畳、8畳、8畳、8畳) (洋室:6、6、7.5)
DK8.5
専有面積 - バルコニー面積 -
その他面積 - 駐車場 -
管理費 - 修繕積立金 -
現況 空家
仲介手数料 330,000円
利用制限 -
設備 角地、日当り良好、閑静な住宅街、駐車2台可能、ガスコンロ設置済み、追いだき機能付き、温水洗浄便座、トイレ2か所以上、エアコンあり、都市ガス、上水道、下水道、別荘、田舎暮らし
取引態様 専任
備考 -
取り扱い会社

有限会社古田建築

新潟県上越市柿崎区柿崎7248

情報登録日 2025/08/29 次回更新予定日 2025/10/23
取引条件有効期限 2025/12/30
  • 旭ヶ丘団地中古住宅
    有限会社古田建築
  • この物件を問い合わせる/無料
  • TEL: 025-536-2741

この物件の地図・周辺情報・行政情報

この物件の周辺情報・行政情報を詳しく見る
【周辺情報】
物件の近くにあるコンビニや銀行・学校など、アイコン付のマップで詳しく表示できます!
【行政情報】
水道料や下水道料・ガス料金など、暮らしに関係のある情報を表示しています。
セブン-イレブン 上越柿崎インター店(コンビニ)まで430m
ナルス 柿崎店(スーパー)まで760m
新潟県立柿崎病院(病院)まで850m

※カメラのアイコンがある場合は、マウスをポイントするとその施設の画像がご覧いただけます。


担当取扱い店舗情報

取扱い店舗画像
有限会社古田建築
TEL: 025-536-2741
所在地: 新潟県上越市柿崎区柿崎7248
交通: JR信越線・柿崎駅
営業時間: 8:00 ~ 18:00/定休日:日曜・祝祭日
免許番号: 新潟県知事(5)第4266号 この会社の情報を詳しく見る
所属団体名: 公社 新潟県宅地建物取引協会 上越支部
取引態様: 専任
ホームページ: http://furutakenchiku.com