物件掲載企業数:299|賃貸物件:3,607件|売買物件:3,311件|今週の登録物件:298
閲覧中のブラウザ(インターネットエクスプローラー)は非推奨ブラウザです。
物件が正しく表示されなかったり、正しく検索されない場合があります。最新のブラウザ(Google Chrome・Edgeなど)にてご利用お願いいたします。
  

新潟県上越市東本町3丁目3番30号 中古一戸建て 5DK 600,000円の物件情報

☆町家造りの都市ガス、下水道完備の中古住宅です☆

物件名/所在地 詳細 価格
東本町3丁目
新潟県上越市東本町3丁目3番30号
  • 土地面積
    :184.38㎡ /55.77坪
  • 建物面積
    :104.45㎡ /31.59坪
  • 間取り
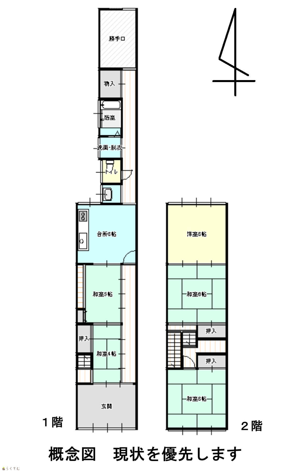
    :5DK
  • 築年月
    :1928年5月
600,000
  • 東本町3丁目
    有限会社田村家具店
  • この物件を問い合わせる/無料
  • TEL: 025-523-2438

物件画像

外観 間取り
物件画像
※画像クリックで拡大表示
現地外観
物件画像
※画像クリックで拡大表示
間取図
詳細画像


物件概要

物件コード 00277-200360
物件名 東本町3丁目
交通 駅:妙高はねうまライン 高田駅から徒歩21分
物件所在地 新潟県上越市東本町3丁目3番30号
物件種別 中古一戸建て
構造 木造 階建 地上2階建
建ぺい率/容積率 60%/200%
建物面積 計 104.45㎡ /31.59坪
土地面積 184.38㎡ /55.77坪
築年月 1928年5月(築97年)
入居(引き渡し)時期 相談
用途地域 第1種住居地域 地目 宅地  (現状:宅地)
都市計画 市街化区域 学校区 東本町小学校(440m)・城北中学校(510m)
形状 間口 3.8m 道路 南側約6.9m、北側約2.8m
私道 - その他の制限 -
  • 東本町3丁目
    有限会社田村家具店
  • この物件を問い合わせる/無料
  • TEL: 025-523-2438

物件詳細情報

所在階/階数 - 号室 -
販売価格 600,000円 方位 -
間取り 5DK (和室:4畳、5畳、8畳、8畳) (洋室:8)
DK8
専有面積 - バルコニー面積 -
その他面積 - 駐車場 -
管理費 - 修繕積立金 -
現況 空家
仲介手数料 なし
利用制限 -
設備 南向き、追いだき機能付き、温水洗浄便座、エアコンあり、都市ガス、上水道、下水道
取引態様 一般
備考 ・築年数が古いですが、しっかりしていて、手直しをすればまだまだ使用していただけます!
・市街地も近いので利便も良い立地です♪
・駐車場が無いため、近隣駐車場を借りる必要があります。
・土地、建物、設備、残置物等につきましては、現状渡しとなります。

※本体価格以外に別途諸費用がかかります。
取り扱い会社

有限会社田村家具店

新潟県上越市稲田4-5-21

情報登録日 2025/04/10 次回更新予定日 2025/10/23
取引条件有効期限 2031/12/31
  • 東本町3丁目
    有限会社田村家具店
  • この物件を問い合わせる/無料
  • TEL: 025-523-2438

この物件の地図・周辺情報・行政情報

この物件の周辺情報・行政情報を詳しく見る
【周辺情報】
物件の近くにあるコンビニや銀行・学校など、アイコン付のマップで詳しく表示できます!
【行政情報】
水道料や下水道料・ガス料金など、暮らしに関係のある情報を表示しています。

担当取扱い店舗情報

取扱い店舗画像
有限会社田村家具店
TEL: 025-523-2438
所在地: 新潟県上越市稲田4-5-21
交通: 高田駅
営業時間: 午前9:00~午後18:00/定休日:水曜日 第1、第3日曜日
免許番号: 新潟県知事(10)第2792号 この会社の情報を詳しく見る
所属団体名: 公社 新潟県宅地建物取引協会 上越支部
取引態様: 一般
ホームページ: http://www.tamurakaguten.com/