物件掲載企業数:301|賃貸物件:3,261件|売買物件:3,251件|今週の登録物件:245
閲覧中のブラウザ(インターネットエクスプローラー)は非推奨ブラウザです。
物件が正しく表示されなかったり、正しく検索されない場合があります。最新のブラウザ(Google Chrome・Edgeなど)にてご利用お願いいたします。
  

新潟県糸魚川市岩木220 中古一戸建て 5K 1,800,000円の物件情報

翡翠拾いやアクティビティな暮らしが楽しめる環境

物件名/所在地 詳細 価格
糸井川市岩木
新潟県糸魚川市岩木220
  • 土地面積
    :689.64㎡ /208.61坪
  • 建物面積
    :215.69㎡ /65.24坪
  • 間取り
    :5K
  • 築年月
    :1874年5月
1,800,000
  • 糸井川市岩木
    リアルエステイトZest 
  • この物件を問い合わせる/無料
  • TEL: 025-543-8358

物件画像

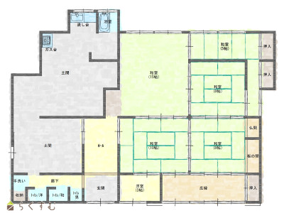
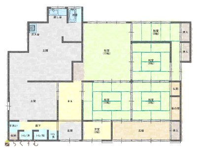
外観 間取り
物件画像
※画像クリックで拡大表示
広々とした自然環境
物件画像
※画像クリックで拡大表示
古民家カフェなどにも面白い
詳細画像


物件概要

古民家造りをリノベしながら事業用にもりようできそう。
物件コード 00267-200020
物件名 糸井川市岩木
交通 駅:日本海ひすいライン 糸魚川駅から徒歩60分、バス:頭山から徒歩12分
物件所在地 新潟県糸魚川市岩木220
物件種別 中古一戸建て
構造 木造 階建 地上1階建
建ぺい率/容積率 70%/200%
建物面積 1階 180.02㎡/ 2階 35.67㎡/ 計 215.69㎡ /65.24坪
土地面積 689.64㎡ /208.61坪
築年月 1874年5月(築152年)
入居(引き渡し)時期 相談
用途地域 無指定 地目 宅地
都市計画 市街化区域 学校区 糸魚川小学校(2,671m)・糸魚川中学校(2,092m)
形状 - 道路 糸魚川市道 岩木下線
私道 - その他の制限 -
  • 糸井川市岩木
    リアルエステイトZest 
  • この物件を問い合わせる/無料
  • TEL: 025-543-8358

物件詳細情報

所在階/階数 - 号室 -
販売価格 1,800,000円 方位
間取り 5K (和室:15畳、10畳、8畳、8畳、5畳)
専有面積 - バルコニー面積 -
その他面積 - 駐車場 -
管理費 - 修繕積立金 -
現況 空家
仲介手数料 330,000円
利用制限 -
設備 日当り良好、修繕記録あり、トイレ2か所以上、LPG、上水道、別荘、田舎暮らし、事業向け
取引態様 専属専任
備考 明治初期の建築と思われます。
畑、家庭菜園(農地有り)
価格応相談!
取り扱い会社

リアルエステイトZest 

新潟県上越市中央3-8-6

情報登録日 2026/04/16 次回更新予定日 2026/06/06
取引条件有効期限 2026/07/06
  • 糸井川市岩木
    リアルエステイトZest 
  • この物件を問い合わせる/無料
  • TEL: 025-543-8358

この物件の地図・周辺情報・行政情報

この物件の周辺情報・行政情報を詳しく見る
【周辺情報】
物件の近くにあるコンビニや銀行・学校など、アイコン付のマップで詳しく表示できます!
【行政情報】
水道料や下水道料・ガス料金など、暮らしに関係のある情報を表示しています。

担当取扱い店舗情報

取扱い店舗画像
リアルエステイトZest 
TEL: 025-543-8358
所在地: 新潟県上越市中央3-8-6
交通: えちごトキめき鉄道 直江津駅から徒歩15分
営業時間: AM:9:00-PM:17:00/定休日:不定休
免許番号: 新潟県知事(4)第4782 この会社の情報を詳しく見る
所属団体名: 公社 新潟県宅地建物取引協会 上越支部
取引態様: 専属専任
ホームページ: https://j-zest.com/