物件掲載企業数:297|賃貸物件:3,610件|売買物件:3,333件|今週の登録物件:272
閲覧中のブラウザ(インターネットエクスプローラー)は非推奨ブラウザです。
物件が正しく表示されなかったり、正しく検索されない場合があります。最新のブラウザ(Google Chrome・Edgeなど)にてご利用お願いいたします。
  

新潟県上越市横畑689 中古一戸建て 6DK 3,500,000円の物件情報

物件名/所在地 詳細 価格
横畑売家
新潟県上越市横畑689
  • 土地面積
    :743.19㎡ /224.81坪
  • 建物面積
    :195.67㎡ /59.19坪
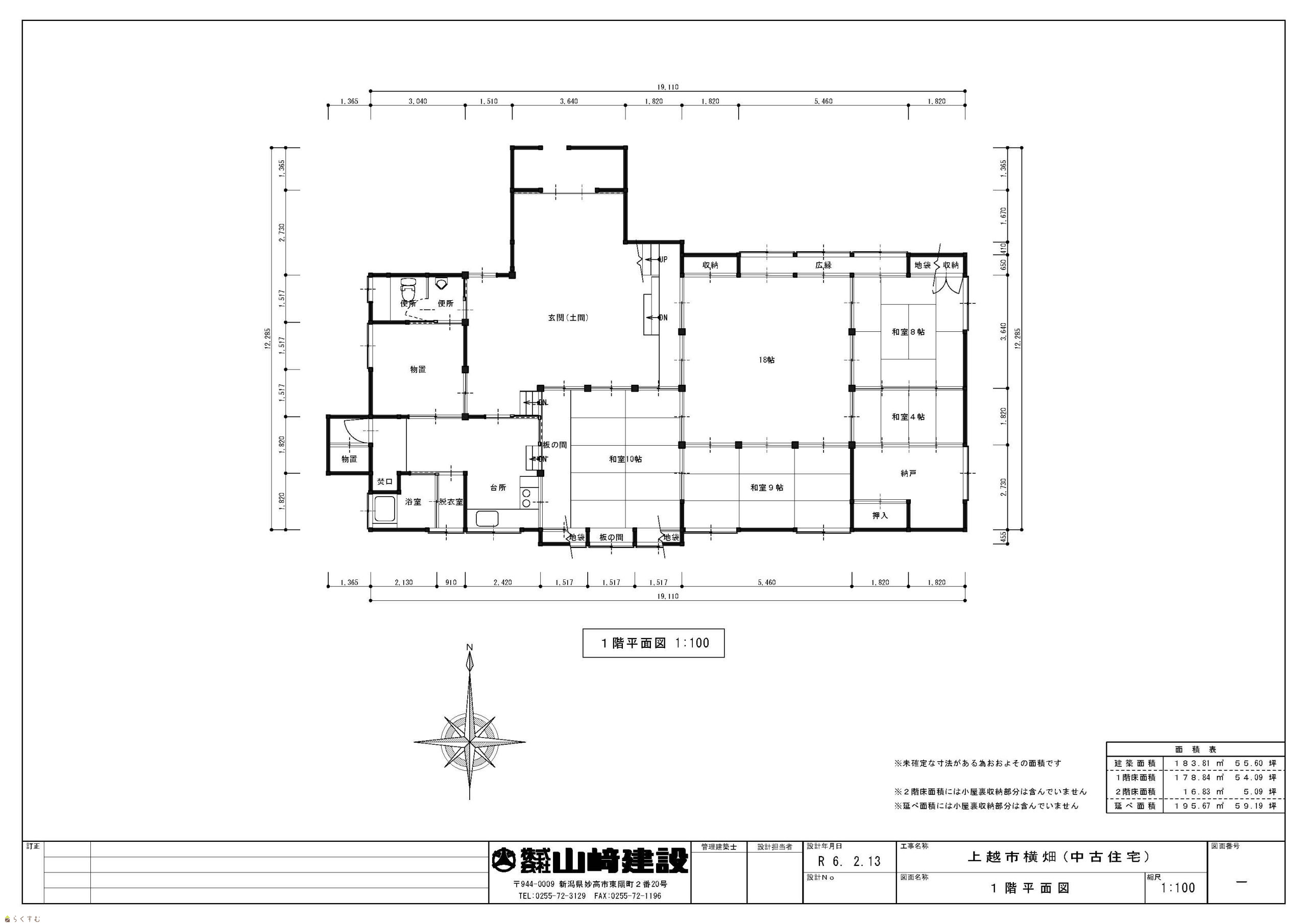
  • 間取り
    :6DK
  • 築年月
    :不詳
3,500,000
  • 横畑売家
    株式会社山崎建設
  • この物件を問い合わせる/無料
  • TEL: 0255-72-3129

物件画像

外観 間取り
物件画像
※画像クリックで拡大表示
外観
物件画像
※画像クリックで拡大表示
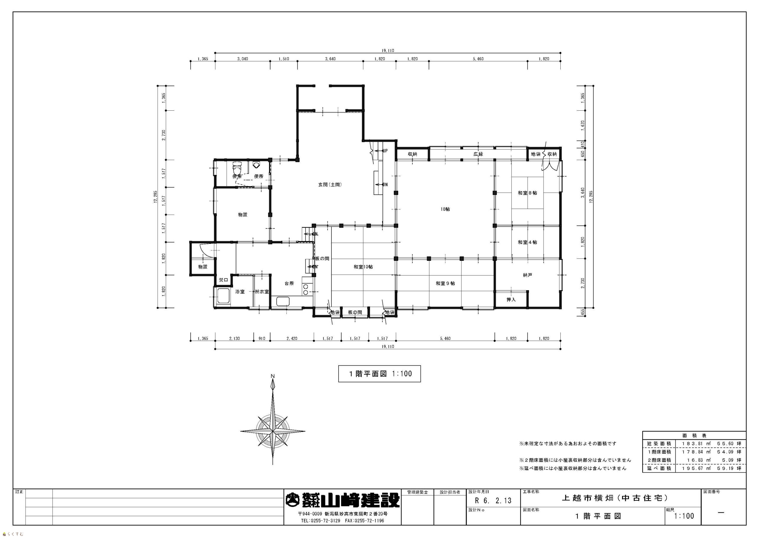
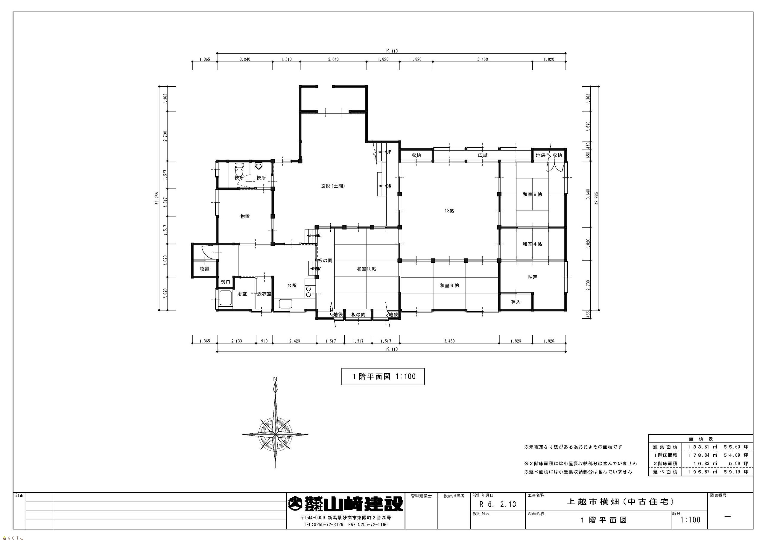
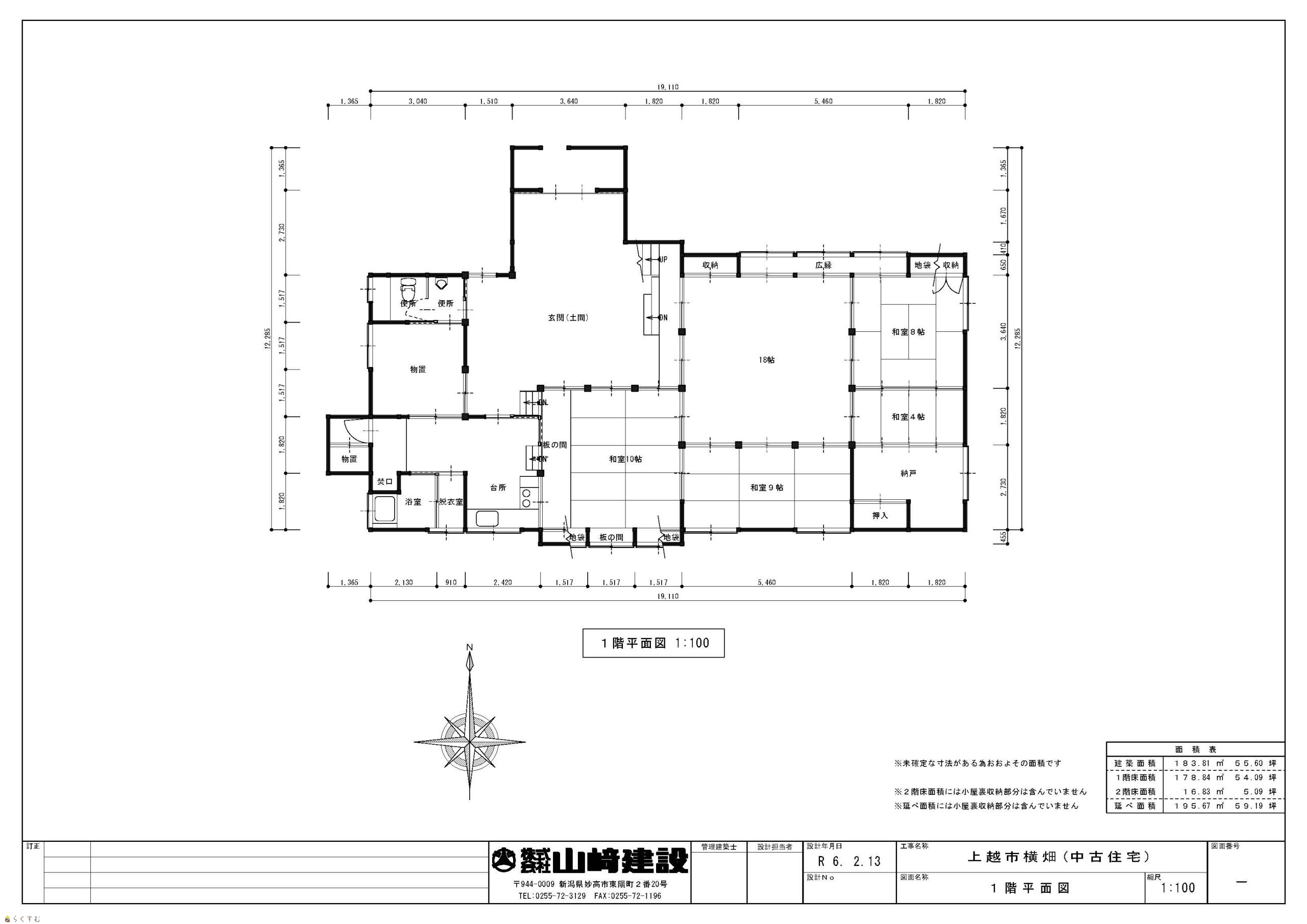
1階間取り
詳細画像


物件概要

物件コード 00259-200064
物件名 横畑売家
交通 駅:日本海ひすいライン 有間川駅から徒歩143分、バス:横畑から徒歩1分
物件所在地 新潟県上越市横畑689
物件種別 中古一戸建て
構造 木造 階建 地上2階建
建ぺい率/容積率 70%/200%
建物面積 1階 178.84㎡/ 2階 16.83㎡/ 計 195.67㎡ /59.19坪
土地面積 743.19㎡ /224.81坪
築年月 不詳
入居(引き渡し)時期 随時入居(引き渡し)可
用途地域 用途の指定のない地域 地目 宅地・田  (現状:宅地・田)
都市計画 市街化調整区域 学校区 谷浜小学校(8,134m)・潮陵中学校(8,062m)
形状 - 道路 北側
私道 - その他の制限 -
  • 横畑売家
    株式会社山崎建設
  • この物件を問い合わせる/無料
  • TEL: 0255-72-3129

物件詳細情報

所在階/階数 - 号室 -
販売価格 3,500,000円 方位
間取り 6DK (和室:4畳、6畳、8畳、9畳、10畳) (洋室:18)
DK7
専有面積 - バルコニー面積 -
その他面積 - 駐車場 -
管理費 - 修繕積立金 -
現況 空家
仲介手数料 330,000円
利用制限 -
設備 田舎暮らし
取引態様 専任
備考 -
取り扱い会社

株式会社山崎建設

新潟県妙高市東陽町2-20

情報登録日 2024/08/05 次回更新予定日 2026/01/13
取引条件有効期限 2024/07/22
  • 横畑売家
    株式会社山崎建設
  • この物件を問い合わせる/無料
  • TEL: 0255-72-3129

この物件の地図・周辺情報・行政情報

この物件の周辺情報・行政情報を詳しく見る
【周辺情報】
物件の近くにあるコンビニや銀行・学校など、アイコン付のマップで詳しく表示できます!
【行政情報】
水道料や下水道料・ガス料金など、暮らしに関係のある情報を表示しています。

担当取扱い店舗情報

取扱い店舗画像
株式会社山崎建設
TEL: 0255-72-3129
所在地: 新潟県妙高市東陽町2-20
交通: えちごトキめき鉄道 新井駅から徒歩25分
営業時間: 8:00〜17:00/定休日:土日祝日
免許番号: 新潟県知事(8)第3467号 この会社の情報を詳しく見る
所属団体名: 公益社団法人新潟県宅地建物取引協会 上越支部
取引態様: 専任
ホームページ: https://www.yamazaki-k.co.jp/concept/