物件掲載企業数:301|賃貸物件:3,261件|売買物件:3,251件|今週の登録物件:245
閲覧中のブラウザ(インターネットエクスプローラー)は非推奨ブラウザです。
物件が正しく表示されなかったり、正しく検索されない場合があります。最新のブラウザ(Google Chrome・Edgeなど)にてご利用お願いいたします。
  

新潟県上越市南高田町9番15号 中古一戸建て 5DK 6,000,000円の物件情報

物件名/所在地 詳細 価格
南高田町売家
新潟県上越市南高田町9番15号
  • 土地面積
    :299.69㎡ /90.65坪
  • 建物面積
    :98.63㎡ /29.83坪
  • 間取り
    :5DK
  • 築年月
    :1972年9月
6,000,000
  • 南高田町売家
    有限会社水野酒店不動産部
  • この物件を問い合わせる/無料
  • TEL: 025-523-0033

物件画像

外観 間取り
物件画像
※画像クリックで拡大表示
外観
物件画像
※画像クリックで拡大表示
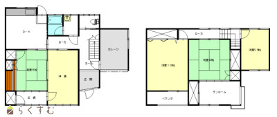
間取り
詳細画像


物件概要

物件コード 00254-200017
物件名 南高田町売家
交通 駅:妙高はねうまライン 南高田駅から徒歩6分、バス:南高田町から徒歩4分
物件所在地 新潟県上越市南高田町9番15号
物件種別 中古一戸建て
構造 木造 階建 地上2階建
建ぺい率/容積率 60%/200%
建物面積 1階 72.72㎡/ 2階 25.91㎡/ 計 98.63㎡ /29.83坪
土地面積 299.69㎡ /90.65坪
築年月 1972年9月(築53年)
入居(引き渡し)時期 相談
用途地域 第1種中高層住居専用地域 地目 宅地  (現状:宅地)
都市計画 市街化区域 学校区 南本町小学校(621m)・城西中学校(399m)
形状 - 道路 東側4m 西側6m
私道 東側位置指定道路 その他の制限 -
  • 南高田町売家
    有限会社水野酒店不動産部
  • この物件を問い合わせる/無料
  • TEL: 025-523-0033

物件詳細情報

所在階/階数 - 号室 -
販売価格 6,000,000円 方位
間取り 5DK (和室:6畳、8畳) (洋室:7.5、5.5、10)
DK7
専有面積 - バルコニー面積 -
その他面積 - 駐車場 -
管理費 - 修繕積立金 -
現況 空家
仲介手数料 264,000円
利用制限 -
設備 閑静な住宅街、駐車2台可能、南向き、温水洗浄便座、都市ガス、下水道
取引態様 一般
備考 -
取り扱い会社

有限会社水野酒店不動産部

新潟県上越市南高田町2番3号

情報登録日 2026/01/15 次回更新予定日 2026/06/06
取引条件有効期限 2026/04/14
  • 南高田町売家
    有限会社水野酒店不動産部
  • この物件を問い合わせる/無料
  • TEL: 025-523-0033

この物件の地図・周辺情報・行政情報

この物件の周辺情報・行政情報を詳しく見る
【周辺情報】
物件の近くにあるコンビニや銀行・学校など、アイコン付のマップで詳しく表示できます!
【行政情報】
水道料や下水道料・ガス料金など、暮らしに関係のある情報を表示しています。

担当取扱い店舗情報

取扱い店舗画像
有限会社水野酒店不動産部
TEL: 025-523-0033
所在地: 新潟県上越市南高田町2番3号
交通:
営業時間: 7:30~18:30/定休日:日曜日
免許番号: 新潟県知事(10)第2838号 この会社の情報を詳しく見る
所属団体名: 公社 新潟県宅地建物取引協会 上越支部
取引態様: 一般