物件掲載企業数:301|賃貸物件:3,261件|売買物件:3,251件|今週の登録物件:246
閲覧中のブラウザ(インターネットエクスプローラー)は非推奨ブラウザです。
物件が正しく表示されなかったり、正しく検索されない場合があります。最新のブラウザ(Google Chrome・Edgeなど)にてご利用お願いいたします。
  

新潟県柏崎市大字下田尻1758番地 中古一戸建て 8LDK 3,500,000円の物件情報

インター近くで、部屋数豊富、広い敷地!!

物件名/所在地 詳細 価格
柏崎市 下田尻 売住宅
新潟県柏崎市大字下田尻1758番地
  • 土地面積
    :1,023.86㎡ /309.71坪
  • 建物面積
    :215.81㎡ /65.28坪
  • 間取り
    :8LDK
  • 築年月
    :1971年6月
3,500,000
  • 柏崎市 下田尻 売住宅
    株式会社 タカノ建築
  • この物件を問い合わせる/無料
  • TEL: 0257-35-6025

物件画像

外観 間取り
物件画像
※画像クリックで拡大表示
外観
物件画像
※画像クリックで拡大表示
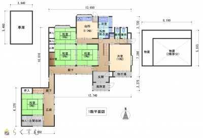
間取り
詳細画像
360度画像
洋室
※下のリンクをクリックすると、上の画像が切り替わります。
洋室     

インターネットエクスプローラーでは360°画像は閲覧できません。それ以外のブラウザでご覧下さい。



物件概要

物件コード 00251-200003
物件名 柏崎市 下田尻 売住宅
交通 駅:信越線 茨目駅から徒歩17分、バス:下田尻西から徒歩2分
物件所在地 新潟県柏崎市大字下田尻1758番地
物件種別 中古一戸建て
構造 木造 階建 地上2階建
建ぺい率/容積率 70%/200%
建物面積 1階 155.63㎡/ 2階 60.18㎡/ 計 215.81㎡ /65.28坪
土地面積 1,023.86㎡ /309.71坪
築年月 1971年6月(築54年)
入居(引き渡し)時期 相談
用途地域 無指定 地目 宅地
都市計画 非線引き都市計画区域 学校区 田尻小学校(1,181m)・東中学校(693m)
形状 - 道路 市道柏崎9-62号線 東側 幅員3.4m 他西側道路
私道 - その他の制限 要セットバック
  • 柏崎市 下田尻 売住宅
    株式会社 タカノ建築
  • この物件を問い合わせる/無料
  • TEL: 0257-35-6025

物件詳細情報

所在階/階数 - 号室 -
販売価格 3,500,000円 方位 指定なし
間取り 8LDK (和室:10畳、8畳、8畳、6畳、8畳、6畳、7畳) (洋室:7、4)
車庫(19.83㎡)、作業所(77.68㎡)
専有面積 - バルコニー面積 -
その他面積 - 駐車場 -
管理費 - 修繕積立金 -
現況 空家
仲介手数料 330,000円
利用制限 -
設備 閑静な住宅街、駐車3台以上可能、南向き、追いだき機能付き、バス1坪以上、都市ガス、上水道、下水道、2世帯向き
取引態様 一般
備考 現況有姿での売買となります。
間取りと現況に相違がある場合、現況を優先します。
売主契約不適合責任免責物件となります。
取り扱い会社

株式会社 タカノ建築

新潟県柏崎市加納2776-1

情報登録日 2026/01/06 次回更新予定日 2026/06/06
取引条件有効期限 2024/12/31
  • 柏崎市 下田尻 売住宅
    株式会社 タカノ建築
  • この物件を問い合わせる/無料
  • TEL: 0257-35-6025

この物件の地図・周辺情報・行政情報

この物件の周辺情報・行政情報を詳しく見る
【周辺情報】
物件の近くにあるコンビニや銀行・学校など、アイコン付のマップで詳しく表示できます!
【行政情報】
水道料や下水道料・ガス料金など、暮らしに関係のある情報を表示しています。

担当取扱い店舗情報

取扱い店舗画像
株式会社 タカノ建築
TEL: 0257-35-6025
所在地: 新潟県柏崎市加納2776-1
交通:
営業時間: 8:00~18:30/定休日:日曜日・祝日
免許番号: 新潟県知事(2)第5462号 この会社の情報を詳しく見る
所属団体名: 公社 新潟県宅地建物取引協会 
取引態様: 一般
ホームページ: https://www.takano-ken.jp/