海岸まで徒歩4分! 道の駅「うみてらす名立」まで徒歩8分! 名立谷浜ICまで車で6分!
| 物件名/所在地 | 詳細 | 価格 | 
|---|---|---|
| 名立区 中古戸建
														 新潟県上越市名立区名立大町1685  | 
							
								
  | 
							1,200,000円 | 
| 外観 | 間取り | 
|---|---|
								![]() ※画像クリックで拡大表示 外観 
							 | 
							
								![]() ※画像クリックで拡大表示 間取り 
							 | 
						
| 詳細画像 | |
| 
								 | 
						|
| セブンイレブン徒歩3分です。ちょっとした買い物にも便利です! | |||
| 物件コード | 00250-200075 | ||
|---|---|---|---|
| 物件名 | 名立区 中古戸建 | ||
| 交通 | 駅:日本海ひすいライン 名立駅から徒歩15分、バス:診療所入口から徒歩5分 | ||
| 物件所在地 | 新潟県上越市名立区名立大町1685 | ||
| 物件種別 | 中古一戸建て | ||
| 構造 | 木造 | 階建 | 地上2階建 | 
| 建ぺい率/容積率 | - | ||
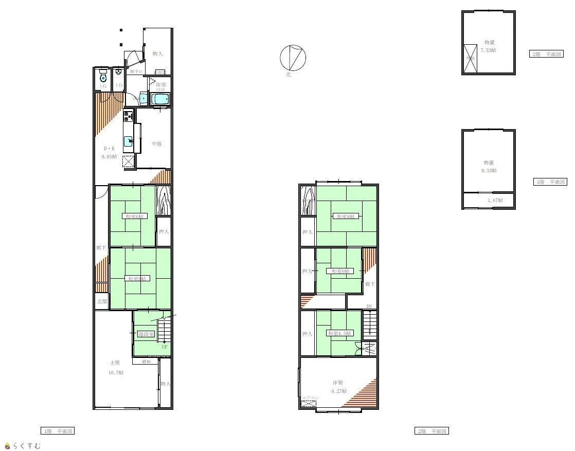
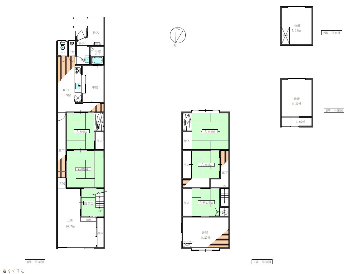
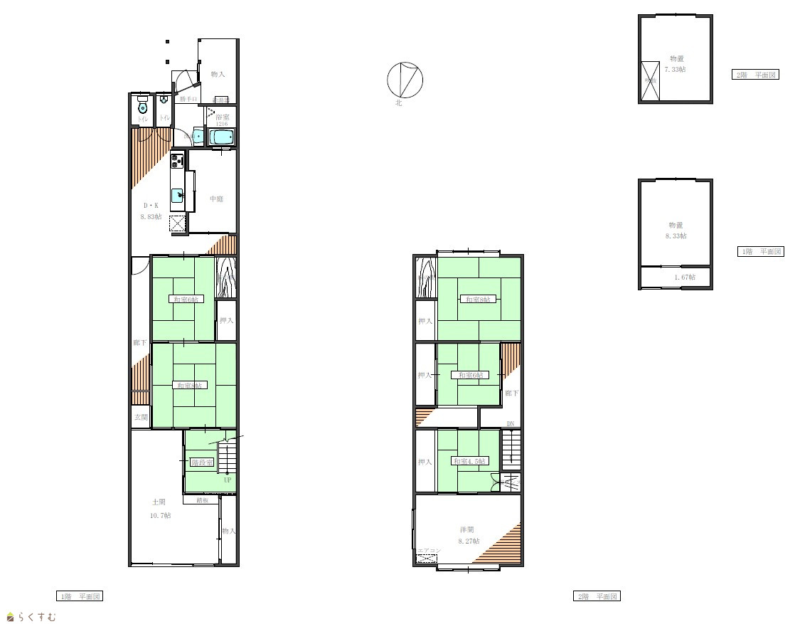
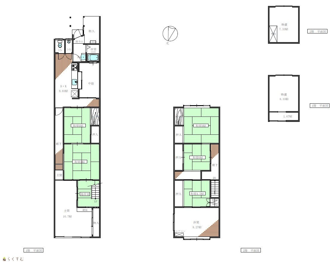
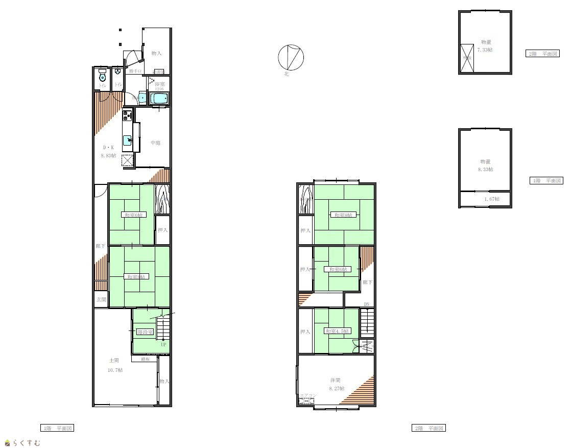
| 建物面積 | 1階 67.76㎡/ 2階 35.53㎡/ 計 103.29㎡ /31.24坪 | ||
| 土地面積 | 24㎡ /7.26坪 | ||
| 築年月 | 1964年8月(築61年) | ||
| 入居(引き渡し)時期 | 随時入居(引き渡し)可 | ||
| 用途地域 | 無指定 | 地目 | 雑種他 (現状:宅地) | 
| 都市計画 | 都市計画区域外 | 学校区 | 宝田小学校(2,691m)・名立中学校(943m) | 
| 形状 | 間口 4.6m × 奥行 30m | 道路 | 上越市道 幅員5.8m 除雪道路 | 
| 私道 | - | その他の制限 | - | 
| 所在階/階数 | - | 号室 | - | 
|---|---|---|---|
| 販売価格 | 1,200,000円 | 方位 | 南 | 
| 間取り | 
																	6DK (和室:6畳、8畳、8畳、6畳、4.5畳) (洋室:8.2) 居間8帖  | 
						||
| 専有面積 | - | バルコニー面積 | - | 
| その他面積 | 28㎡ /8.47坪 2階建納屋(未登記) | 駐車場 | - | 
| 管理費 | - | 修繕積立金 | - | 
| 現況 | 空家 | ||
| 仲介手数料 | 330,000円 | ||
| 借地料(年) | 
									22,750円
									 年間料金(年末一括払い)  | 
														||
| 利用制限 | - | ||
| 設備 | 追いだき機能付き、温水洗浄便座、エアコンあり、LPG、上水道、下水道 | ||
| 取引態様 | 専任 | ||
| 備考 | ・1階玄関部分土間に駐車1台可能。 また近所に貸し駐車場有(20,000円/年間) ・建物部分の一部が借地(106.99㎡)につき、借地料22,750円(年間) ・テレビは共同アンテナを利用し、利用料3,000円(年間)  | 
						||
| 取り扱い会社 | 
								 越乃エステート株式会社 新潟県上越市春日野1丁目7番4号オフィスYAMADA-B号  | 
						||
| 情報登録日 | 2025/11/01 | 次回更新予定日 | 2025/11/18 | 
| 取引条件有効期限 | 2026/02/01 | ||
| 
																		セブンイレブン 上越名立店(コンビニ)まで230m 上越信用金庫 名立支店(銀行)まで580m  | 
																
																		名立郵便局(郵便局)まで250m | 
															
※カメラのアイコンがある場合は、マウスをポイントするとその施設の画像がご覧いただけます。
						| TEL: | 025-520-6623 | |
|---|---|---|
| 所在地: | 新潟県上越市春日野1丁目7番4号オフィスYAMADA-B号 | |
| 交通: | 春日山駅より徒歩8分 | |
| 営業時間: | 9:00~17:00/定休日:水・日 | |
| 免許番号: | 新潟県知事(1)第5592号 | 
										
											 | 
								
| 所属団体名: | 公益社団法人 全日本不動産協会 新潟県本部 | |
| 取引態様: | 専任 | |
| ホームページ: | https://koshino-e.com | |