物件掲載企業数:297|賃貸物件:3,610件|売買物件:3,333件|今週の登録物件:271
閲覧中のブラウザ(インターネットエクスプローラー)は非推奨ブラウザです。
物件が正しく表示されなかったり、正しく検索されない場合があります。最新のブラウザ(Google Chrome・Edgeなど)にてご利用お願いいたします。
  

新潟県長岡市大島新町1丁目甲1479付近 新築一戸建て 3LDK 24,900,000円の物件情報

\暮らしやすさを追求した住み心地の良い住宅/■徒歩1分の土手から長岡花火を楽しめます■大型商業施設まで車で5分圏内で利便性■保育園・小学校が徒歩10分圏内

物件名/所在地 詳細 価格
(新築住宅)長岡市大島新町
新潟県長岡市大島新町1丁目甲1479付近
  • 土地面積
    :165.28㎡ /49.99坪
  • 建物面積
    :87.77㎡ /26.55坪
  • 間取り
    :3LDK
  • 築年月
    :2025年3月
24,900,000
  • (新築住宅)長岡市大島新町
    新潟土地建物販売センター 株式会社
  • この物件を問い合わせる/無料
  • TEL: 0258-89-8245

物件画像

外観 間取り
物件画像
※画像クリックで拡大表示
シンプルでナチュラルテイストの外観
物件画像
※画像クリックで拡大表示
水回りが一直線の家事ラク動線
詳細画像


物件概要

リバーサイド千秋やイオン長岡店まで便利な立地!週末のお買い物や仕事終わりにフラっとお出かけを楽しめます。ぜひ周辺環境を含め現地をご確認ください!詳細はお気軽にお問い合わせください(^^)/
物件コード 00239-200477
物件名 (新築住宅)長岡市大島新町
交通 バス:長生橋西詰から徒歩5分
物件所在地 新潟県長岡市大島新町1丁目甲1479付近
物件種別 新築一戸建て
構造 木造 階建 地上2階建
建ぺい率/容積率 60%/200%
建物面積 計 87.77㎡ /26.55坪
土地面積 165.28㎡ /49.99坪
築年月 2025年3月(築10ヶ月)
入居(引き渡し)時期 相談
用途地域 第1種中高層住居専用地域 地目 宅地
都市計画 市街化区域 学校区 大島小学校(500m)・大島中学校(1,200m)
形状 - 道路 北側5.7m公道
私道 - その他の制限 法22条指定区域
  • (新築住宅)長岡市大島新町
    新潟土地建物販売センター 株式会社
  • この物件を問い合わせる/無料
  • TEL: 0258-89-8245

物件詳細情報

所在階/階数 - 号室 -
販売価格 24,900,000円 方位
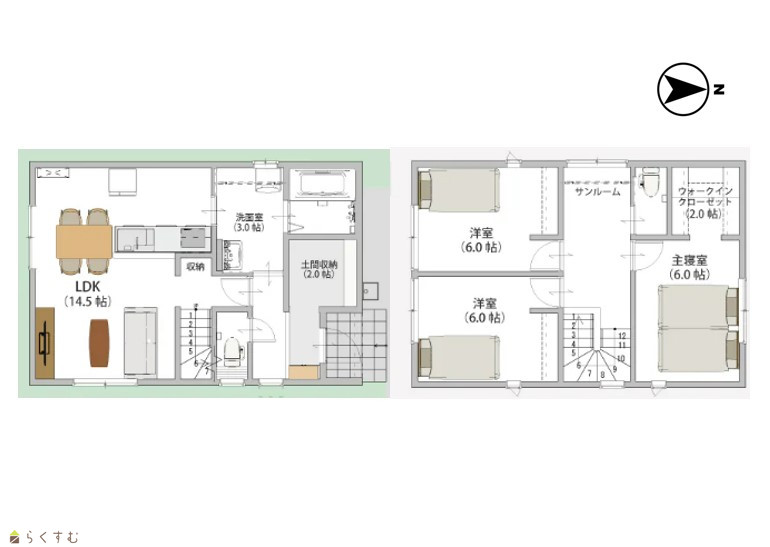
間取り 3LDK (洋室:6、6、6)
LDK14.5
土間収納2.0帖、WIC2.0帖、サンルーム
専有面積 - バルコニー面積 -
その他面積 - 駐車場 -
管理費 - 修繕積立金 -
現況 空家
仲介手数料 887,700円
利用制限 -
設備 整形地、日当り良好、閑静な住宅街、BELS/省エネ基準適合認定建物、全室フローリング、駐車場2台以上、南向き、庭あり、TVインターホン、複層ガラス、システムキッチン、カウンターキッチン、IHクッキングヒーター、追いだき機能付き、バス1坪以上、温水洗浄便座、シャワー付き洗面台、エアコン、24時間換気システム、オール電化、省エネ給湯、高気密高断熱住宅、上水道、下水道、電気、ウォークインクローゼット、全居室収納あり、シューズインクローゼット、照明器具付き、バリアフリー
取引態様 一般
備考 【教育】
大島小学校 約500m 徒歩約7分
大島中学校 約1200m 徒歩約15分

【交通】
越後交通バス 長生橋西詰 徒歩約5分

【備考】
※町会費:9,600円/年
※消雪組合加入金:200,000円/一括
※消雪組合費:10,000/年

-物件情報-
■カーテン・LDKエアコン付きで初期費用が抑えられます
■各居室クローゼット、ウォークインクローゼットなど収納豊富
■サンルーム完備!天候に左右されずお洗濯可能
■大容量の土間収納でアウトドア用品もスッキリ片付きます
■前面道路に消雪パイプがあるので冬も安心
■火を使わない安心安全なオール電化
取り扱い会社

新潟土地建物販売センター 株式会社

新潟県長岡市台町1-7-331階

情報登録日 2025/10/03 次回更新予定日 2026/01/13
取引条件有効期限 2026/12/31
  • (新築住宅)長岡市大島新町
    新潟土地建物販売センター 株式会社
  • この物件を問い合わせる/無料
  • TEL: 0258-89-8245

この物件の地図・周辺情報・行政情報

この物件の周辺情報・行政情報を詳しく見る
【周辺情報】
物件の近くにあるコンビニや銀行・学校など、アイコン付のマップで詳しく表示できます!
【行政情報】
水道料や下水道料・ガス料金など、暮らしに関係のある情報を表示しています。

担当取扱い店舗情報

取扱い店舗画像
新潟土地建物販売センター 株式会社
TEL: 0258-89-8245
所在地: 新潟県長岡市台町1-7-331階
交通: 長岡駅
営業時間: 9:00~18:00/定休日:なし
免許番号: 新潟県知事(3)第5151号 この会社の情報を詳しく見る
所属団体名: 公社 新潟県宅地建物取引協会 新潟支部
取引態様: 一般
ホームページ: https://niigata-tochitate.jp/