【利回り12%!土地積算98%のリノベーション戸建】◆設備を一新したファミリー物件◆国道8号線至近、柏崎駅まで車約4分で利便性良好◆賃貸保証会社契約済で安心
| 物件名/所在地 | 詳細 | 価格
							 表面利回り  | 
						
|---|---|---|
| 柏崎市関町 収益リノベーション戸建て
														 新潟県柏崎市関町6-5アンジュ枇杷島  | 
							
								
  | 
							
															6,200,000円
																						 12% (満室想定時)  | 
						
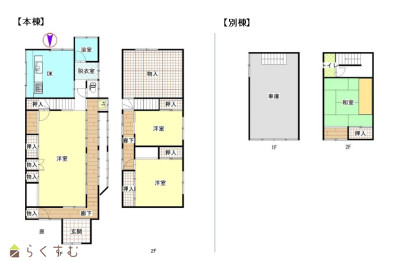
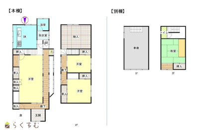
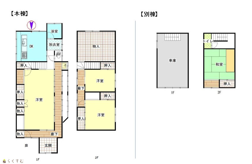
| 外観 | 間取り | 
|---|---|
								![]() ※画像クリックで拡大表示 内装リフォーム済!車庫付きの収益戸建です 
							 | 
							
								![]() ※画像クリックで拡大表示 本棟+別棟 
							 | 
						
| 詳細画像 | |
| 
								 | 
						|
| 物件コード | 00239-200440 | ||
|---|---|---|---|
| 物件名 | 柏崎市関町 収益リノベーション戸建て | ||
| 交通 | 駅:越後線 柏崎駅から徒歩13分、バス:宮場町から徒歩5分 | ||
| 物件所在地 | 新潟県柏崎市関町6-5アンジュ枇杷島 | ||
| 物件種別 | 投資物件・その他 | ||
| 物件区分 | その他 | ||
| 構造 | 木造 | 階建 | 地上2階建 | 
| 建ぺい率/容積率 | 60%/200% | ||
| 建物面積 | 1階 64.19㎡/ 2階 37.26㎡/ 計 101.45㎡ /30.68坪 | ||
| 土地面積 | 261.01㎡ /78.95坪 | ||
| 築年月 | 1976年10月(築49年) | ||
| 入居(引き渡し)時期 | 随時入居(引き渡し)可 | ||
| 用途地域 | 第1種低層住居専用地域 | 地目 | 宅地 | 
| 都市計画 | 非線引き都市計画区域 | 学校区 | 枇杷島小学校(220m)・鏡が沖中学校(1,200m) | 
| 形状 | - | 道路 | 北側3.8m 42条2項道路 | 
| 私道 | - | その他の制限 | 建築基準法22条区域内/斜線制限(道路・隣地) /日影制限 | 
| 所在階/階数 | - | 号室 | - | 
|---|---|---|---|
| 販売価格 | 6,200,000円 | 方位 | - | 
| 表面利回り(満室想定時) | 12% | 満室想定年収 | 744,000円 (想定月収: 62,000円 ) | 
| 現行利回り | 12% | 現行年間年収 | 744,000円 | 
| 住戸数 | - | ||
| 間取り | 3DKS | ||
| 専有面積 | - | バルコニー面積 | - | 
| その他面積 | - | 駐車場 | 2~3台 | 
| 管理費 | 6,000円 | 修繕積立金 | - | 
| 現況 | 賃貸中 | ||
| 仲介手数料 | 330,000円 | ||
| 利用制限 | ペット:可 | ||
| 設備 | 駐車場(近隣含む)、公営水道、都市ガス、下水道 | ||
| 取引態様 | 一般 | ||
| 備考 | ※オーナーチェンジ物件※ ・現在入居中のため現地見学は不可 ■周辺のアパートは満室!賃貸需要の高いエリア ■倉庫(車庫+1室)付き ■固定資産税路線価:23,700円 ■土地評価額:6,075,994円 ■建物(本棟)評価額:1,466、288円 ■建物(車庫)評価額:271,820円 【売買条件】 ・境界非明示 ・車庫は未登記のまま引渡し 【2024年2月 下記修繕・新設】 ・お湯配管 ・追い炊き配管 ・給湯器 ・温水洗浄暖房便座 ・システムキッチン ・独立洗面台 ・浴槽、鏡、混合水栓、換気扇、シャワーヘッド ・風呂バスナフローレ ・照明器具 ・エアコン3基 ・モニター付きインターホン  | 
						||
| 取り扱い会社 | 
								 新潟土地建物販売センター 株式会社 新潟県長岡市台町1-7-331階  | 
						||
| 情報登録日 | 2024/11/06 | 次回更新予定日 | 2025/11/18 | 
| 取引条件有効期限 | 2025/12/31 | ||
| 
																		セブン-イレブン 柏崎穂波町店(コンビニ)まで770m ほなみ薬局(ドラッグストア)まで480m  | 
																
																		柏崎枇杷島郵便局(郵便局)まで420m | 
															
※カメラのアイコンがある場合は、マウスをポイントするとその施設の画像がご覧いただけます。
						| TEL: | 0258-89-8245 | |
|---|---|---|
| 所在地: | 新潟県長岡市台町1-7-331階 | |
| 交通: | 長岡駅 | |
| 営業時間: | 9:00~18:00/定休日:なし | |
| 免許番号: | 新潟県知事(3)第5151号 | 
										
											 | 
								
| 所属団体名: | 公社 新潟県宅地建物取引協会 新潟支部 | |
| 取引態様: | 一般 | |
| ホームページ: | https://niigata-tochitate.jp/ | |