物件掲載企業数:295|賃貸物件:3,620件|売買物件:3,318件|今週の登録物件:226
閲覧中のブラウザ(インターネットエクスプローラー)は非推奨ブラウザです。
物件が正しく表示されなかったり、正しく検索されない場合があります。最新のブラウザ(Google Chrome・Edgeなど)にてご利用お願いいたします。
  

新潟県長岡市陽光台4丁目1379-130付近 新築一戸建て 3LDK 25,800,000円の物件情報

【長岡市陽光台】新価格2580万円! ◆空間を有効活用できる3層のスキップフロアのある家♪ ◆南向きの片流れ屋根には太陽光パネルを搭載! ◆嬉しいエアコン3台&カップボード&カーテン付き♪ ◆2台分のインナーガレージを完備!

物件名/所在地 詳細 価格
(新築住宅)長岡市陽光台
新潟県長岡市陽光台4丁目1379-130付近
  • 土地面積
    :205.22㎡ /62.07坪
  • 建物面積
    :115.09㎡ /34.81坪
  • 間取り
    :3LDK
  • 築年月
    :2024年4月
25,800,000
  • (新築住宅)長岡市陽光台
    新潟土地建物販売センター 株式会社
  • この物件を問い合わせる/無料
  • TEL: 0258-89-8245

物件画像

外観 間取り
物件画像
※画像クリックで拡大表示
片流れ屋根が南向きに面した太陽光パネル搭載の家。
物件画像
※画像クリックで拡大表示
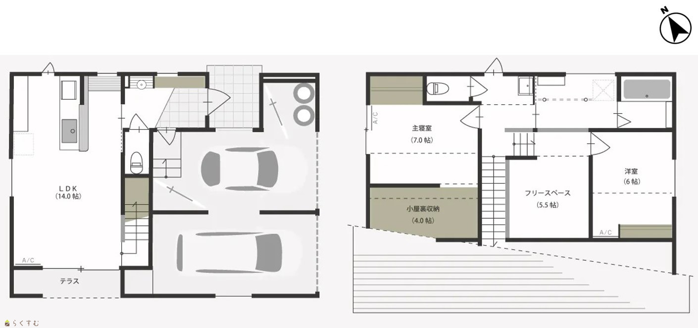
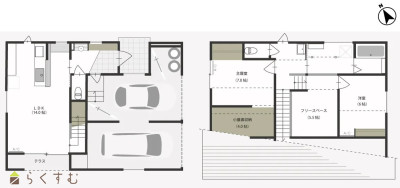
3層のスキップフロアになった間取りです。
詳細画像


物件概要

~物件PR~ ・使い方いろいろなフリースペースをご用意♪ ・たっぷり収納可能な小屋裏収納あり ・前面道路は消雪パイプ有り!冬場も安心♪
物件コード 00239-200330
物件名 (新築住宅)長岡市陽光台
交通 駅:信越線 来迎寺駅から徒歩98分、バス:陽光台4丁目から徒歩4分
物件所在地 新潟県長岡市陽光台4丁目1379-130付近
物件種別 新築一戸建て
構造 木造 階建 地上2階建
建ぺい率/容積率 60%/200%
建物面積 計 115.09㎡ /34.81坪
土地面積 205.22㎡ /62.07坪
築年月 2024年4月(築1年)
入居(引き渡し)時期 相談
用途地域 第1種中高層住居専用地域 地目 宅地
都市計画 市街化区域 学校区 青葉台小学校(1,600m)・青葉台中学校(2,600m)
形状 - 道路 東側6m市道
私道 - その他の制限 -
  • (新築住宅)長岡市陽光台
    新潟土地建物販売センター 株式会社
  • この物件を問い合わせる/無料
  • TEL: 0258-89-8245

物件詳細情報

所在階/階数 - 号室 -
販売価格 25,800,000円 方位 南西
間取り 3LDK (洋室:7、6、5.5)
LDK14
小屋裏収納4帖
専有面積 - バルコニー面積 -
その他面積 - 駐車場 -
管理費 - 修繕積立金 -
現況 -
仲介手数料 917,400円
利用制限 -
設備 高台に立地、整形地、前面道路6m以上、日当り良好、閑静な住宅街、全室フローリング、駐車場2台以上、庭あり、カウンターキッチン、IHクッキングヒーター、追いだき機能付き、バス1坪以上、温水洗浄便座、シャワー付き洗面台、エアコン、太陽光発電システム、ウッドデッキ・テラス、上水道、下水道、電気、シューズBOX、バリアフリー
取引態様 一般
備考 【教育機関】
青葉台小学校 約1600m 徒歩約20分
青葉台中学校 約2600m 徒歩約33分

【交通機関】
JR信越本線 来迎寺駅 車約15分
越後交通バス 陽光台4丁目 徒歩約4分
取り扱い会社

新潟土地建物販売センター 株式会社

新潟県長岡市台町1-7-331階

情報登録日 2025/09/03 次回更新予定日 2025/11/18
取引条件有効期限 2026/12/31
  • (新築住宅)長岡市陽光台
    新潟土地建物販売センター 株式会社
  • この物件を問い合わせる/無料
  • TEL: 0258-89-8245

この物件の地図・周辺情報・行政情報

この物件の周辺情報・行政情報を詳しく見る
【周辺情報】
物件の近くにあるコンビニや銀行・学校など、アイコン付のマップで詳しく表示できます!
【行政情報】
水道料や下水道料・ガス料金など、暮らしに関係のある情報を表示しています。
業務スーパー 長岡ニュータウン店(スーパー)まで2230m
ローソン 長岡宮本店(コンビニ)まで3000m
ウエルシア 長岡関原店(ドラッグストア)まで5000m

※カメラのアイコンがある場合は、マウスをポイントするとその施設の画像がご覧いただけます。


担当取扱い店舗情報

取扱い店舗画像
新潟土地建物販売センター 株式会社
TEL: 0258-89-8245
所在地: 新潟県長岡市台町1-7-331階
交通: 長岡駅
営業時間: 9:00~18:00/定休日:なし
免許番号: 新潟県知事(3)第5151号 この会社の情報を詳しく見る
所属団体名: 公社 新潟県宅地建物取引協会 新潟支部
取引態様: 一般
ホームページ: https://niigata-tochitate.jp/