物件掲載企業数:295|賃貸物件:3,619件|売買物件:3,318件|今週の登録物件:227
閲覧中のブラウザ(インターネットエクスプローラー)は非推奨ブラウザです。
物件が正しく表示されなかったり、正しく検索されない場合があります。最新のブラウザ(Google Chrome・Edgeなど)にてご利用お願いいたします。
  

新潟県上越市西城町2丁目4-24 中古一戸建て 5DK 2,000,000円の物件情報

大手町小学校となり!、高田公園徒歩約5分♪

物件名/所在地 詳細 価格
西城町中古住宅
新潟県上越市西城町2丁目4-24
  • 土地面積
    :154.8㎡ /46.82坪
  • 建物面積
    :108.73㎡ /32.89坪
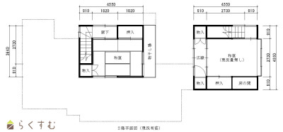
  • 間取り
    :5DK
  • 築年月
    :1959年11月
2,000,000
  • 西城町中古住宅
    日成商事株式会社
  • この物件を問い合わせる/無料
  • TEL: 025-524-6441

物件画像

外観 間取り
物件画像
※画像クリックで拡大表示
駐車場有
物件画像
※画像クリックで拡大表示
1F平面図
詳細画像


物件概要

物件コード 00238-200025
物件名 西城町中古住宅
交通 駅:妙高はねうまライン 高田駅から徒歩15分
物件所在地 新潟県上越市西城町2丁目4-24
物件種別 中古一戸建て
構造 木造 階建 地上2階建
建ぺい率/容積率 50%/80%
建物面積 1階 79.5㎡/ 2階 29.23㎡/ 計 108.73㎡ /32.89坪
土地面積 154.8㎡ /46.82坪
築年月 1959年11月(築66年)
入居(引き渡し)時期 随時入居(引き渡し)可
用途地域 第1種低層住居専用地域 地目 宅地
都市計画 市街化区域 学校区 大町小学校(266m)・城東中学校(1,235m)
形状 - 道路 西側約4M道路
私道 - その他の制限 -
  • 西城町中古住宅
    日成商事株式会社
  • この物件を問い合わせる/無料
  • TEL: 025-524-6441

物件詳細情報

所在階/階数 - 号室 -
販売価格 2,000,000円 方位 西
間取り 5DK
専有面積 - バルコニー面積 -
その他面積 - 駐車場 -
管理費 - 修繕積立金 -
現況 空家
仲介手数料 330,000円
利用制限 -
設備 都市ガス、浄化槽
取引態様 専属専任
備考 青田川沿いの閑静な住宅地
取り扱い会社

日成商事株式会社

新潟県上越市木田1-8-11

情報登録日 2025/10/14 次回更新予定日 2025/11/18
取引条件有効期限 2025/11/21
  • 西城町中古住宅
    日成商事株式会社
  • この物件を問い合わせる/無料
  • TEL: 025-524-6441

この物件の地図・周辺情報・行政情報

この物件の周辺情報・行政情報を詳しく見る
【周辺情報】
物件の近くにあるコンビニや銀行・学校など、アイコン付のマップで詳しく表示できます!
【行政情報】
水道料や下水道料・ガス料金など、暮らしに関係のある情報を表示しています。

担当取扱い店舗情報

取扱い店舗画像
日成商事株式会社
TEL: 025-524-6441
所在地: 新潟県上越市木田1-8-11
交通: 妙高はねうまライン春日山駅徒歩10分
営業時間: 平日9:00~18:30 土9:00~18:00/定休日:日曜、祝日
免許番号: 新潟県知事(15)第861号 この会社の情報を詳しく見る
所属団体名: 公社 新潟県宅地建物取引協会 上越支部
取引態様: 専属専任
ホームページ: http://www.nissey.jp/