物件掲載企業数:301|賃貸物件:3,268件|売買物件:3,263件|今週の登録物件:293
閲覧中のブラウザ(インターネットエクスプローラー)は非推奨ブラウザです。
物件が正しく表示されなかったり、正しく検索されない場合があります。最新のブラウザ(Google Chrome・Edgeなど)にてご利用お願いいたします。
  

新潟県上越市三和区田730 中古一戸建て 8DK 3,000,000円の物件情報

投資用物件、オーナーチェンジです。

物件名/所在地 詳細 価格
三和区田売家
新潟県上越市三和区田730
  • 土地面積
    :1,304.97㎡ /394.75坪
  • 建物面積
    :242.14㎡ /73.24坪
  • 間取り
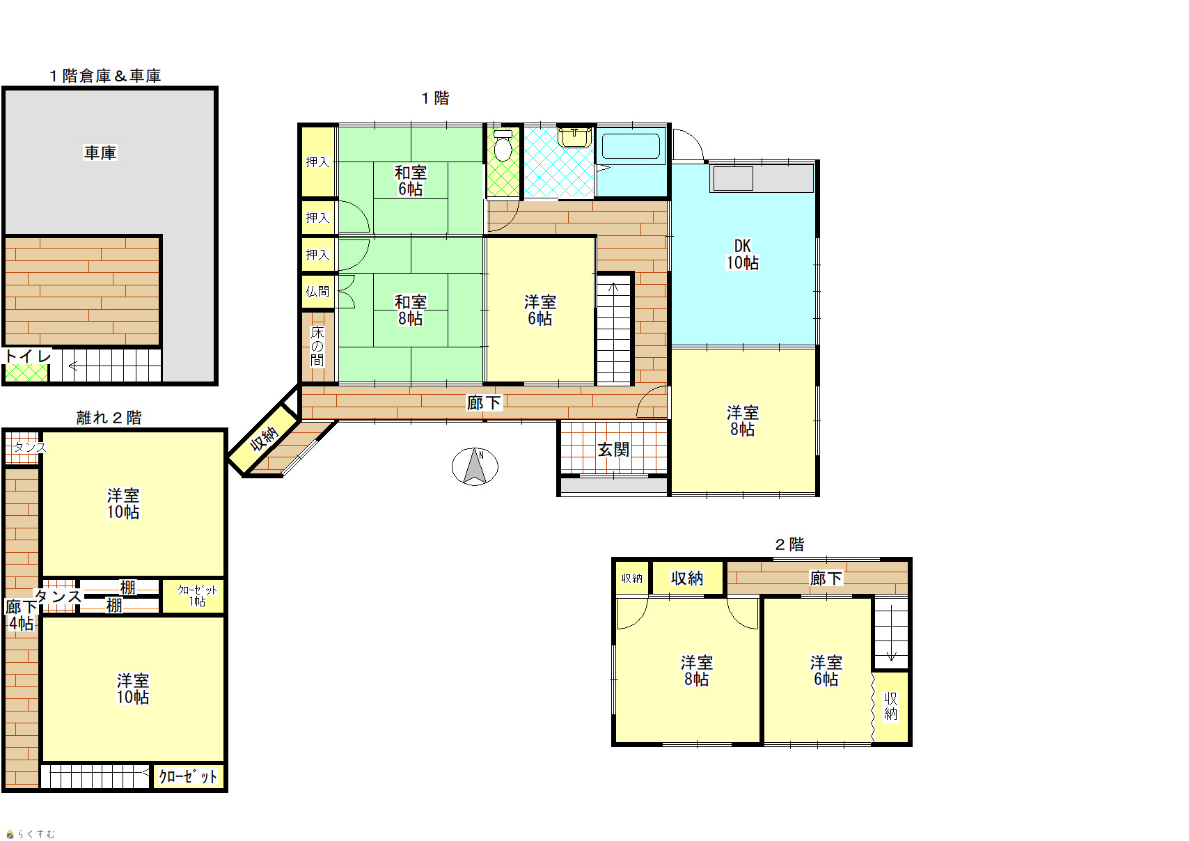
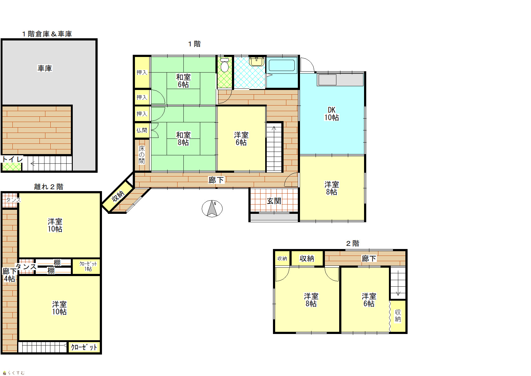
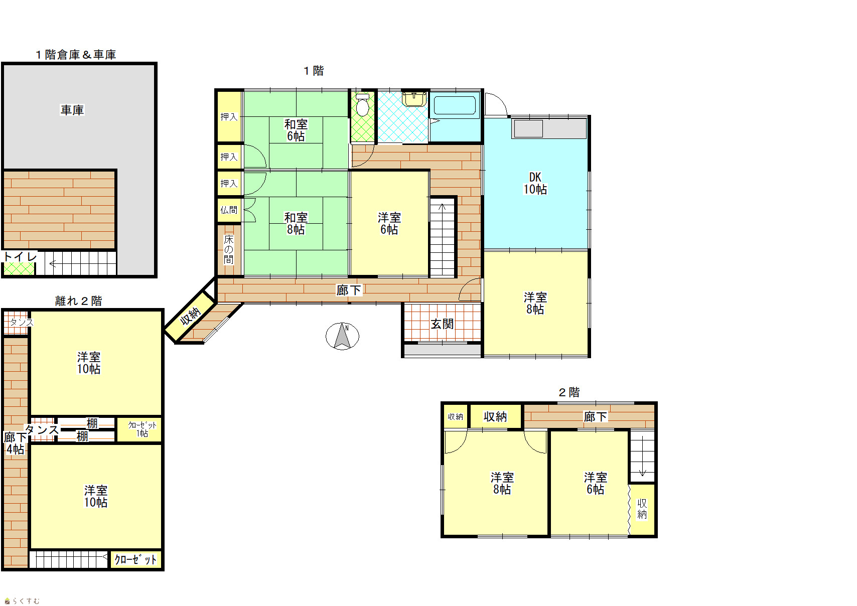
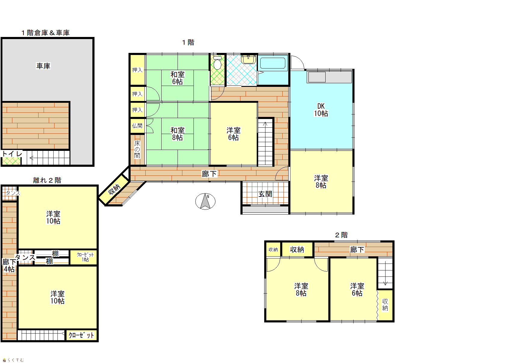
    :8DK
  • 築年月
    :1976年11月
3,000,000
  • 三和区田売家
    有限会社 春日土地建物
  • この物件を問い合わせる/無料
  • TEL: 0120-178-153

物件画像

外観 間取り
物件画像
※画像クリックで拡大表示
母屋
物件画像
※画像クリックで拡大表示
間取り
詳細画像


物件概要

賃借人は母屋のみ、他倉庫や離れの部屋や果樹園は、利用可能です。
物件コード 00237-200089
物件名 三和区田売家
交通 駅:妙高はねうまライン 高田駅から徒歩128分
物件所在地 新潟県上越市三和区田730
物件種別 中古一戸建て
構造 木造 階建 地上2階建
建ぺい率/容積率 -
建物面積 1階 159.33㎡/ 2階 82.81㎡/ 計 242.14㎡ /73.24坪
土地面積 1,304.97㎡ /394.75坪
築年月 1976年11月(築49年)
入居(引き渡し)時期 現在賃貸中原則入居はできません
用途地域 用途の指定のない地域 地目 宅地
都市計画 都市計画区域外 学校区 三和小学校(493m)・三和中学校(2,978m)
形状 - 道路 西側公道8m、北側公道2m
私道 - その他の制限 -
  • 三和区田売家
    有限会社 春日土地建物
  • この物件を問い合わせる/無料
  • TEL: 0120-178-153

物件詳細情報

所在階/階数 - 号室 -
販売価格 3,000,000円 方位 北西
間取り 8DK (和室:6畳、8畳) (洋室:8、6、8、6、10、10)
現在入居している賃貸範囲は、母屋のみです。
専有面積 - バルコニー面積 -
その他面積 - 駐車場 -
管理費 - 修繕積立金 -
現況 賃貸中
仲介手数料 330,000円
利用制限 -
設備 角地、追いだき機能付き、温水洗浄便座、エアコンあり、LPG、上水道、下水道、CS、内装リフォーム済み、2世帯向き、田舎暮らし
取引態様 一般
備考 敷地内は、母屋を賃貸、2階建の作業小屋、廊下で繋がっている別棟2階建ての倉庫、果樹園と配置されています。
取り扱い会社

有限会社 春日土地建物

新潟県上越市本町4-2-19

情報登録日 2025/06/06 次回更新予定日 2026/06/05
取引条件有効期限 2025/07/31
  • 三和区田売家
    有限会社 春日土地建物
  • この物件を問い合わせる/無料
  • TEL: 0120-178-153

この物件の地図・周辺情報・行政情報

この物件の周辺情報・行政情報を詳しく見る
【周辺情報】
物件の近くにあるコンビニや銀行・学校など、アイコン付のマップで詳しく表示できます!
【行政情報】
水道料や下水道料・ガス料金など、暮らしに関係のある情報を表示しています。

担当取扱い店舗情報

取扱い店舗画像
有限会社 春日土地建物
TEL: 0120-178-153
所在地: 新潟県上越市本町4-2-19
交通: 妙高はねうまライン高田駅
営業時間: 10:00~18:00/定休日:水・第一第三日曜日,祝日
免許番号: 新潟県知事(10)第2950号 この会社の情報を詳しく見る
所属団体名: 公社 新潟県宅地建物取引協会 上越支部
取引態様: 一般
ホームページ: https://apaman-jp.com/