物件掲載企業数:299|賃貸物件:3,597件|売買物件:3,321件|今週の登録物件:300
閲覧中のブラウザ(インターネットエクスプローラー)は非推奨ブラウザです。
物件が正しく表示されなかったり、正しく検索されない場合があります。最新のブラウザ(Google Chrome・Edgeなど)にてご利用お願いいたします。
  

新潟県長岡市下々条町2484-9 中古一戸建て 3LDK 22,000,000円の物件情報

黒条市小学校の築浅のログハウスが出ました(^^♪エアコン3台+薪ストーブ完備・オール無垢材で温かみのあるお家です(*‘∀‘)前面道路融雪完備で冬場の雪も安心です(*^^*)

物件名/所在地 詳細 価格
長岡市下々条町【中古住宅】
新潟県長岡市下々条町2484-9
  • 土地面積
    :222.98㎡ /67.45坪
  • 建物面積
    :105.62㎡ /31.95坪
  • 間取り
    :3LDK
  • 築年月
    :2014年10月
22,000,000
  • 長岡市下々条町【中古住宅】
    合同会社 さくら中央不動産
  • この物件を問い合わせる/無料
  • TEL: 0258-89-8842

物件画像

外観 間取り
物件画像
※画像クリックで拡大表示
外観
物件画像
※画像クリックで拡大表示
間取り
詳細画像


物件概要

お気軽にお問合せください(^^)/
物件コード 00232-200131
物件名 長岡市下々条町【中古住宅】
交通 駅:信越線 押切駅から徒歩28分、バス:大野から徒歩2分
物件所在地 新潟県長岡市下々条町2484-9
物件種別 中古一戸建て
構造 木造 階建 地上2階建
建ぺい率/容積率 60%/200%
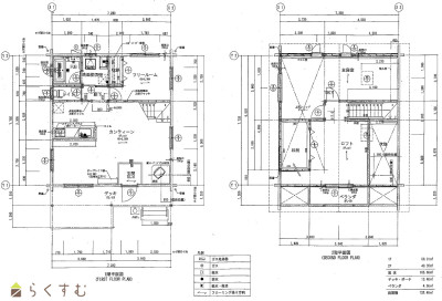
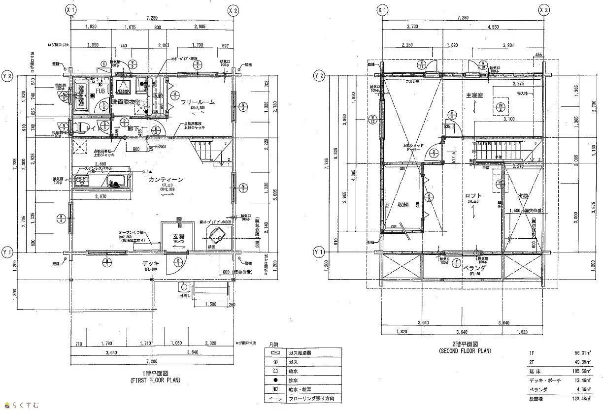
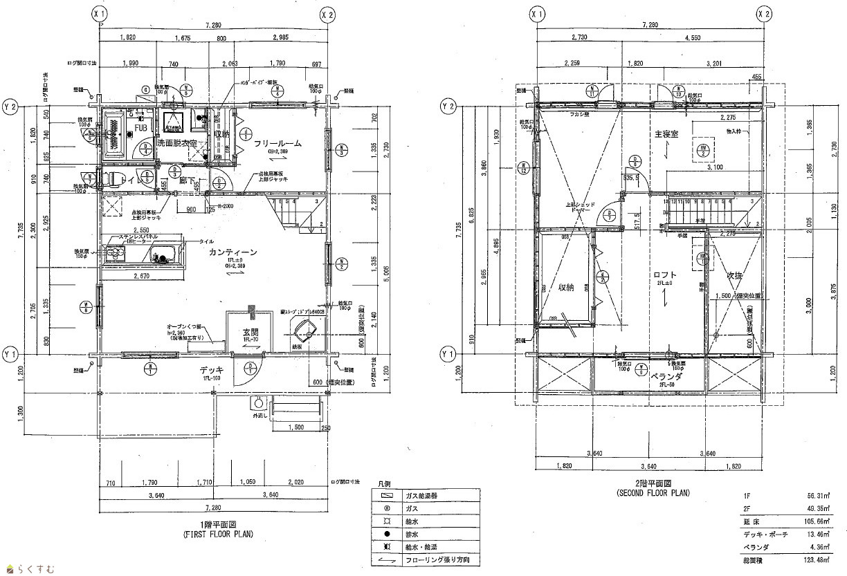
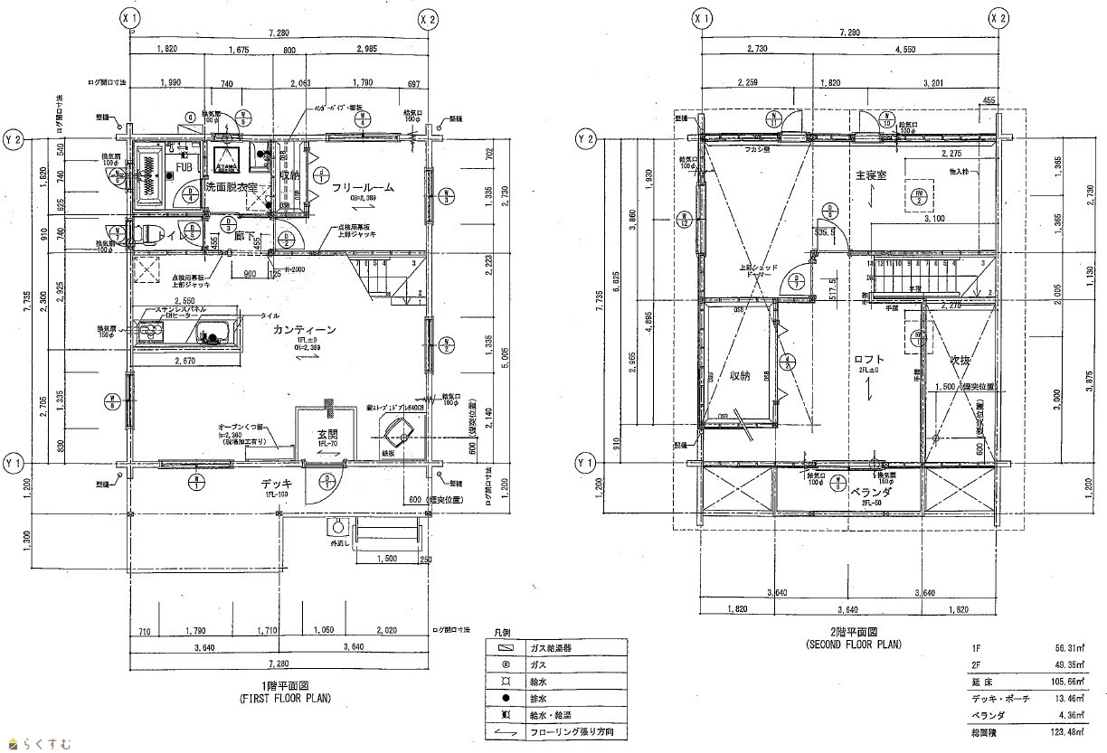
建物面積 1階 56.34㎡/ 2階 49.28㎡/ 計 105.62㎡ /31.95坪
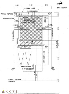
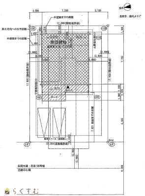
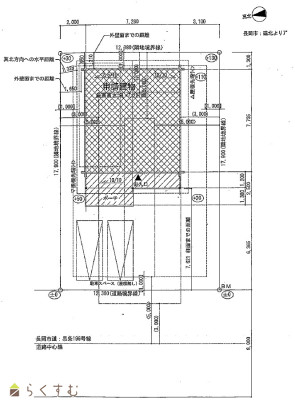
土地面積 222.98㎡ /67.45坪
築年月 2014年10月(築11年)
入居(引き渡し)時期 随時入居(引き渡し)可
用途地域 第2種中高層住居専用地域 地目 宅地
都市計画 - 学校区 黒条小学校(667m)・堤岡中学校(249m)
形状 間口 12.38m × 奥行 17.99m 道路 長岡市道(8.1m)
私道 - その他の制限 -
  • 長岡市下々条町【中古住宅】
    合同会社 さくら中央不動産
  • この物件を問い合わせる/無料
  • TEL: 0258-89-8842

物件詳細情報

所在階/階数 - 号室 -
販売価格 22,000,000円 方位 西
間取り 3LDK (洋室:5.38、13.91、9.55)
LDK20.91
専有面積 - バルコニー面積 -
その他面積 - 駐車場 -
管理費 - 修繕積立金 -
現況 空家
仲介手数料 792,000円
利用制限 -
設備 閑静な住宅街、スーパー近く、LDK15帖以上、全室フローリング、築15年以内、駐車3台以上可能、TVインターホン、複層ガラス、システムキッチン、IHクッキングヒーター、3口コンロ、追いだき機能付き、バス1坪以上、温水洗浄便座、シャワー付き洗面台、エアコンあり、24時間換気システム、上水道、下水道、ウォークインクローゼット、全居室収納あり、床下収納、即引き渡し可能
取引態様 一般
備考 ※契約不適合免責
※残置物処分後お引渡し
取り扱い会社

合同会社 さくら中央不動産

新潟県見附市今町4-8-21

情報登録日 2025/10/07 次回更新予定日 2025/10/24
取引条件有効期限 2025/12/31
  • 長岡市下々条町【中古住宅】
    合同会社 さくら中央不動産
  • この物件を問い合わせる/無料
  • TEL: 0258-89-8842

この物件の地図・周辺情報・行政情報

この物件の周辺情報・行政情報を詳しく見る
【周辺情報】
物件の近くにあるコンビニや銀行・学校など、アイコン付のマップで詳しく表示できます!
【行政情報】
水道料や下水道料・ガス料金など、暮らしに関係のある情報を表示しています。
セブン-イレブン 長岡新組町店(コンビニ)まで590m
セブン-イレブン 長岡高見町店(コンビニ)まで760m
ローソン 長岡新組町店(コンビニ)まで640m
マルイ 長岡新組店(スーパー)まで390m
こうのす薬局(ドラッグストア)まで630m
黒条内科・消化器クリニック(病院)まで640m
セブン銀行ATM(銀行)まで590m
セブン銀行ATM(銀行)まで760m
JAえちご中越 黒条プラザ店(銀行)まで800m

※カメラのアイコンがある場合は、マウスをポイントするとその施設の画像がご覧いただけます。


担当取扱い店舗情報

取扱い店舗画像
合同会社 さくら中央不動産
TEL: 0258-89-8842
所在地: 新潟県見附市今町4-8-21
交通:
営業時間: 10:00~18:00/定休日:毎週水曜日・他
免許番号: 新潟県知事(2)第5521号 この会社の情報を詳しく見る
所属団体名: 公社 全日本不動産協会 新潟県本部
取引態様: 一般
ホームページ: https://sakura-cf.net/