物件掲載企業数:297|賃貸物件:3,610件|売買物件:3,333件|今週の登録物件:272
閲覧中のブラウザ(インターネットエクスプローラー)は非推奨ブラウザです。
物件が正しく表示されなかったり、正しく検索されない場合があります。最新のブラウザ(Google Chrome・Edgeなど)にてご利用お願いいたします。
  

新潟県柏崎市柳田町7-21-3 新築一戸建て 3LDK 29,800,000円の物件情報

【仲介料不要】旧価格3180万円→新価格2980万円 全館空調搭載★ソーラーパネル搭載で電気代がお得♪スーパー、ホームセンター、学校すべて徒歩圏内♪

物件名/所在地 詳細 価格
柏崎市柳田町33坪3LDK+ソーラーパネル 2980万円
新潟県柏崎市柳田町7-21-3
  • 土地面積
    :193.11㎡ /58.41坪
  • 建物面積
    :112㎡ /33.88坪
  • 間取り
    :3LDK
  • 築年月
    :2024年4月
29,800,000
  • 柏崎市柳田町33坪3LDK+ソーラーパネル 2980万円
    株式会社ヒノキヤグループ パパまるハウスカンパニー長岡支店
  • この物件を問い合わせる/無料
  • TEL: 0258-28-7880

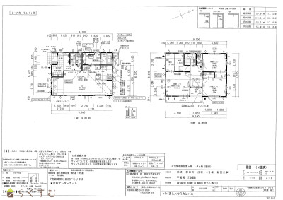
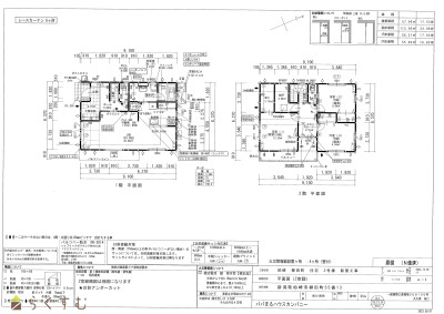
物件画像

外観 間取り
物件画像
※画像クリックで拡大表示
カーポート付 4台以上駐車可能
物件画像
※画像クリックで拡大表示
プラン
詳細画像
動画


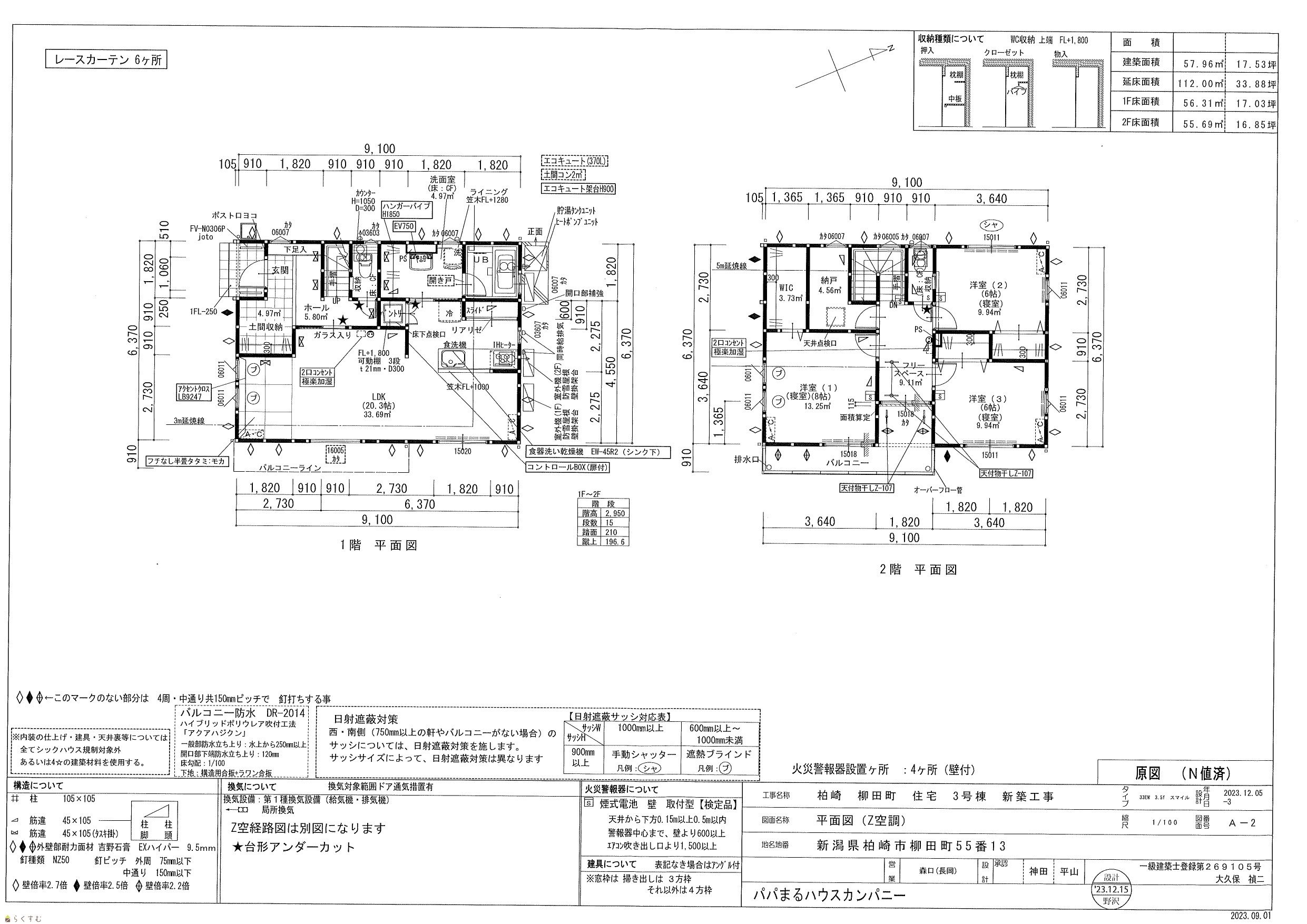
物件概要

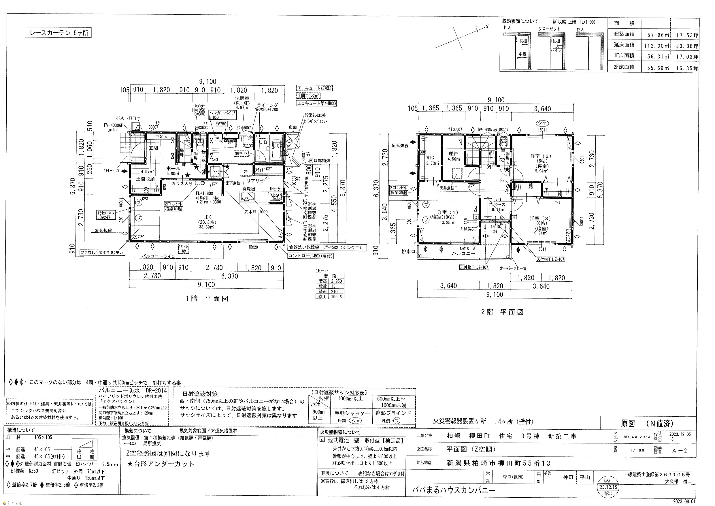
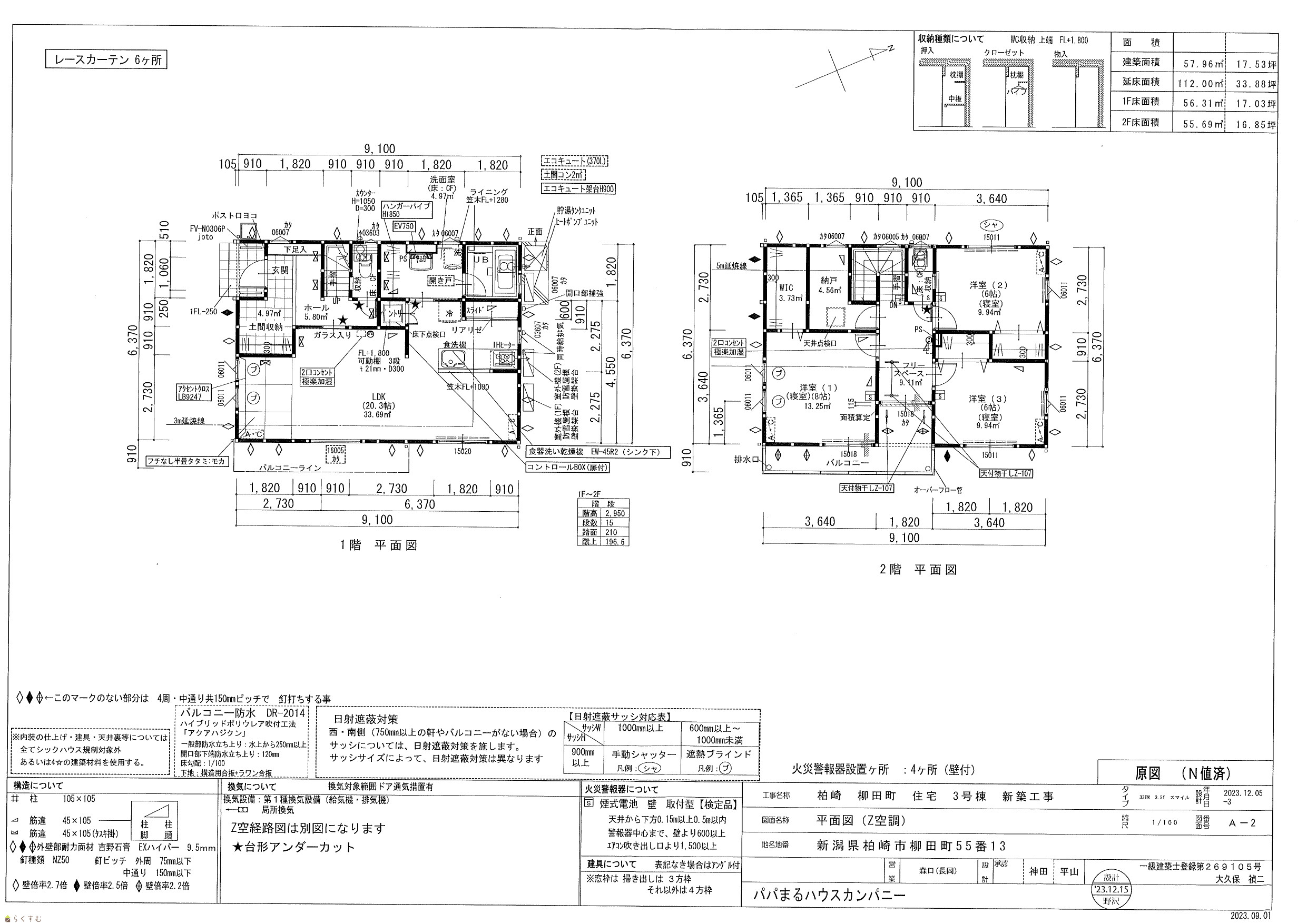
全館空調シェアNo.1★Z空調★
物件コード 00214-200057
物件名 柏崎市柳田町33坪3LDK+ソーラーパネル 2980万円
交通 駅:越後線 西中通駅から徒歩25分、バス:瑞穂中学校入口から徒歩3分
物件所在地 新潟県柏崎市柳田町7-21-3
物件種別 新築一戸建て
構造 木造 階建 地上2階建
建ぺい率/容積率 80%/200%
建物面積 1階 56.31㎡/ 2階 55.69㎡/ 計 112㎡ /33.88坪
土地面積 193.11㎡ /58.41坪
築年月 2024年4月(築1年)
入居(引き渡し)時期 随時入居(引き渡し)可
用途地域 近隣商業地域 地目 宅地  (現状:宅地)
都市計画 - 学校区 槇原小学校(466m)・瑞穂中学校(196m)
形状 間口 10m × 奥行 19m 道路 位置指定道路
私道 - その他の制限 -
  • 柏崎市柳田町33坪3LDK+ソーラーパネル 2980万円
    株式会社ヒノキヤグループ パパまるハウスカンパニー長岡支店
  • この物件を問い合わせる/無料
  • TEL: 0258-28-7880

物件詳細情報

所在階/階数 - 号室 -
販売価格 29,800,000円 方位 西
間取り 3LDK (洋室:8、6、6)
LDK20帖
専有面積 - バルコニー面積 -
その他面積 - 駐車場 -
管理費 - 修繕積立金 -
現況 指定なし
仲介手数料 なし
利用制限 -
設備 整形地、前面道路6m以上、日当り良好、閑静な住宅街、スーパー近く、BELS/省エネ基準適合認定建物、瑕疵担保保険付き、建物確認・完了検査済証あり、フラット35S適合、LDK15畳以上、駐車場2台以上、TVインターホン、複層ガラス、システムキッチン、IHクッキングヒーター、食器洗浄乾燥機、3口コンロ、追いだき機能付き、バス1坪以上、温水洗浄便座、シャワー付き洗面台、エアコン、24時間換気システム、全室エアコン、オール電化、太陽光発電システム、省エネ給湯、高気密高断熱住宅、ウッドデッキ・テラス、上水道、下水道、電気、ウォークインクローゼット、全居室収納あり、シューズBOX、照明器具付き、即引き渡し可能、バリアフリー
取引態様 売主
備考 旧価格3180万円→新価格2980万円
玄関を開けてすぐ、徒歩1分100mにスーパー、ホームセンターがあり、日頃のお買い物も楽々♪槇原小学校まで1400m徒歩17分、瑞穂中学校400m徒歩5分。国道8号線へ車で30秒!5.55KWのソーラーパネル搭載!!電気代超お得♪
1階にも内干しスペースがありお洗濯も楽々。
タタミコーナー、2階納戸有り!!
毎日楽しく楽々快適に過ごせます!!
ご見学のご予約は下記担当者へお気軽にご連絡ください!
担当 さとう 080-7112-0169
取り扱い会社

株式会社ヒノキヤグループ パパまるハウスカンパニー長岡支店

新潟県長岡市古正寺3丁目10番地1

情報登録日 2025/09/07 次回更新予定日 2026/01/13
取引条件有効期限 2024/10/31
  • 柏崎市柳田町33坪3LDK+ソーラーパネル 2980万円
    株式会社ヒノキヤグループ パパまるハウスカンパニー長岡支店
  • この物件を問い合わせる/無料
  • TEL: 0258-28-7880

この物件の地図・周辺情報・行政情報

この物件の周辺情報・行政情報を詳しく見る
【周辺情報】
物件の近くにあるコンビニや銀行・学校など、アイコン付のマップで詳しく表示できます!
【行政情報】
水道料や下水道料・ガス料金など、暮らしに関係のある情報を表示しています。
ローソン 柏崎藤元町店(コンビニ)まで840m
原信 柏崎東店(スーパー)まで290m
共創未来 柳田町薬局(ドラッグストア)まで140m
クスリのアオキ 松美店(ドラッグストア)まで780m
柏崎春日郵便局(郵便局)まで890m

※カメラのアイコンがある場合は、マウスをポイントするとその施設の画像がご覧いただけます。


担当取扱い店舗情報

取扱い店舗画像
株式会社ヒノキヤグループ パパまるハウスカンパニー長岡支店
TEL: 0258-28-7880
所在地: 新潟県長岡市古正寺3丁目10番地1
交通:
営業時間: 8:30~17:30/定休日:祝祭日・年末年始・お盆
免許番号: 国土交通大臣(1)第10420号 この会社の情報を詳しく見る
所属団体名: 公社新潟県宅地建物取引協会 長岡支部
取引態様: 売主
ホームページ: https://www.papamaru.jp/