物件掲載企業数:301|賃貸物件:3,261件|売買物件:3,251件|今週の登録物件:296
閲覧中のブラウザ(インターネットエクスプローラー)は非推奨ブラウザです。
物件が正しく表示されなかったり、正しく検索されない場合があります。最新のブラウザ(Google Chrome・Edgeなど)にてご利用お願いいたします。
  

新潟県上越市北城町3丁目15-10 中古一戸建て 3LDK 25,000,000円の物件情報

幹線道路沿いの住居付き飲食店舗

物件名/所在地 詳細 価格
北城町3売店舗兼住居
新潟県上越市北城町3丁目15-10
  • 土地面積
    :519.95㎡ /157.28坪
  • 建物面積
    :282.81㎡ /85.55坪
  • 間取り
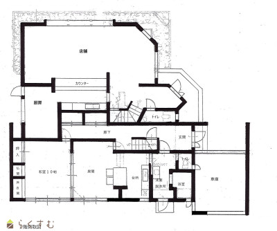
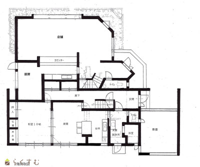
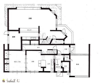
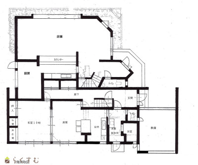
    :3LDK
  • 築年月
    :1986年12月
25,000,000
  • 北城町3売店舗兼住居
    株式会社マルケー不動産
  • この物件を問い合わせる/無料
  • TEL: 025-544-2724

物件画像

外観 間取り
物件画像
※画像クリックで拡大表示
外観
物件画像
※画像クリックで拡大表示
詳細画像


物件概要

店舗内は木目基調の落ち着いた雰囲気
物件コード 00209-200104
物件名 北城町3売店舗兼住居
交通 駅:妙高はねうまライン 高田駅から徒歩20分、バス:東本町三丁目から徒歩5分
物件所在地 新潟県上越市北城町3丁目15-10
物件種別 中古一戸建て
構造 木造 階建 地上2階建
建ぺい率/容積率 60%/200%
建物面積 1階 173.48㎡/ 2階 109.33㎡/ 計 282.81㎡ /85.55坪
土地面積 519.95㎡ /157.28坪
築年月 1986年12月(築39年)
入居(引き渡し)時期 相談
用途地域 第1種住居地域 地目 宅地  (現状:宅地)
都市計画 市街化区域 学校区 大町小学校(1,028m)・城北中学校(750m)
形状 - 道路 北側16m公道(歩道付)
私道 - その他の制限 -
  • 北城町3売店舗兼住居
    株式会社マルケー不動産
  • この物件を問い合わせる/無料
  • TEL: 025-544-2724

物件詳細情報

所在階/階数 - 号室 -
販売価格 25,000,000円 方位 -
間取り 3LDK (和室:10畳、8畳) (洋室:13)
LDK20
専有面積 - バルコニー面積 -
その他面積 - 駐車場 -
管理費 - 修繕積立金 -
現況 居住中
仲介手数料 891,000円
利用制限 -
設備 LDK15帖以上、駐車3台以上可能、駐車場融雪設備あり、トイレ2か所以上、エアコンあり、都市ガス、上水道、下水道
取引態様 仲介
備考 現在、店舗営業中・居住中のため、引渡しの時期は要相談です。
取り扱い会社

株式会社マルケー不動産

新潟県上越市西本町2-3-21

情報登録日 2025/01/23 次回更新予定日 2026/06/05
取引条件有効期限 2025/03/31
  • 北城町3売店舗兼住居
    株式会社マルケー不動産
  • この物件を問い合わせる/無料
  • TEL: 025-544-2724

この物件の地図・周辺情報・行政情報

この物件の周辺情報・行政情報を詳しく見る
【周辺情報】
物件の近くにあるコンビニや銀行・学校など、アイコン付のマップで詳しく表示できます!
【行政情報】
水道料や下水道料・ガス料金など、暮らしに関係のある情報を表示しています。
セブン-イレブン 上越北城店(コンビニ)まで280m
ナルス 北城店(スーパー)まで340m
クスリのアオキ 北城店(ドラッグストア)まで370m
さくらの木心臓血管外科クリニック(病院)まで60m
内科さとう医院(病院)まで260m

※カメラのアイコンがある場合は、マウスをポイントするとその施設の画像がご覧いただけます。


担当取扱い店舗情報

取扱い店舗画像
株式会社マルケー不動産
TEL: 025-544-2724
所在地: 新潟県上越市西本町2-3-21
交通: 直江津駅
営業時間: 8:30~17:00/定休日:第2.4土・日・祝
免許番号: 新潟県知事(10)第2765号 この会社の情報を詳しく見る
所属団体名: 公社新潟県宅地建物取引協会 上越支部
取引態様: 仲介
ホームページ: https://www.mkfudo3.jp/