閑静な住宅街、車庫付き、水回りリフォーム済
| 物件名/所在地 | 詳細 | 価格 | 
|---|---|---|
| 米山台4丁目中古住宅
														 新潟県柏崎市米山台4丁目6-15  | 
							
								
  | 
							6,280,000円 | 
| 外観 | 間取り | 
|---|---|
| 
								 ※画像クリックで拡大表示 外観 
							 | 
							
								 ※画像クリックで拡大表示 車庫 
							 | 
						
| 詳細画像 | |
| 
								 | 
						|
| 閑静な住宅街、車庫付き、水回りリフォーム済 | |||
| 物件コード | 00205-200029 | ||
|---|---|---|---|
| 物件名 | 米山台4丁目中古住宅 | ||
| 交通 | 駅:信越線 柏崎駅から徒歩30分、バス:米山台第4公園から徒歩4分 | ||
| 物件所在地 | 新潟県柏崎市米山台4丁目6-15 | ||
| 物件種別 | 中古一戸建て | ||
| 構造 | 木造 | 階建 | 地上2階建 | 
| 建ぺい率/容積率 | 50%/100% | ||
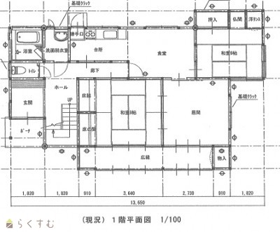
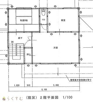
| 建物面積 | 1階 90.6㎡/ 2階 52.02㎡/ 計 142.62㎡ /43.14坪 | ||
| 土地面積 | 240.24㎡ /72.67坪 | ||
| 築年月 | 1977年11月(築48年) | ||
| 入居(引き渡し)時期 | 随時入居(引き渡し)可 | ||
| 用途地域 | 第1種低層住居専用地域 | 地目 | 宅地 | 
| 都市計画 | 非線引き都市計画区域 | 学校区 | 剣野小学校(794m)・第三中学校(499m) | 
| 形状 | 間口 13.4m × 奥行 17.93m | 道路 | 南西側公道、幅5m | 
| 私道 | - | その他の制限 | - | 
| 所在階/階数 | - | 号室 | - | 
|---|---|---|---|
| 販売価格 | 6,280,000円 | 方位 | 南西 | 
| 間取り | 
																	6LDK (和室:8畳、6畳、6畳) (洋室:8、12、6) 9.5  | 
						||
| 専有面積 | - | バルコニー面積 | - | 
| その他面積 | - | 駐車場 | - | 
| 管理費 | - | 修繕積立金 | - | 
| 現況 | 空家 | ||
| 仲介手数料 | 330,000円 | ||
| 利用制限 | - | ||
| 設備 | 閑静な住宅街、駐車2台可能、システムキッチン、追いだき機能付き、温水洗浄便座、トイレ2か所以上、シャワー付き洗面台、都市ガス、即引き渡し可能、別荘、田舎暮らし | ||
| 取引態様 | 専任 | ||
| 備考 | 閑静な住宅街、車庫付き、水回りリフォーム済 | ||
| 取り扱い会社 | 
								 有限会社イッケン 新潟県柏崎市錦町8-29  | 
						||
| 情報登録日 | 2024/12/27 | 次回更新予定日 | 2025/11/19 | 
| 取引条件有効期限 | 2025/12/31 | ||
| 
																		エムケイ薬局 かしわざき店(ドラッグストア)まで1090m | 
																
																		国立病院機構 新潟病院(病院)まで1400m | 
															
※カメラのアイコンがある場合は、マウスをポイントするとその施設の画像がご覧いただけます。
						| TEL: | 0257-22-1422 | |
|---|---|---|
| 所在地: | 新潟県柏崎市錦町8-29 | |
| 交通: | 駅前公園、向かい♪ | |
| 営業時間: | 9:00~17:30 土曜日10:00~15:00/定休日:日曜・祝日 | |
| 免許番号: | 新潟県知事(8)第3675号 | 
										
											 | 
								
| 所属団体名: | 公社 新潟県宅地建物取引業協会 柏崎支部 | |
| 取引態様: | 専任 | |
| ホームページ: | https://www.ikken.co.jp/ | |