物件掲載企業数:299|賃貸物件:3,602件|売買物件:3,317件|今週の登録物件:275
閲覧中のブラウザ(インターネットエクスプローラー)は非推奨ブラウザです。
物件が正しく表示されなかったり、正しく検索されない場合があります。最新のブラウザ(Google Chrome・Edgeなど)にてご利用お願いいたします。
  

379-1Kami-sanbuichi, Kubiki, Joetsu, Niigata 中古一戸建て 6DK 8,500,000円の物件情報

SUPER DEAL☆ two-story Japanese style house+ 2 two-story warehouses+ spacious field (1,414㎡)

物件名/所在地 詳細 価格
business negotiation/ Kubiki
379-1Kami-sanbuichi, Kubiki, Joetsu, Niigata
  • 土地面積
    :1,354.69㎡ /409.79坪
  • 建物面積
    :184.05㎡ /55.67坪
  • 間取り
    :6DK
  • 築年月
    :1980年3月
8,500,000
  • business negotiation/ Kubiki
    株式会社 お不動さん
  • この物件を問い合わせる/無料
  • TEL: 025-520-8197

物件画像

外観 間取り
物件画像
※画像クリックで拡大表示
appearance
物件画像
※画像クリックで拡大表示
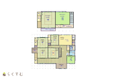
Floor plan
詳細画像


物件概要

Perfect for: a family with pets/ farming & gardening lovers/ farm-stay/ slow life/ guesthouse/ share house/ vacation lodge
物件コード 00200-200232
物件名 business negotiation/ Kubiki
交通 駅:Kuroi Station信越線から徒歩45分、バス:Kami-sanbuichi Stopから徒歩3分
物件所在地 379-1Kami-sanbuichi, Kubiki, Joetsu, Niigata
物件種別 中古一戸建て
構造 木造 階建 地上2階建
建ぺい率/容積率 70%/200%
建物面積 1階 140.77㎡/ 2階 43.28㎡/ 計 184.05㎡ /55.67坪
土地面積 1,354.69㎡ /409.79坪
築年月 1980年3月(築45年)
入居(引き渡し)時期 随時入居(引き渡し)可
用途地域 用途の指定のない地域 地目 宅地  (現状:宅地)
都市計画 市街化調整区域 学校区 南川小学校(1,255m)・頸城中学校(3,074m)
形状 - 道路 南側:県道 幅員7.15m
私道 - その他の制限 -
  • business negotiation/ Kubiki
    株式会社 お不動さん
  • この物件を問い合わせる/無料
  • TEL: 025-520-8197

物件詳細情報

所在階/階数 - 号室 -
販売価格 8,500,000円 方位
間取り 6DK (和室:8畳、8畳、8畳、6畳、10畳) (洋室:8)
DK 16.5㎡
2 two-story warehouses
専有面積 - バルコニー面積 -
その他面積 - 駐車場 -
管理費 - 修繕積立金 -
現況 空家
仲介手数料 346,500円
契約印紙代 5,000円
利用制限 -
設備 日当り良好、新築時図面あり、駐車3台以上可能、南向き、追いだき機能付き、温水洗浄便座、シャワー付き洗面台、エアコンあり、LPG、上水道、下水道、即引き渡し可能、田舎暮らし、事業向け
取引態様 一般
備考 【in the middle of a business negotiation】
room for 3 cars/ spacious farmland (1,414㎡)/ good sunlight exposure/ bath reheating function/ LPG/ heated bidet toilet seat/ AC×1/ water supply & drainage/ available for immediate occupancy/ handover as-is/ good for business
- Comes with a farmland (1,414㎡)
- Handover as-is
- We'll register warehouses before handover.
- warehouse 1: 42.14㎡ 
- warehouse 2: 89.25㎡
- Other costs include contract stamp duty and ownership transfer fees.
取り扱い会社

株式会社 お不動さん

上越市中央一丁目12番36号

情報登録日 2025/09/02 次回更新予定日 2025/10/24
取引条件有効期限 2024/03/31
  • business negotiation/ Kubiki
    株式会社 お不動さん
  • この物件を問い合わせる/無料
  • TEL: 025-520-8197

この物件の地図・周辺情報・行政情報

この物件の周辺情報・行政情報を詳しく見る
【周辺情報】
物件の近くにあるコンビニや銀行・学校など、アイコン付のマップで詳しく表示できます!
【行政情報】
水道料や下水道料・ガス料金など、暮らしに関係のある情報を表示しています。

担当取扱い店舗情報

取扱い店舗画像
株式会社 お不動さん
TEL: 025-520-8197
所在地: 上越市中央一丁目12番36号
交通: 直江津駅
営業時間: 8:30~17:30/定休日:日曜・祝日・第2土曜日・第4土曜日
免許番号: 新潟県知事(2)第5449号 この会社の情報を詳しく見る
所属団体名: 公社 新潟県宅地建物取引協会 上越支部
取引態様: 一般
ホームページ: https://ofudousan.amebaownd.com/