物件掲載企業数:297|賃貸物件:3,610件|売買物件:3,333件|今週の登録物件:272
閲覧中のブラウザ(インターネットエクスプローラー)は非推奨ブラウザです。
物件が正しく表示されなかったり、正しく検索されない場合があります。最新のブラウザ(Google Chrome・Edgeなど)にてご利用お願いいたします。
  

新潟県南魚沼郡湯沢町土樽5361 投資物件・その他 3,500,000円の物件情報

物件名/所在地 詳細 価格
表面利回り
佐々木旅館
新潟県南魚沼郡湯沢町土樽5361
  • 土地面積
    :644.76㎡ /195.03坪
  • 建ぺい率
    :70%
  • 容積率
    :300%
3,500,000
-
  • 佐々木旅館
    アイワ不動産
  • この物件を問い合わせる/無料
  • TEL: 0258-31-4123

物件画像

外観 間取り
物件画像
※画像クリックで拡大表示
正面
物件画像
※画像クリックで拡大表示
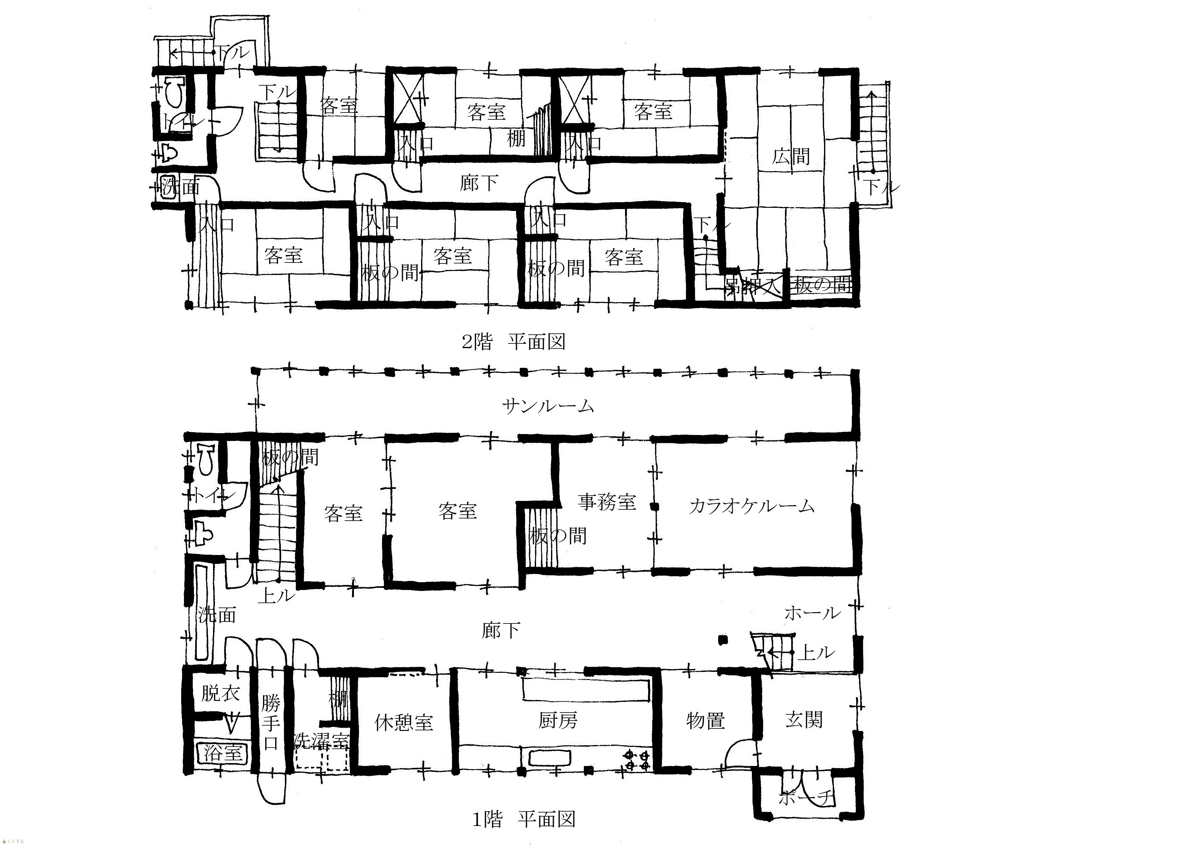
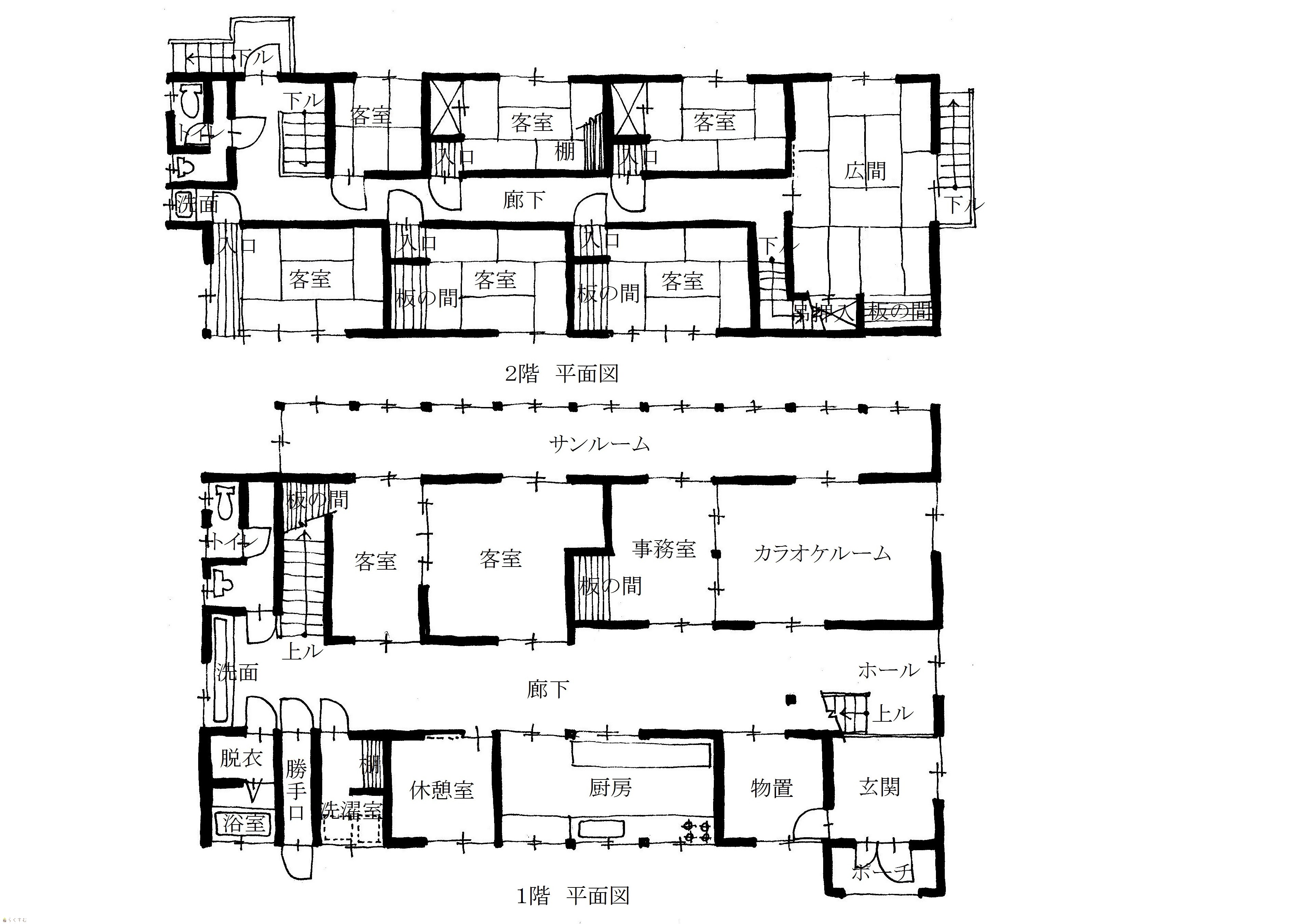
1階2階間取り
詳細画像


物件概要

物件コード 00199-200015
物件名 佐々木旅館
交通 駅:上越線 越後中里駅から徒歩5分、バス:中里駅角から徒歩11分
物件所在地 新潟県南魚沼郡湯沢町土樽5361
物件種別 投資物件・その他
物件区分 その他
構造 木造 階建 地上2階建
建ぺい率/容積率 70%/300%
建物面積 1階 198.74㎡/ 2階 119.24㎡/ 計 317.98㎡ /96.18坪
土地面積 644.76㎡ /195.03坪
築年月 1969年11月(築56年)
入居(引き渡し)時期 随時入居(引き渡し)可
用途地域 無指定 地目 宅地
都市計画 都市計画区域外 学校区 土樽小学校(849m)・湯沢中学校(2,262m)
形状 - 道路 -
私道 - その他の制限 -
  • 佐々木旅館
    アイワ不動産
  • この物件を問い合わせる/無料
  • TEL: 0258-31-4123

物件詳細情報

所在階/階数 - 号室 -
販売価格 3,500,000円 方位 -
表面利回り(満室想定時) - 満室想定年収 - (想定月収: - )
現行利回り - 現行年間年収 -
住戸数 -
間取り -
専有面積 - バルコニー面積 -
その他面積 - 駐車場 -
管理費 - 修繕積立金 -
現況 空家
仲介手数料 330,000円
利用制限 -
設備 事業向け
取引態様 専属専任
備考 -
取り扱い会社

アイワ不動産

新潟県長岡市金房3-4-15

情報登録日 2025/11/19 次回更新予定日 2026/01/13
取引条件有効期限 2025/06/01
  • 佐々木旅館
    アイワ不動産
  • この物件を問い合わせる/無料
  • TEL: 0258-31-4123

この物件の地図・周辺情報・行政情報

この物件の周辺情報・行政情報を詳しく見る
【周辺情報】
物件の近くにあるコンビニや銀行・学校など、アイコン付のマップで詳しく表示できます!
【行政情報】
水道料や下水道料・ガス料金など、暮らしに関係のある情報を表示しています。

担当取扱い店舗情報

取扱い店舗画像
アイワ不動産
TEL: 0258-31-4123
所在地: 新潟県長岡市金房3-4-15
交通: 長岡駅
営業時間: 不定/定休日:不定休
免許番号: 新潟県知事(4)第4369号 この会社の情報を詳しく見る
所属団体名: 公社全日本不動産協会 新潟県本部
取引態様: 専属専任
ホームページ: https://www.zennichi.net/m/aiwa_fudo_san/#pg_top