物件掲載企業数:301|賃貸物件:3,261件|売買物件:3,251件|今週の登録物件:296
閲覧中のブラウザ(インターネットエクスプローラー)は非推奨ブラウザです。
物件が正しく表示されなかったり、正しく検索されない場合があります。最新のブラウザ(Google Chrome・Edgeなど)にてご利用お願いいたします。
  

新潟県上越市大貫4丁目34-12 投資物件・その他 1,500,000円の物件情報

現在賃貸中!

物件名/所在地 詳細 価格
表面利回り
大貫4丁目オーナーチェンジ物件 150万円
新潟県上越市大貫4丁目34-12
  • 土地面積
    :464.71㎡ /140.57坪
  • 建ぺい率
    :50%
  • 容積率
    :80%
1,500,000
25.6%
(満室想定時)
  • 大貫4丁目オーナーチェンジ物件 150万円
    RE不動産(㈱ディライト)
  • この物件を問い合わせる/無料
  • TEL: 025-546-7108

物件画像

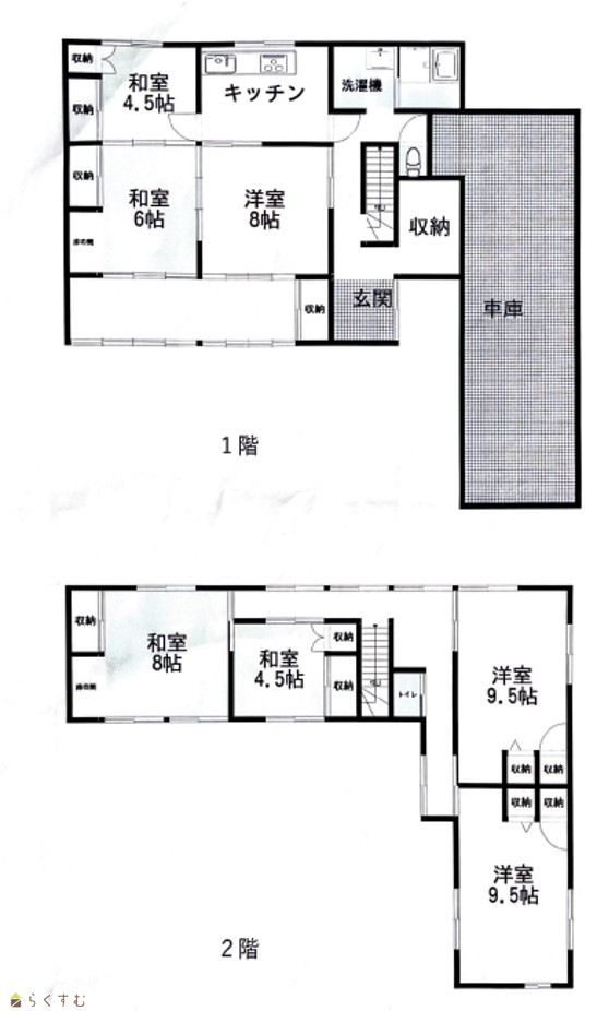
外観 間取り
物件画像
※画像クリックで拡大表示
外観
物件画像
※画像クリックで拡大表示
間取り
詳細画像


物件概要

2025年にフローリング等張替え済み!
物件コード 00184-200175
物件名 大貫4丁目オーナーチェンジ物件 150万円
交通 駅:妙高はねうまライン 高田駅から徒歩25分、バス:関根学園高校前から徒歩6分
物件所在地 新潟県上越市大貫4丁目34-12
物件種別 投資物件・その他
物件区分 その他
構造 木造 階建 地上2階建
建ぺい率/容積率 50%/80%
建物面積 1階 73.94㎡/ 2階 33.08㎡/ 計 107.02㎡ /32.37坪
土地面積 464.71㎡ /140.57坪
築年月 1971年7月(築54年)
入居(引き渡し)時期 相談
用途地域 第1種低層住居専用地域 地目 山林  (現状:宅地)
都市計画 市街化区域 学校区 高田西小学校(950m)・城東中学校(2,700m)
形状 - 道路 南側道路:公衆用道路 幅員約4.0m
私道 - その他の制限 -
  • 大貫4丁目オーナーチェンジ物件 150万円
    RE不動産(㈱ディライト)
  • この物件を問い合わせる/無料
  • TEL: 025-546-7108

物件詳細情報

所在階/階数 - 号室 -
販売価格 1,500,000円 方位 -
表面利回り(満室想定時) 25.6% 満室想定年収 384,000円 (想定月収: 32,000円 )
現行利回り 25.6% 現行年間年収 384,000円
住戸数 1
間取り 7DK
専有面積 - バルコニー面積 -
その他面積 - 駐車場 3台無料
管理費 - 修繕積立金 -
現況 賃貸中
仲介手数料 330,000円
利用制限 ペット:相談、楽器:相談
設備 南側道路面す、駐車場(近隣含む)、公営水道、都市ガス、浄化槽
取引態様 仲介
備考 ※現在貸家として賃貸中です。
※現況有姿にて引き渡しとなります。
※現況家賃3.2万円(利回り25.6%)
※増築未登記の物件になります(登記に関しては要相談)
取り扱い会社

RE不動産(㈱ディライト)

新潟県上越市春日新田5-1-7

情報登録日 2025/08/23 次回更新予定日 2026/06/05
取引条件有効期限 2027/08/23
  • 大貫4丁目オーナーチェンジ物件 150万円
    RE不動産(㈱ディライト)
  • この物件を問い合わせる/無料
  • TEL: 025-546-7108

この物件の地図・周辺情報・行政情報

この物件の周辺情報・行政情報を詳しく見る
【周辺情報】
物件の近くにあるコンビニや銀行・学校など、アイコン付のマップで詳しく表示できます!
【行政情報】
水道料や下水道料・ガス料金など、暮らしに関係のある情報を表示しています。
ナルス 高田西店(スーパー)まで870m
セブン銀行ATM(銀行)まで870m

※カメラのアイコンがある場合は、マウスをポイントするとその施設の画像がご覧いただけます。


担当取扱い店舗情報

取扱い店舗画像
RE不動産(㈱ディライト)
TEL: 025-546-7108
所在地: 新潟県上越市春日新田5-1-7
交通: 妙高はねうまライン 直江津駅より徒歩約17分
営業時間: 8:30~17:30/定休日:第2,第4水曜日・第1、第3土曜日、日曜祝日
免許番号: 新潟県知事(1)第5615号 この会社の情報を詳しく見る
所属団体名: 公益社団法人 全日本不動産協会 新潟県本部
取引態様: 仲介
ホームページ: http://re-fudousan.com