物件掲載企業数:301|賃貸物件:3,261件|売買物件:3,251件|今週の登録物件:296
閲覧中のブラウザ(インターネットエクスプローラー)は非推奨ブラウザです。
物件が正しく表示されなかったり、正しく検索されない場合があります。最新のブラウザ(Google Chrome・Edgeなど)にてご利用お願いいたします。
  

新潟県柏崎市穂波町4番15号 投資物件・その他 170,000,000円の物件情報

物件名/所在地 詳細 価格
表面利回り
リセスホナミ
新潟県柏崎市穂波町4番15号
  • 土地面積
    :1,530.39㎡ /462.94坪
  • 建ぺい率
    :60%
  • 容積率
    :200%
170,000,000
14.74%
(満室想定時)
  • リセスホナミ
    株式会社オフィス・シナダ
  • この物件を問い合わせる/無料
  • TEL: 0257-41-5077

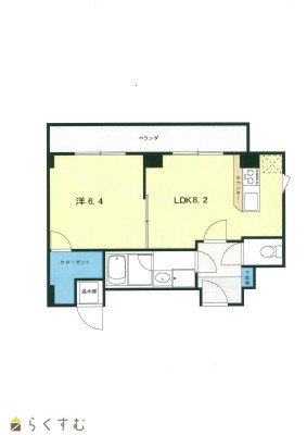
物件画像

外観 間取り
物件画像
※画像クリックで拡大表示
外観
物件画像
※画像クリックで拡大表示
間取り
詳細画像


物件概要

物件コード 00178-200021
物件名 リセスホナミ
交通 駅:越後線 柏崎駅から徒歩9分
物件所在地 新潟県柏崎市穂波町4番15号
物件種別 投資物件・その他
物件区分 1棟売りマンション・アパート
構造 鉄筋コン 階建 地上7階建
建ぺい率/容積率 60%/200%
建物面積 1階 222.04㎡/ 2階 271.22㎡/ 3階 271.22㎡/ 4階 271.22㎡/ 計 1,849.36㎡ /559.43坪
土地面積 1,530.39㎡ /462.94坪
築年月 1990年3月(築36年)
入居(引き渡し)時期 相談
用途地域 第1種中高層住居専用地域 地目 宅地  (現状:宅地)
都市計画 非線引き都市計画区域 学校区 枇杷島小学校(410m)・鏡が沖中学校(668m)
形状 間口 37m × 奥行 53m 道路 柏崎7-143号線
私道 - その他の制限 -
  • リセスホナミ
    株式会社オフィス・シナダ
  • この物件を問い合わせる/無料
  • TEL: 0257-41-5077

物件詳細情報

所在階/階数 1階/7階 号室 -
販売価格 170,000,000円 方位 -
表面利回り(満室想定時) 14.74% 満室想定年収 25,068,000円 (想定月収: 2,089,000円 )
現行利回り 13.34% 現行年間年収 22,692,000円
住戸数 45
間取り 1K、1LDK、2Kその他
専有面積 18.72㎡ /5.66坪 ~ 49.65㎡ /15.01坪 バルコニー面積 -
その他面積 - 駐車場 敷地内
管理費 - 修繕積立金 -
現況 賃貸中
仲介手数料 5,676,000円
利用制限 -
設備 エレベーター、駐車場(近隣含む)、公営水道、下水道、高利回り物件
取引態様 一般
備考 -
取り扱い会社

株式会社オフィス・シナダ

新潟県柏崎市西港町4番19号

情報登録日 2026/03/16 次回更新予定日 2026/06/05
取引条件有効期限 2025/12/31
  • リセスホナミ
    株式会社オフィス・シナダ
  • この物件を問い合わせる/無料
  • TEL: 0257-41-5077

この物件の地図・周辺情報・行政情報

この物件の周辺情報・行政情報を詳しく見る
【周辺情報】
物件の近くにあるコンビニや銀行・学校など、アイコン付のマップで詳しく表示できます!
【行政情報】
水道料や下水道料・ガス料金など、暮らしに関係のある情報を表示しています。

担当取扱い店舗情報

取扱い店舗画像
株式会社オフィス・シナダ
TEL: 0257-41-5077
所在地: 新潟県柏崎市西港町4番19号
交通: 柏崎駅
営業時間: 10:00~18:00土日は10:00~17:00/定休日:水曜日・祝日
免許番号: 新潟県知事(2)第5342号 この会社の情報を詳しく見る
所属団体名: 公社 宅地建物取引協会 柏崎支部
取引態様: 一般
ホームページ: http://www.officeshinada.co.jp/